Winkworth says ..
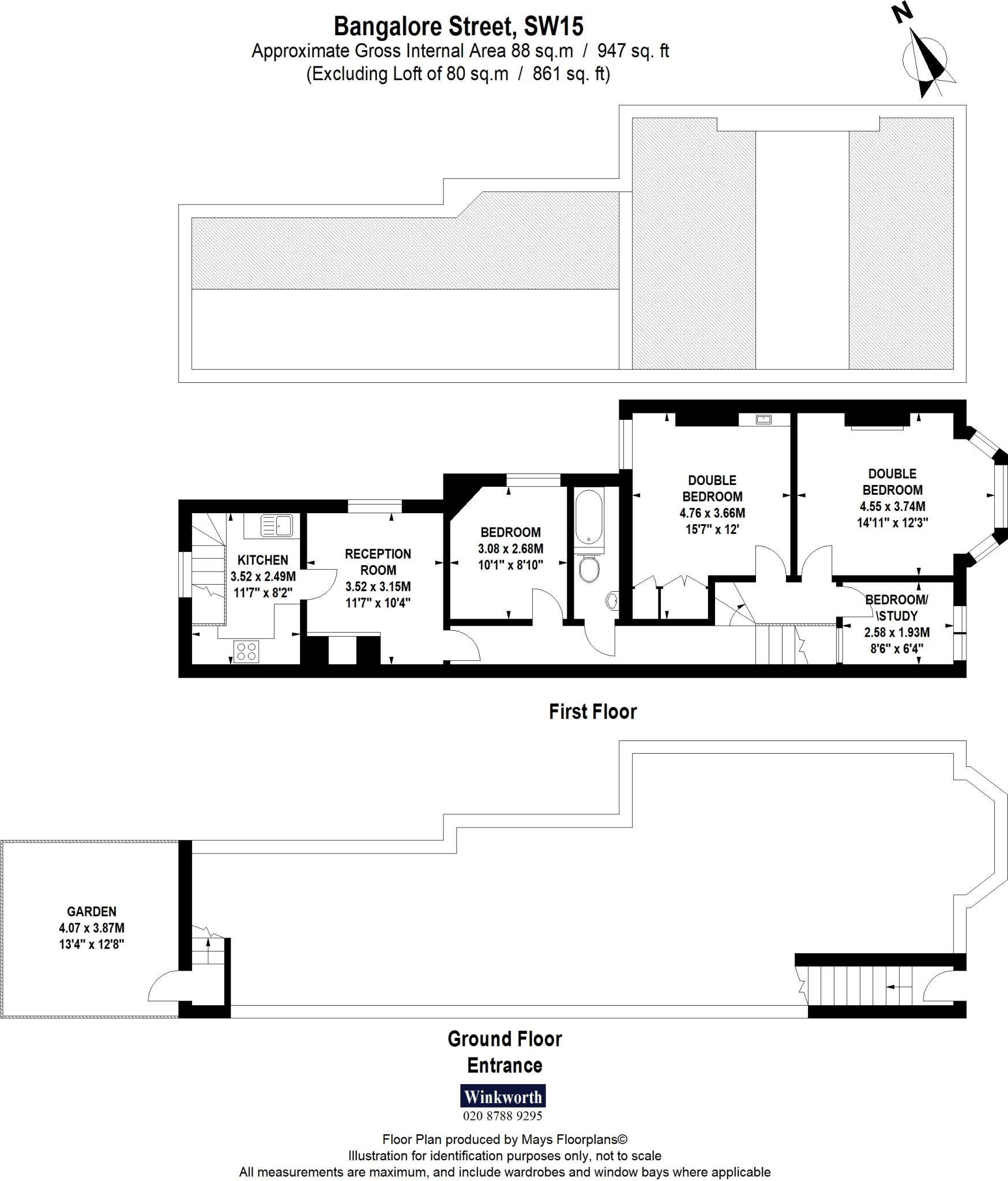
Spacious Three-Bedroom Maisonette with Private West-Facing Garden & Freehold – Prime Lower West Putney. Nestled on a highly sought-after residential road in Lower West Putney, this 947sq.ft. first-floor maisonette offers a rare combination of space, potential, and location. A...
Property Oracle says ..
This maisonette is located in the desirable Thamesfield area of Wandsworth, South West London. The property benefits from being close to excellent schools such as St Mary’s Cofe Primary School (Outstanding Ofsted rating) and is within easy reach of Putney station providing links to central London via the South Western Railway. The property itself appears to be in good condition based on the provided images, though a full survey would be recommended. It offers three bedrooms and one bathroom, and includes a small, manageable garden. While the list price of £850,000 is slightly below the average price for the area (£892,406), the significantly smaller square footage (502.40 sqft compared to the average of 1,073 sqft) and the lack of information on the property’s specifics means a conclusive assessment of value for money is difficult. More information regarding the property’s features and condition would be needed to provide a more comprehensive analysis.
Therefore, we give this property 7 / 10. *Disclaimer: This is our option and does constitute a recommendation or financial advice. Do your own research. *
- Price
- 7
- Condition
- 8
- Location
- 9
- Land
- 4
- Bedrooms
- 3
- Bathrooms
- 1
- Sqft (est)
- 502.40
- Lot (est)
- 947.00
The heatmap indicates the level of crime in the area. The color of the heatmap indicates the crime severity and recency.
Metrics Year-on-Year
- Average area value
- 939,063.00 £Decreased by 0.43 %
- Est sale value
- 408,451.20 £Increased by 0.12 %
- Average area rental value
- 3,207.00 £/moIncreased by 7.58 %
- Est letting value
- 1,004.80 £/moUnchanged by 0.00 %
- Est rental Yield
- 4.10 %Increased by 8.18 %
- Crime Rate
- 4.00 %Unchanged by 0.00 %
Agent Activity
Winkworth created the listing.
Nearby Schools
| Name | Type | Ofsted | Distance |
|---|---|---|---|
| St Mary'S Cofe Primary School | Voluntary Aided School | Outstanding | 0.12 KM |
| Hotham Primary School | Community School | Good | 0.19 KM |
| Our Lady Of Victories Catholic Primary School | Voluntary Aided School | Outstanding | 0.28 KM |
| All Saints' Cofe Primary School, Putney | Voluntary Aided School | Outstanding | 0.60 KM |
| Oasis Academy Putney | Academy Sponsor Led | Good | 0.79 KM |
Images
Nearby Streets
| Name | Average Price | Average Sqft | Distance |
|---|---|---|---|
| Festive Walk | £ 0 | 0 | 0.00 KM |
| Jordan Court | £ 0 | 0 | 0.00 KM |
| Ravenna Road | £ 0 | 0 | 0.00 KM |
| Floss Street | £ 0 | 0 | 0.00 KM |
| Kingsmere Close | £ 0 | 0 | 0.00 KM |
Nearby Transport
| Name | NLC | TLC | Distance |
|---|---|---|---|
| Putney | 5603 | PUT | 0.82 KM |
| Barnes | 5551 | BNS | 2.22 KM |
| Barnes Bridge | 5580 | BNI | 3.44 KM |
| West Brompton | 8875 | WBP | 3.75 KM |
| Kensington (Olympia) | 3092 | KPA | 3.78 KM |
Nearby Listings
| Address | Price | Type | Score | Distance |
|---|---|---|---|---|
| Bangalore Street, London, SW15 | £ 850,000 | BUY | 7 / 10 | 0.00 KM |
| Bangalore Street, London | £ 1,350,000 | BUY | Unknown | 0.02 KM |
| Bangalore Street, Putney, SW15 | £ 1,100,000 | BUY | Unknown | 0.03 KM |
| Bangalore Street, Putney, London, SW15 | £ 750,000 | BUY | 7 / 10 | 0.04 KM |
| Bangalore Street, Putney, London, SW15 | £ 1,150,000 | BUY | 7 / 10 | 0.04 KM |
Nearby Properties
| Address | Price | Distance |
|---|---|---|
| 97a Felsham Road | £ 475,000 | 0.04 KM |
| 137 Felsham Road | £ 656,000 | 0.04 KM |
| 127 Felsham Road | £ 90,000 | 0.04 KM |
| 79a Felsham Road | £ 852,500 | 0.04 KM |
| 95 Felsham Road | £ 95,000 | 0.04 KM |