Bethel, Crown Hill, Llantwit Fardre, Pontypridd
WA

Bethel, Crown Hill, Llantwit Fardre, Pontypridd

By Walker and Lewis Estate Agents Ltd

£ 450,000

Reviews

3 out of 5 stars

Walker and Lewis Estate Agents Ltd says ..

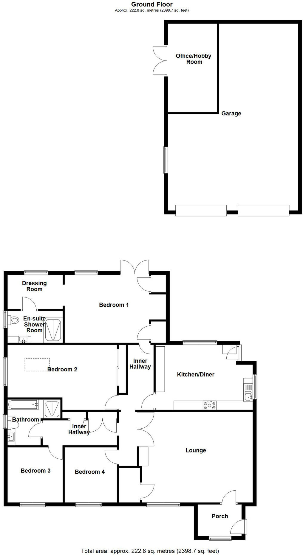
Walker and Lewis are delighted to present this substantial four-bedroom detached bungalow, set on a generous plot with extensive parking and an impressive detached double tandem garage measuring 11m x 7m, complete with office space. Rarely available in this highly desirable location, this beautif...

Property Oracle says ..

This property is a four-bedroom, two-bathroom bungalow located in Llantwit Fardre, Pontypridd. The location benefits from being near local schools and transport links. The property appears to be in good condition, with modern bathrooms and a well-maintained interior. The property includes a garden and a large double garage. Given the size and condition, the price seems reasonable.

Therefore, we give this property 7 / 10. *Disclaimer: This is our option and does constitute a recommendation or financial advice. Do your own research. *

Price
7
Condition
8
Location
7
Land
7
Bedrooms
4
Bathrooms
2
Sqft (est)
2,398.20

The heatmap indicates the level of crime in the area. The color of the heatmap indicates the crime severity and recency.

Metrics Year-on-Year

Average area value
327,499.00 £
Increased by 6.26 %
from 308,216.00 £
Est sale value
930,501.60 £
Increased by 2.92 %
from 904,121.40 £
Average area rental value
1,050.00 £/mo
Increased by 2.44 %
from 1,025.00 £/mo
Est letting value
2,398.20 £/mo
Unchanged by 0.00 %
from 2,398.20 £/mo
Est rental Yield
3.85 %
Decreased by 3.51 %
from 3.99 %
Crime Rate
8.00 %
Unchanged by 0.00 %
from 8.00 %

Agent Activity

  • Walker and Lewis Estate Agents Ltd created the listing.

Nearby Schools

NameTypeOfstedDistance
Maesybryn Primary SchoolWelsh Establishment0.77 KM
Gwaunmeisgyn Primary SchoolWelsh Establishment1.52 KM
Ysgol Garth OlwgWelsh Establishment1.98 KM
Llanilltud Faerdref PrimaryWelsh Establishment2.37 KM
Bryncelynnog Comprehensive SchoolWelsh Establishment2.43 KM

Images

5c6e66428a09abc_file_000000003b0c620ab04f67d6cc7b9 f052917f3887804_file_00000000a734624396b5d74f6674e PXL_20250821_133717870.MP~2 PXL_20250821_133518092~2 PXL_20250821_132729308.MP~2 PXL_20250821_132758036.MP~2 PXL_20250821_132805959.MP~2 PXL_20250821_133332356~2 PXL_20250821_133017069.MP~2 PXL_20250821_133026974~2 PXL_20250821_133108316~2 PXL_20250821_132839993.MP~2 PXL_20250821_132854436~2 PXL_20250821_133821865~2 PXL_20250821_133758001.MP~2 PXL_20250821_133830011~2 IMG-20250824-WA0013 PXL_20250821_133058106.MP~2 PXL_20250821_133155132.MP~2 PXL_20250821_133705658~2 PXL_20250821_133423883.MP~2 PXL_20250821_133438471~2 PXL_20250821_133502695.MP~2 PXL_20250821_133657510~2 PXL_20250821_133546541.MP~4 PXL_20250821_133647100~2 IMG-20250824-WA0011~2 PXL_20250821_133323066.MP~2 PXL_20250821_133040334~2 PXL_20250821_133214674.MP~2 PXL_20250821_133231909~2 PXL_20250821_132829900 PXL_20250821_132820799.MP

Nearby Streets

NameAverage PriceAverage SqftDistance
Mulberry Close £ 000.00 KM
Saint Annes Drive £ 234,95000.00 KM
Greenwood Drive £ 000.00 KM
Station House £ 000.00 KM
Woodlands £ 000.00 KM

Nearby Transport

NameNLCTLCDistance
Trefforest3887TRF4.39 KM
Pontypridd3904PPD5.07 KM
Trefforest Estate3886TRE5.45 KM
Pontyclun3850PYC7.00 KM
Trehafod3888TRH7.89 KM

Nearby Listings

AddressPriceTypeScoreDistance
Bethel, Crown Hill, Llantwit Fardre, Pontypridd £ 450,000BUY7 / 100.00 KM
Crown Hill Drive, Pontypridd £ 260,000BUY7 / 100.09 KM
Crown Hill Drive, Pontypridd £ 260,000BUY7 / 100.09 KM
Almond Close, Llantwit Fardre, Pontypridd, Rhondda Cynon Taff. CF38 2PX £ 325,000BUY7 / 100.12 KM
Kingsacre, Llantwit Fardre, Pontypridd £ 495,000BUY5 / 100.13 KM

Nearby Properties

AddressPriceDistance
The Crest £ 310,0000.08 KM
The Nook £ 201,0000.08 KM
Langham £ 142,0000.08 KM
Ashgrove Cottage £ 365,0000.08 KM
Holly Cottage £ 245,0000.08 KM