SO
Melbourne Street East, Gloucester, Gloucestershire, GL1
By SOLD.CO.UK
£ 200,000
Reviews
3 out of 5 stars
SOLD.CO.UK says ..
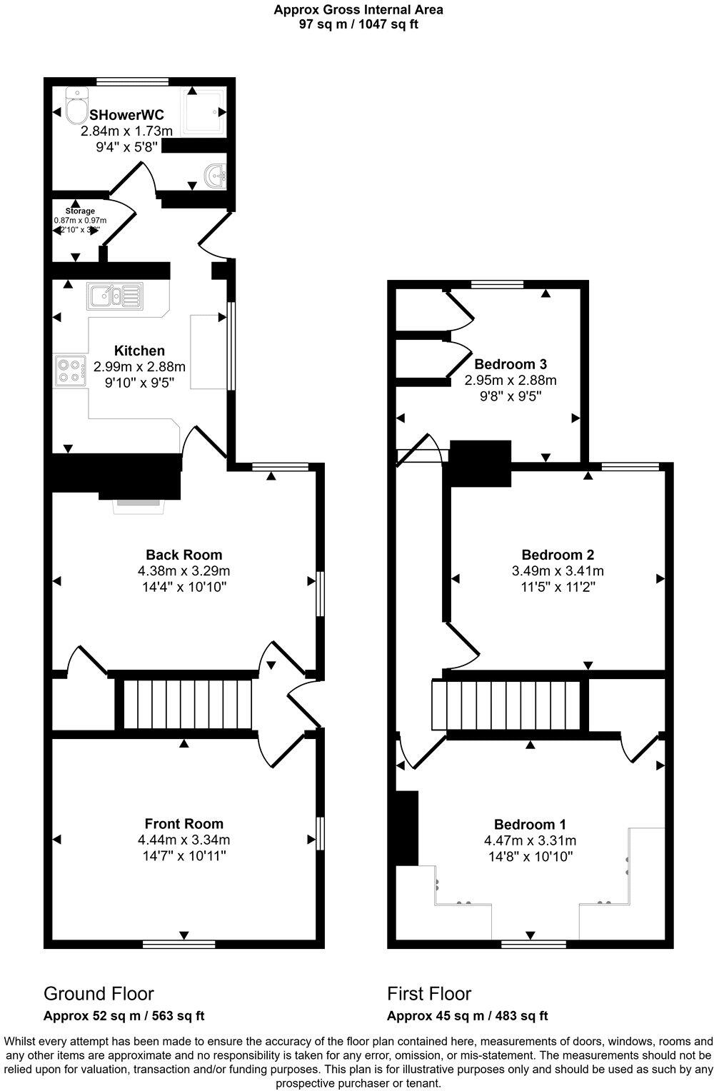
This three-bedroom semi-detached house on Melbourne Street East, Gloucester presents an excellent opportunity for buyers looking to put their personal stamp on a property with great potential. With generous living spaces and practical amenities, this home is ideal for families or those seeking a ...
Property Oracle says ..
Therefore, we give this property 6 / 10. *Disclaimer: This is our option and does constitute a recommendation or financial advice. Do your own research. *
- Price
- 6
- Condition
- 6
- Location
- 7
- Land
- 7
- Bedrooms
- 3
- Bathrooms
- 1
- Sqft (est)
- 838.94
The heatmap indicates the level of crime in the area. The color of the heatmap indicates the crime severity and recency.
Metrics Year-on-Year
- Average area value
- 187,273.00 £Decreased by 3.50 %
- Est sale value
- 179,533.16 £Increased by 4.39 %
- Average area rental value
- 784.00 £/moDecreased by 3.80 %
- Est letting value
- 0.00 £/mo
- Est rental Yield
- 5.02 %Decreased by 0.40 %
- Crime Rate
- 1.00 %Unchanged by 0.00 %
from 194,065.00 £
from 171,982.70 £
from 815.00 £/mo
from 0.00 £/mo
from 5.04 %
from 1.00 %
Agent Activity
SOLD.CO.UK created the listing.
Nearby Schools
| Name | Type | Ofsted | Distance |
|---|---|---|---|
| Hatherley Infant School | Community School | Requires improvement | 0.16 KM |
| Tredworth Infant And Nursery Academy | Academy Converter | Good | 0.48 KM |
| St James Church Of England Junior School | Voluntary Controlled School | Requires improvement | 0.61 KM |
| Finlay And Tredworth Children'S Centre | Children's Centre | 0.64 KM | |
| Finlay Community School | Foundation School | Good | 0.64 KM |
Images
Nearby Streets
| Name | Average Price | Average Sqft | Distance |
|---|---|---|---|
| Leonard Road | £ 0 | 0 | 0.00 KM |
| Paul Street | £ 0 | 0 | 0.00 KM |
| Barton Street | £ 0 | 0 | 0.00 KM |
| The Laurels | £ 0 | 0 | 0.00 KM |
| A38 | £ 0 | 0 | 0.00 KM |
Nearby Transport
| Name | NLC | TLC | Distance |
|---|---|---|---|
| Gloucester | 4760 | GCR | 1.65 KM |
Nearby Listings
| Address | Price | Type | Score | Distance |
|---|---|---|---|---|
| Melbourne Street East, Gloucester, Gloucestershire, GL1 | £ 200,000 | BUY | 6 / 10 | 0.00 KM |
| Melbourne Street East, Gloucester, Gloucestershire, GL1 | £ 200,000 | BUY | 6 / 10 | 0.00 KM |
| Melbourne Street East, Gloucester, Gloucestershire, GL1 | £ 175,000 | BUY | 5 / 10 | 0.03 KM |
| Melbourne Street East, Gloucester, GL1 | £ 185,000 | BUY | 4 / 10 | 0.03 KM |
| Melbourne Street East, Gloucester | £ 200,000 | BUY | 7 / 10 | 0.03 KM |
Nearby Properties
| Address | Price | Distance |
|---|---|---|
| 136 Melbourne Street East | £ 112,000 | 0.04 KM |
| 178 Melbourne Street East | £ 113,000 | 0.04 KM |
| 81 Melbourne Street East | £ 31,750 | 0.04 KM |
| 144 Melbourne Street East | £ 105,000 | 0.04 KM |
| 71a Melbourne Street East | £ 41,000 | 0.04 KM |