GA
Congleton Close, Alderley Edge
By Gascoigne Halman
£ 1,395,000
Reviews
4 out of 5 stars
Gascoigne Halman says ..
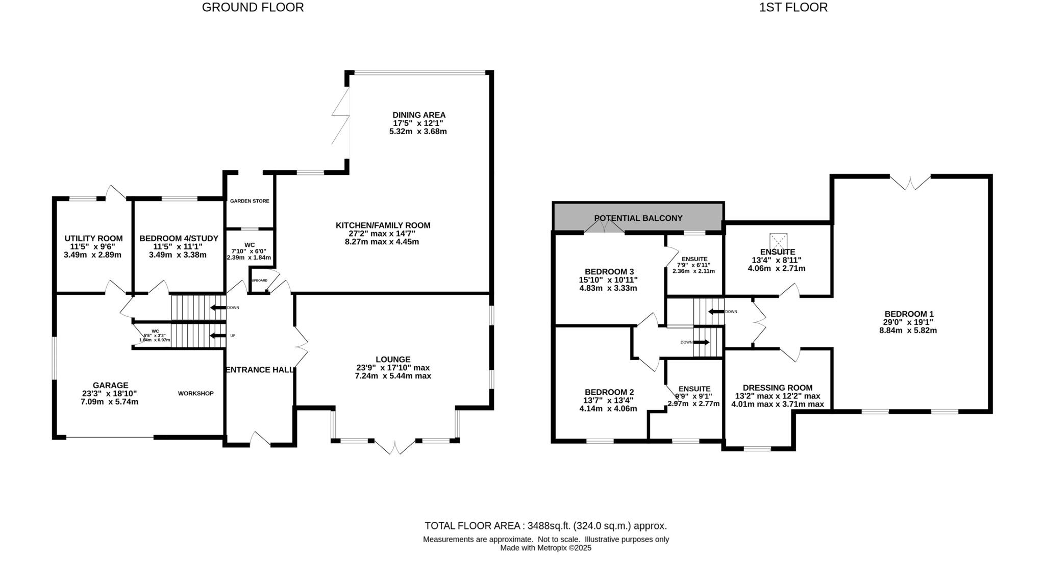
A substantial detached residence extending to approx. 3,400 sq ft, occupying a discreet and private position towards the head of a cul-de-sac of just four homes within walking distance of Alderley Edge village.
Property Oracle says ..
Therefore, we give this property 8 / 10. *Disclaimer: This is our option and does constitute a recommendation or financial advice. Do your own research. *
- Price
- 7
- Condition
- 8
- Location
- 9
- Land
- 9
- Bedrooms
- 4
- Bathrooms
- 3
The heatmap indicates the level of crime in the area. The color of the heatmap indicates the crime severity and recency.
Metrics Year-on-Year
- Average area value
- 430,000.00 £Decreased by 45.17 %
- Average area rental value
- 4,000.00 £/moIncreased by 70.00 %
- Est rental Yield
- 11.16 %Increased by 210.00 %
- Crime Rate
- 3.00 %Unchanged by 0.00 %
from 784,260.00 £
from 2,353.00 £/mo
from 3.60 %
from 3.00 %
Agent Activity
Gascoigne Halman created the listing.
Nearby Schools
| Name | Type | Ofsted | Distance |
|---|---|---|---|
| Nether Alderley Primary School | Academy Converter | Good | 1.05 KM |
| Alderley Edge School For Girls | Other Independent School | 1.13 KM | |
| Alderley Edge Community Primary School | Community School | Outstanding | 1.14 KM |
| The Ryleys School | Other Independent School | 1.25 KM | |
| Ashdene Primary School | Community School | Outstanding | 2.85 KM |
Images
Nearby Streets
| Name | Average Price | Average Sqft | Distance |
|---|---|---|---|
| Congleton Close | £ 0 | 0 | 0.00 KM |
| West Bank | £ 0 | 0 | 0.00 KM |
| Orme Street | £ 350,000 | 0 | 0.00 KM |
| Underwood Road | £ 0 | 0 | 0.00 KM |
| Greystoke Drive | £ 0 | 0 | 0.00 KM |
Nearby Transport
| Name | NLC | TLC | Distance |
|---|---|---|---|
| Alderley Edge | 2760 | ALD | 0.94 KM |
| Wilmslow | 2774 | WML | 3.59 KM |
| Chelford (Cheshire) | 2764 | CEL | 5.82 KM |
| Styal | 2868 | SYA | 5.90 KM |
| Handforth | 2767 | HTH | 6.11 KM |
Nearby Listings
| Address | Price | Type | Score | Distance |
|---|---|---|---|---|
| Congleton Close, Alderley Edge | £ 1,395,000 | BUY | 8 / 10 | 0.00 KM |
| Congleton Road, Alderley Edge | £ 3,600,000 | BUY | 9 / 10 | 0.14 KM |
| Congleton Road, Alderley Edge | £ 2,000,000 | BUY | 7 / 10 | 0.14 KM |
| Stunning Period Apartment on Congleton Road, Alderley Edge | £ 1,200,000 | BUY | 7 / 10 | 0.16 KM |
| Congleton Road, Alderley Edge, SK9 | £ 900,000 | BUY | 7 / 10 | 0.20 KM |
Nearby Properties
| Address | Price | Distance |
|---|---|---|
| 1 Congleton Close | £ 350,700 | 0.01 KM |
| 2 Congleton Close | £ 850,000 | 0.01 KM |
| Greyfriars | £ 2,600,000 | 0.14 KM |
| Westerley | £ 800,000 | 0.14 KM |
| Bracken Rise | £ 850,000 | 0.14 KM |