Netley Road, Newbury Park, IG2
By Wentworth Estates
£ 500,000
Reviews
3 out of 5 stars
Wentworth Estates says ..
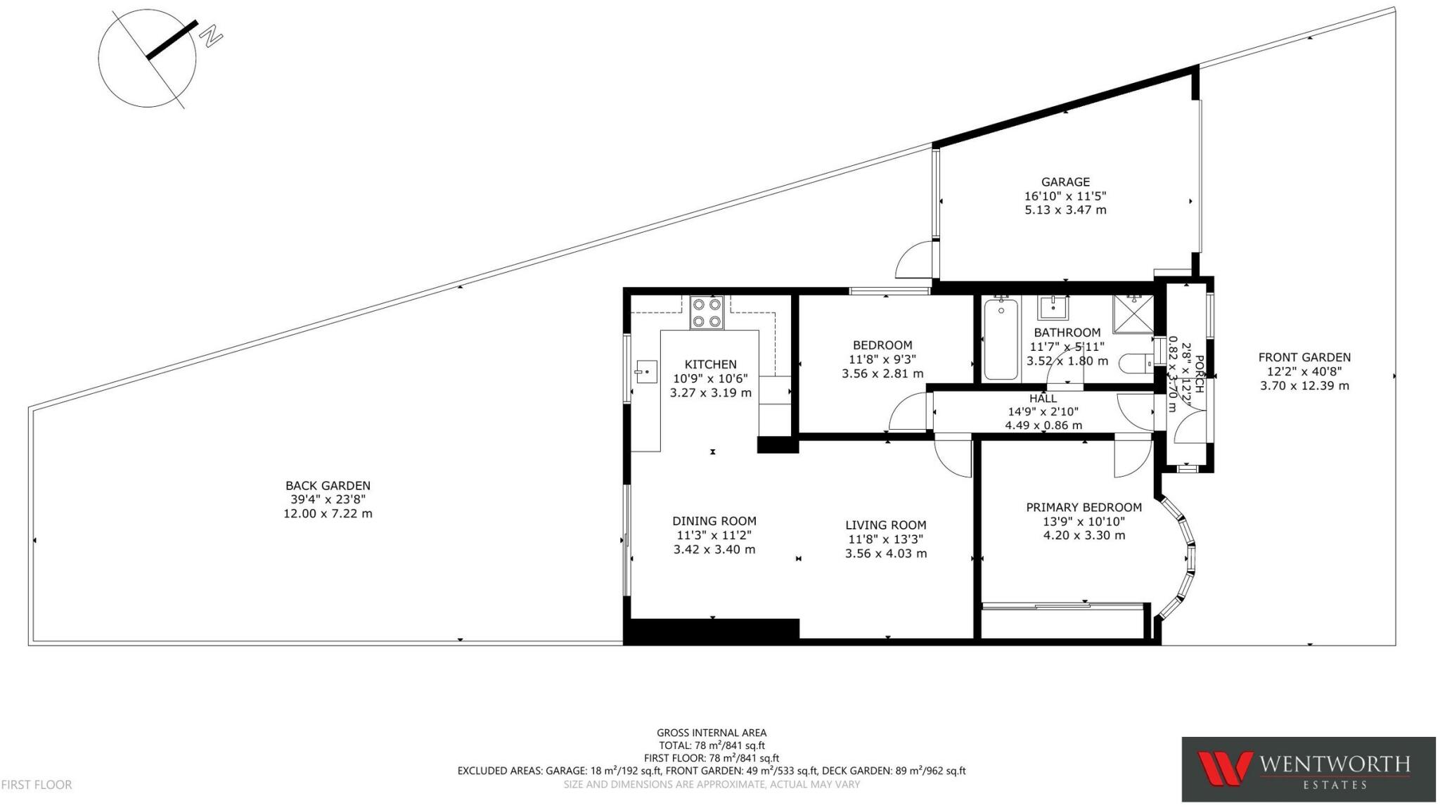
We are proud to present this charming and versatile two-bedroom bungalow, nestled on the sought-after Netley Road. Ideal for first-time buyers, investors, or small families, this home offers not only immediate comfort but also exciting scope for further development. Step into the heart of the hom...
Property Oracle says ..
Therefore, we give this property 6 / 10. *Disclaimer: This is our option and does constitute a recommendation or financial advice. Do your own research. *
- Price
- 6
- Condition
- 7
- Location
- 7
- Land
- 7
- Bedrooms
- 2
- Bathrooms
- 1
- Sqft (est)
- 839.59
- Lot (est)
- 957.99
The heatmap indicates the level of crime in the area. The color of the heatmap indicates the crime severity and recency.
Metrics Year-on-Year
- Average area value
- 563,333.00 £Increased by 5.80 %
- Est sale value
- 453,378.60 £Increased by 7.14 %
- Average area rental value
- 2,111.00 £/moIncreased by 14.54 %
- Est letting value
- 1,679.18 £/moIncreased by 100.00 %
- Est rental Yield
- 4.50 %Increased by 8.43 %
- Crime Rate
- 2.00 %Unchanged by 0.00 %
from 532,437.00 £
from 423,153.36 £
from 1,843.00 £/mo
from 839.59 £/mo
from 4.15 %
from 2.00 %
Agent Activity
Wentworth Estates created the listing.
Nearby Schools
| Name | Type | Ofsted | Distance |
|---|---|---|---|
| Newbury Hall Children'S Centre | Children's Centre | 0.37 KM | |
| Newbury Park Primary School | Community School | Good | 0.44 KM |
| Fullwood Primary School | Community School | Outstanding | 0.79 KM |
| Oaks Park High School | Community School | Good | 0.85 KM |
| Avanti Court Primary School | Academy Converter | Good | 1.03 KM |
Images
Nearby Streets
| Name | Average Price | Average Sqft | Distance |
|---|---|---|---|
| Sherwood Road | £ 0 | 0 | 0.00 KM |
| Mulberry Way | £ 0 | 0 | 0.00 KM |
| Walnut Close | £ 0 | 0 | 0.00 KM |
| Cantley Gardens | £ 500,000 | 0 | 0.00 KM |
| Carlton Drive | £ 0 | 0 | 0.00 KM |
Nearby Transport
| Name | NLC | TLC | Distance |
|---|---|---|---|
| Seven Kings | 6893 | SVK | 2.26 KM |
| Ilford | 6881 | IFD | 2.77 KM |
| Goodmayes | 6878 | GMY | 3.35 KM |
| Barking | 7492 | BKG | 4.48 KM |
| Chadwell Heath | 6874 | CTH | 5.14 KM |
Nearby Listings
| Address | Price | Type | Score | Distance |
|---|---|---|---|---|
| Netley Road, Newbury Park, IG2 | £ 500,000 | BUY | 6 / 10 | 0.00 KM |
| Horns Road, Ilford IG6 | £ 520,000 | BUY | 5 / 10 | 0.09 KM |
| Horns Road, Barkingside, London, IG6 | £ 520,000 | BUY | 6 / 10 | 0.09 KM |
| Horns Road, Barkingside, IG6 | £ 550,000 | BUY | 6 / 10 | 0.11 KM |
| Abbey Road, Ilford, Essex | £ 475,000 | BUY | 6 / 10 | 0.12 KM |
Nearby Properties
| Address | Price | Distance |
|---|---|---|
| 188 Horns Road | £ 430,000 | 0.05 KM |
| 182 Horns Road | £ 250,000 | 0.05 KM |
| 178 Horns Road | £ 451,500 | 0.05 KM |
| 192 Horns Road | £ 320,000 | 0.05 KM |
| 190 Horns Road | £ 365,000 | 0.05 KM |