Whitebridge Crescent, Leeds, West Yorkshire
By Manning Stainton
£ 260,000
Reviews
3 out of 5 stars
Manning Stainton says ..
****WOW JUST STUNNING, THREE BEDROOMS, SIZEABLE GARDEN AND CHECK OUT MY KITCHEN TOO, RING MY AGENT NOW TO COME AND VIEW****
Property Oracle says ..
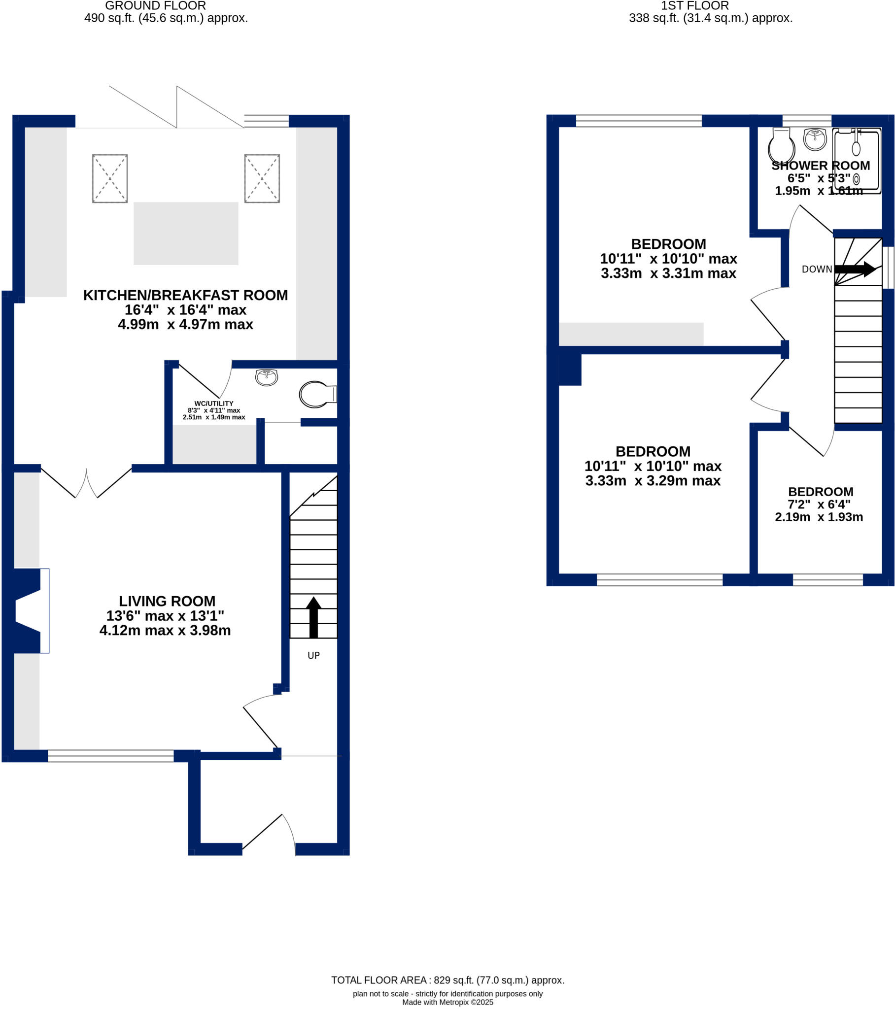
This three-bedroom semi-detached house in Leeds is located in the Temple Newsam area, close to several schools and transportation links. The property has undergone a significant renovation, boasting a modern kitchen with bi-fold doors leading to a well-maintained garden. The interior is presented in excellent condition, featuring contemporary finishes and a stylish design. While the average house price in the area is significantly higher, the list price of £260,000 appears reasonable considering the property’s condition, location, and recent improvements. However, the lack of square footage data prevents a precise comparison to the average price per square foot.
Therefore, we give this property 7 / 10. *Disclaimer: This is our option and does constitute a recommendation or financial advice. Do your own research. *
- Price
- 7
- Condition
- 9
- Location
- 8
- Land
- 7
- Bedrooms
- 3
- Bathrooms
- 1
The heatmap indicates the level of crime in the area. The color of the heatmap indicates the crime severity and recency.
Metrics Year-on-Year
- Average area value
- 260,997.00 £Decreased by 2.01 %
- Average area rental value
- 1,210.00 £/moUnchanged by 0.00 %
- Est rental Yield
- 5.56 %Increased by 2.02 %
- Crime Rate
- 1.00 %Unchanged by 0.00 %
Agent Activity
Manning Stainton created the listing.
Nearby Schools
| Name | Type | Ofsted | Distance |
|---|---|---|---|
| The Pivot Academy Ls East | Other Independent Special School | Good | 0.58 KM |
| Temple Learning Academy | Free Schools | Good | 0.75 KM |
| Corpus Christi Catholic College, A Voluntary Academy | Academy Converter | 0.81 KM | |
| Corpus Christi Catholic Primary School | Voluntary Aided School | Good | 1.03 KM |
| Seacroft Grange Primary School | Foundation School | Good | 1.28 KM |
Images
Nearby Streets
| Name | Average Price | Average Sqft | Distance |
|---|---|---|---|
| Storey Place | £ 180,000 | 0 | 0.00 KM |
| William Avenue | £ 0 | 0 | 0.00 KM |
| Sunnydene | £ 0 | 0 | 0.00 KM |
| Carden Place | £ 0 | 0 | 0.00 KM |
| Watson Road | £ 0 | 0 | 0.00 KM |
Nearby Transport
| Name | NLC | TLC | Distance |
|---|---|---|---|
| Cross Gates | 8473 | CRG | 3.05 KM |
| Woodlesford | 8578 | WDS | 6.39 KM |
| Leeds | 8487 | LDS | 7.67 KM |
Nearby Listings
| Address | Price | Type | Score | Distance |
|---|---|---|---|---|
| Whitebridge Crescent, Leeds, West Yorkshire | £ 260,000 | BUY | 7 / 10 | 0.00 KM |
| Dunhill Rise, Leeds, West Yorkshire | £ 245,000 | BUY | 6 / 10 | 0.06 KM |
| Dunhill Rise, Leeds | £ 300,000 | BUY | 6 / 10 | 0.14 KM |
| Dunhill Rise, Leeds | £ 210,000 | BUY | 7 / 10 | 0.14 KM |
| Whitebridge Spur, Leeds, West Yorkshire, LS9 | £ 180,000 | BUY | Unknown | 0.19 KM |
Nearby Properties
| Address | Price | Distance |
|---|---|---|
| 34 Whitebridge Crescent | £ 125,000 | 0.01 KM |
| 19 Whitebridge Crescent | £ 120,000 | 0.01 KM |
| 6 Whitebridge Crescent | £ 198,000 | 0.01 KM |
| 11 Whitebridge Crescent | £ 152,000 | 0.01 KM |
| 36 Whitebridge Crescent | £ 125,000 | 0.01 KM |