Bridge Road, Sarisbury Green, Southampton
By Taylor Hill & Bond
£ 340,000
Reviews
3 out of 5 stars
Taylor Hill & Bond says ..
Reportedly the home of the village cobbler, a charming cottage style 2 bedroom semi detached house with parking for 3 cars conveniently situated in a conservation area and within easy walking distance of local shops.
Property Oracle says ..
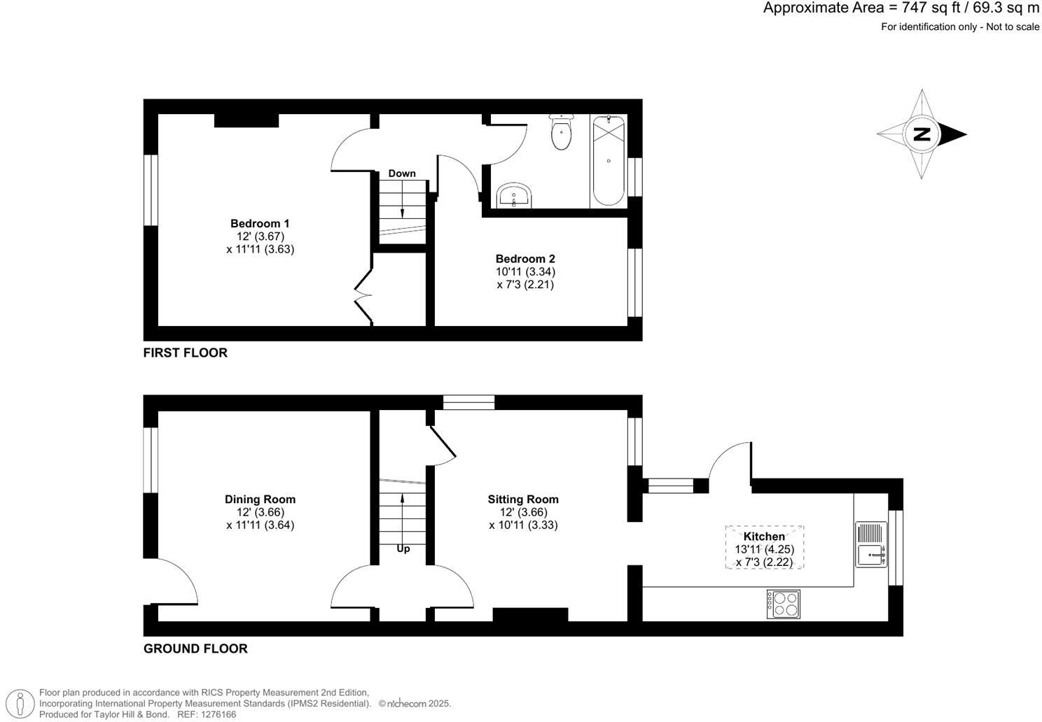
This property is located in Sarisbury Green, Fareham, a town in Hampshire with good access to local amenities and transport links. The property itself is a two-bedroom house with a modern kitchen and a garden. While the average house price in the area is significantly higher, this property is priced lower, potentially reflecting its smaller size (589 sqft) compared to the area average (1328 sqft). The condition of the property appears to be good, based on the provided images, showing a recently renovated kitchen and well-maintained interior. The plot size is relatively small at 747 sqft. The proximity to schools rated as ‘Outstanding’ and ‘Good’ by Ofsted is a positive aspect for families. The price of £340,000 seems reasonable considering the condition, location, and size, although it is below the average price for the area.
Therefore, we give this property 7 / 10. *Disclaimer: This is our option and does constitute a recommendation or financial advice. Do your own research. *
- Price
- 7
- Condition
- 9
- Location
- 8
- Land
- 4
- Bedrooms
- 2
- Bathrooms
- 1
- Sqft (est)
- 589.00
- Lot (est)
- 747.00
The heatmap indicates the level of crime in the area. The color of the heatmap indicates the crime severity and recency.
Metrics Year-on-Year
- Average area value
- 661,429.00 £Increased by 15.45 %
- Est sale value
- 201,438.00 £Decreased by 14.07 %
- Average area rental value
- 3,717.00 £/moIncreased by 151.32 %
- Est letting value
- 589.00 £/moUnchanged by 0.00 %
- Est rental Yield
- 6.74 %Increased by 117.42 %
- Crime Rate
- 1.00 %Unchanged by 0.00 %
Agent Activity
Taylor Hill & Bond created the listing.
Nearby Schools
| Name | Type | Ofsted | Distance |
|---|---|---|---|
| Sarisbury Church Of England Junior School | Voluntary Controlled School | Outstanding | 0.34 KM |
| Sarisbury Infant School | Community School | Outstanding | 0.93 KM |
| Lws Academy | Academy Special Converter | Requires improvement | 0.99 KM |
| Brookfield Community School | Community School | Good | 1.15 KM |
| Sovereign And Strawberry Meadow Children'S Centre | Children's Centre | 1.27 KM |
Images
Nearby Streets
| Name | Average Price | Average Sqft | Distance |
|---|---|---|---|
| St Pauls Road | £ 0 | 0 | 0.00 KM |
| Cold East Close | £ 350,000 | 0 | 0.00 KM |
| Swan Close | £ 0 | 0 | 0.00 KM |
| Barnes Close | £ 0 | 0 | 0.00 KM |
| Beacon Gardens | £ 0 | 0 | 0.00 KM |
Nearby Transport
| Name | NLC | TLC | Distance |
|---|---|---|---|
| Swanwick | 5920 | SNW | 2.25 KM |
| Bursledon | 5927 | BUO | 2.25 KM |
| Hamble | 5947 | HME | 4.78 KM |
| Botley | 5894 | BOE | 5.40 KM |
| Netley | 5911 | NTL | 6.16 KM |
Nearby Listings
| Address | Price | Type | Score | Distance |
|---|---|---|---|---|
| Bridge Road, Sarisbury Green, Southampton | £ 340,000 | BUY | 7 / 10 | 0.00 KM |
| Bridge Road, Sarisbury Green, Southampton, Hampshire, SO31 | £ 330,000 | BUY | 7 / 10 | 0.00 KM |
| Chapel Road, Sarisbury Green | £ 1,325,000 | BUY | 7 / 10 | 0.11 KM |
| The Lawns, Burridge, Hampshire, SO31 | £ 1,600,000 | BUY | 9 / 10 | 0.12 KM |
| St. Pauls Road, Sarisbury Green, SO31 | £ 625,000 | BUY | 7 / 10 | 0.13 KM |
Nearby Properties
| Address | Price | Distance |
|---|---|---|
| 160 Bridge Road | £ 260,000 | 0.05 KM |
| 148 Bridge Road | £ 455,000 | 0.05 KM |
| 156 Bridge Road | £ 230,000 | 0.05 KM |
| 150 Bridge Road | £ 440,000 | 0.05 KM |
| 8 Chapel Road | £ 569,950 | 0.10 KM |