Pearsons says ..
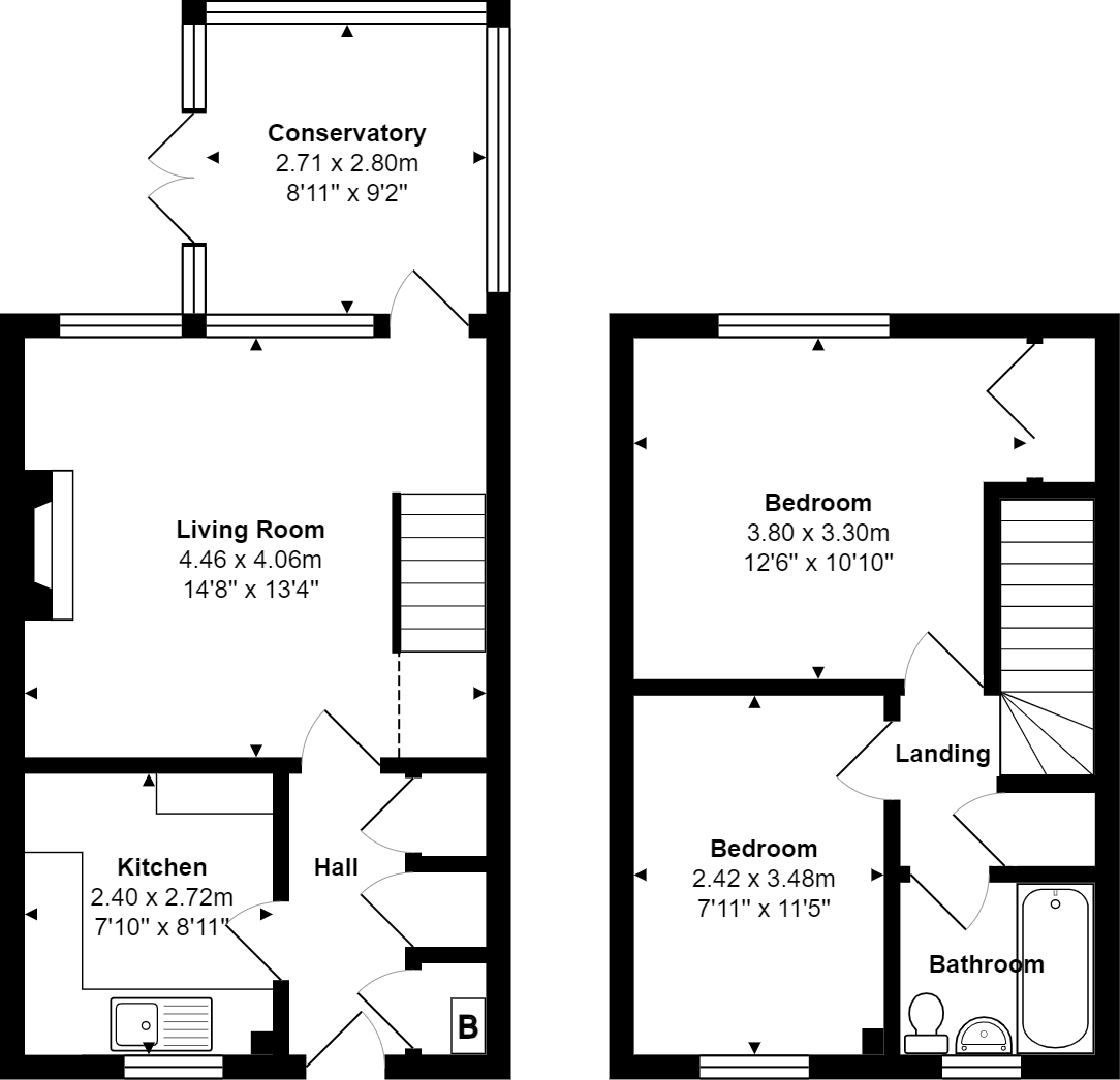
A very neat and well-proportioned home comprising of entrance hallway with storage cupboards, modern fitted kitchen, large living room, conservatory, two good sized bedrooms, bathroom, lovely rear garden with bar, and allocated parking space adjacent.
Property Oracle says ..
This two-bedroom property in Chandler’s Ford presents a good opportunity for buyers seeking a well-located and reasonably priced home. The house benefits from its proximity to local amenities, schools, and transportation links, making it suitable for families and commuters alike. The property is in generally good condition, with a functional kitchen and bathroom, although there is room for modernization. The inclusion of a conservatory adds valuable living space, and the garden provides a pleasant outdoor area. The asking price of £295,000 appears competitive, especially when compared to the average house price in the area. Overall, this property offers a blend of comfort, convenience, and value, making it an attractive option in the Eastleigh housing market.
Therefore, we give this property 7 / 10. *Disclaimer: This is our option and does constitute a recommendation or financial advice. Do your own research. *
- Price
- 8
- Condition
- 7
- Location
- 7
- Land
- 7
- Bedrooms
- 2
- Bathrooms
- 1
- Sqft (est)
- 169.96
The heatmap indicates the level of crime in the area. The color of the heatmap indicates the crime severity and recency.
Metrics Year-on-Year
- Average area value
- 361,000.00 £Decreased by 17.87 %
- Est sale value
- 72,063.04 £Increased by 22.54 %
- Average area rental value
- 1,508.00 £/moDecreased by 1.95 %
- Est letting value
- 169.96 £/moUnchanged by 0.00 %
- Est rental Yield
- 5.01 %Increased by 19.29 %
- Crime Rate
- 13.00 %Unchanged by 0.00 %
Agent Activity
Pearsons created the listing.
Nearby Schools
| Name | Type | Ofsted | Distance |
|---|---|---|---|
| Chandler'S Ford Infant School | Community School | Good | 1.26 KM |
| Knightwood Primary School | Community School | Outstanding | 1.30 KM |
| Hiltingbury Junior School | Community School | Outstanding | 1.30 KM |
| Hiltingbury Infant School | Community School | Outstanding | 1.30 KM |
| St Francis Church Of England Primary School | Voluntary Aided School | Outstanding | 1.55 KM |
Images
Nearby Streets
| Name | Average Price | Average Sqft | Distance |
|---|---|---|---|
| Foyle Road | £ 0 | 0 | 0.00 KM |
| Acorn Drive | £ 0 | 0 | 0.00 KM |
| Witham Close | £ 0 | 0 | 0.00 KM |
| Common Road | £ 1,200,000 | 0 | 0.00 KM |
| Wicklow Drive | £ 0 | 0 | 0.00 KM |
Nearby Transport
| Name | NLC | TLC | Distance |
|---|---|---|---|
| Chandlers Ford | 5836 | CFR | 0.91 KM |
| Eastleigh | 5899 | ESL | 5.08 KM |
| Southampton Airport Parkway | 5922 | SOA | 5.26 KM |
| Swaythling | 5933 | SWG | 5.55 KM |
| St Denys | 5914 | SDN | 7.42 KM |
Nearby Listings
| Address | Price | Type | Score | Distance |
|---|---|---|---|---|
| Chandler's Ford, Eastleigh | £ 295,000 | BUY | 7 / 10 | 0.00 KM |
| Coach Hill Close, South Millers Dale, Chandler's Ford | £ 275,000 | BUY | 6 / 10 | 0.07 KM |
| Rusland Close, Chandler's Ford | £ 400,000 | BUY | Unknown | 0.12 KM |
| Norbury Close, South Millers Dale, Chandler's Ford | £ 450,000 | BUY | 7 / 10 | 0.13 KM |
| Rusland Close, Chandler's Ford, Eastleigh, SO53 | £ 365,000 | BUY | 7 / 10 | 0.15 KM |
Nearby Properties
| Address | Price | Distance |
|---|---|---|
| 6 Coach Hill Close | £ 300,000 | 0.01 KM |
| 46 Coach Hill Close | £ 161,000 | 0.01 KM |
| 30 Coach Hill Close | £ 315,000 | 0.01 KM |
| 17 Coach Hill Close | £ 292,500 | 0.01 KM |
| 52 Coach Hill Close | £ 161,250 | 0.01 KM |