Yoells Lane, Waterlooville, PO8
By Henry Adams
£ 399,950
Reviews
2 out of 5 stars
Henry Adams says ..
Discover this gem in popular residential location! Three bedroom semi-detached house with south-facing garden. Bright, spacious rooms, perfect for familys. Separate lounge and dining, garage, driveway. Close to schools for a relaxed yet practical lifestyle.
Property Oracle says ..
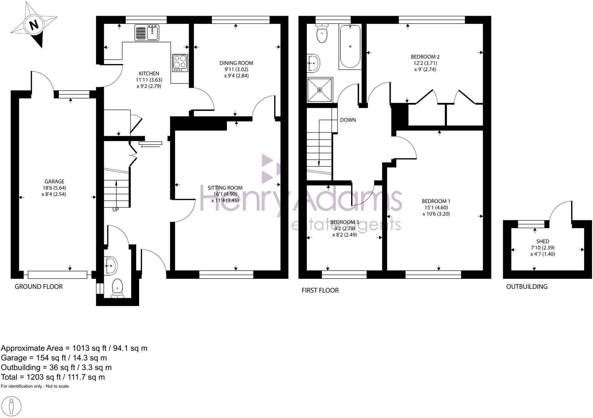
This three-bedroom, one-bathroom semi-detached house in Waterlooville, Hampshire, is listed at £399,950. The property is situated on Yoells Lane, within the Hart Plain area. The location offers convenient access to several schools, including Woodcroft Primary and Horndean Technology College, both rated ‘Good’ by Ofsted. Several railway stations are within a reasonable driving distance, providing connections to other parts of the region. The property itself benefits from a garage and a small garden that could benefit from some landscaping. The interior appears well-maintained, although some areas show signs of age. The kitchen has been updated. The property’s age and the need for some modernisation are factors to consider. The price seems reasonable for the area and size, although a precise comparison with similar properties is difficult due to a lack of available square footage data in the provided nearby listings. Overall, it presents a reasonable option for a family seeking a home in Waterlooville, but potential buyers should factor in the cost of potential renovations and landscaping.
Therefore, we give this property 5 / 10. *Disclaimer: This is our option and does constitute a recommendation or financial advice. Do your own research. *
- Price
- 7
- Condition
- 6
- Location
- 6
- Land
- 4
- Bedrooms
- 3
- Bathrooms
- 1
- Sqft (est)
- 1,202.33
The heatmap indicates the level of crime in the area. The color of the heatmap indicates the crime severity and recency.
Metrics Year-on-Year
- Average area value
- 339,998.00 £Decreased by 8.55 %
- Est sale value
- 437,648.12 £Increased by 0.28 %
- Average area rental value
- 1,500.00 £/moDecreased by 4.28 %
- Est letting value
- 1,202.33 £/moUnchanged by 0.00 %
- Est rental Yield
- 5.29 %Increased by 4.55 %
- Crime Rate
- 2.00 %Unchanged by 0.00 %
Agent Activity
Henry Adams created the listing.
Nearby Schools
| Name | Type | Ofsted | Distance |
|---|---|---|---|
| Woodcroft Primary | Community School | Good | 0.77 KM |
| Branches Children'S Centre | Children's Centre | 1.33 KM | |
| Horndean Technology College | Community School | Good | 1.52 KM |
| Link'S Children'S Centre | Children's Centre | 1.55 KM | |
| Kingscourt School | Other Independent School | 1.55 KM |
Images
Nearby Streets
| Name | Average Price | Average Sqft | Distance |
|---|---|---|---|
| Tilford Road | £ 0 | 0 | 0.00 KM |
| Gypsy Lane | £ 475,000 | 0 | 0.00 KM |
| The Spinney | £ 334,000 | 0 | 0.00 KM |
| Wilton Drive | £ 341,000 | 0 | 0.00 KM |
| Baker Close | £ 350,000 | 0 | 0.00 KM |
Nearby Transport
| Name | NLC | TLC | Distance |
|---|---|---|---|
| Bedhampton | 5538 | BDH | 6.78 KM |
| Rowlands Castle | 5658 | RLN | 7.32 KM |
| Havant | 5532 | HAV | 7.53 KM |
| Warblington | 5264 | WBL | 8.64 KM |
| Cosham | 5896 | CSA | 9.06 KM |
Nearby Listings
| Address | Price | Type | Score | Distance |
|---|---|---|---|---|
| Yoells Lane, Waterlooville, PO8 | £ 399,950 | BUY | 5 / 10 | 0.00 KM |
| Yoells Lane, Lovedean | £ 640,000 | BUY | 8 / 10 | 0.04 KM |
| Loxwood Road, Lovedean, Waterlooville, PO8 | £ 600,000 | BUY | 6 / 10 | 0.06 KM |
| TILFORD ROAD, WATERLOOVILLE | £ 510,000 | BUY | Unknown | 0.09 KM |
| Loxwood Road, Waterlooville | £ 535,000 | BUY | 7 / 10 | 0.12 KM |
Nearby Properties
| Address | Price | Distance |
|---|---|---|
| 5 Yoells Crescent | £ 303,000 | 0.05 KM |
| 14 Yoells Crescent | £ 340,000 | 0.05 KM |
| 7 Yoells Crescent | £ 79,995 | 0.05 KM |
| 6 Yoells Crescent | £ 240,000 | 0.05 KM |
| 9 Yoells Crescent | £ 262,500 | 0.05 KM |