Dani Denby says ..
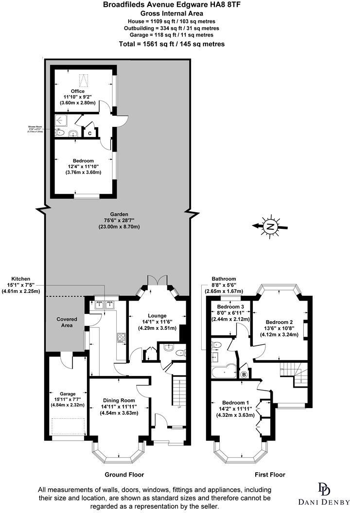
Beautifully Presented Three Bedroom Family Home with Excellent Potential. Located on Broadfields Avenue, this beautifully presented three-bedroom family home offers spacious living and exciting scope for extension or development (subject to planning permission). The ground floor...
Property Oracle says ..
This is a semi-detached property located on Broadfields Avenue in Edgware. The property has 3 bedrooms and 1 bathroom. The property benefits from a large garden with a shed. The property is in reasonable condition, with modern fixtures and fittings. The property is located close to local schools and transport links. The list price of £730,000 is above the average price for the area, but the property has a large square footage of 3,410.15 sqft.
Therefore, we give this property 7 / 10. *Disclaimer: This is our option and does constitute a recommendation or financial advice. Do your own research. *
- Price
- 6
- Condition
- 7
- Location
- 7
- Land
- 8
- Bedrooms
- 3
- Bathrooms
- 1
- Sqft (est)
- 3,410.15
The heatmap indicates the level of crime in the area. The color of the heatmap indicates the crime severity and recency.
Metrics Year-on-Year
- Average area value
- 523,881.00 £Decreased by 13.55 %
- Est sale value
- 1,885,812.95 £Increased by 12.86 %
- Average area rental value
- 1,887.00 £/moDecreased by 11.95 %
- Est letting value
- 3,410.15 £/moUnchanged by 0.00 %
- Est rental Yield
- 4.32 %Increased by 1.89 %
- Crime Rate
- 6.00 %Unchanged by 0.00 %
Agent Activity
Dani Denby created the listing.
Nearby Schools
| Name | Type | Ofsted | Distance |
|---|---|---|---|
| Broadfields Primary School | Academy Converter | Good | 0.20 KM |
| Rosh Pinah Additional Resource Provision | Other Independent Special School | 0.23 KM | |
| Rosh Pinah Primary School | Voluntary Aided School | Good | 0.24 KM |
| Holland House School | Other Independent School | 0.72 KM | |
| Beit Shvidler Primary School | Voluntary Aided School | Good | 1.15 KM |
Images
Nearby Streets
| Name | Average Price | Average Sqft | Distance |
|---|---|---|---|
| Clay Lane | £ 0 | 0 | 0.00 KM |
| Kenilworth Road | £ 595,000 | 0 | 0.00 KM |
| Hurstmere Court | £ 900,000 | 0 | 0.00 KM |
| Mowbray Parade | £ 199,950 | 0 | 0.00 KM |
| Crossgate | £ 0 | 0 | 0.00 KM |
Nearby Transport
| Name | NLC | TLC | Distance |
|---|---|---|---|
| Elstree And Borehamwood | 1542 | ELS | 2.89 KM |
| Mill Hill Broadway | 1527 | MIL | 3.07 KM |
| Hendon | 1522 | HEN | 6.53 KM |
| Kenton | 1399 | KNT | 7.14 KM |
| South Kenton | 1453 | SOK | 7.59 KM |
Nearby Listings
| Address | Price | Type | Score | Distance |
|---|---|---|---|---|
| Broadfields Avenue, Edgware | £ 730,000 | BUY | 7 / 10 | 0.00 KM |
| Broadfields Avenue, Edgware, HA8 | £ 750,000 | BUY | Unknown | 0.00 KM |
| Broadfields Avenue, Edgware | £ 725,000 | BUY | Unknown | 0.03 KM |
| Broadfields Avenue, Edgware, HA8 | £ 875,000 | BUY | 8 / 10 | 0.04 KM |
| Hamonde Close, Edgware, HA8 | £ 600,000 | BUY | 7 / 10 | 0.12 KM |
Nearby Properties
| Address | Price | Distance |
|---|---|---|
| 2 Kinross Close | £ 630,000 | 0.06 KM |
| 4 Kinross Close | £ 200,250 | 0.06 KM |
| 5 Kinross Close | £ 233,500 | 0.06 KM |
| 182 Broadfields Avenue | £ 375,000 | 0.06 KM |
| 156 Broadfields Avenue | £ 425,000 | 0.06 KM |