PA
Burgess Road, Aylesham
By Page & Co Property Services Ltd
£ 300,000
Reviews
3 out of 5 stars
Page & Co Property Services Ltd says ..
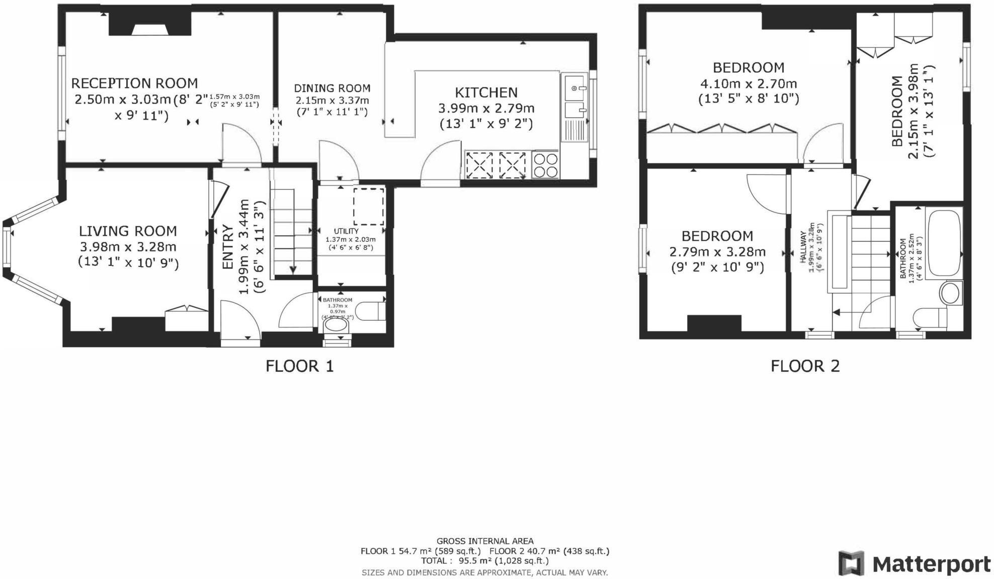
An extended three-bedroom semi-detached home with a kitchen/diner, two reception rooms and downstairs WC. Lovely family home offered to the market with no forward chain.
Property Oracle says ..
Therefore, we give this property 7 / 10. *Disclaimer: This is our option and does constitute a recommendation or financial advice. Do your own research. *
- Price
- 8
- Condition
- 7
- Location
- 7
- Land
- 7
- Bedrooms
- 3
- Bathrooms
- 1
The heatmap indicates the level of crime in the area. The color of the heatmap indicates the crime severity and recency.
Metrics Year-on-Year
- Average area value
- 638,071.00 £Increased by 97.36 %
- Average area rental value
- 1,482.00 £/moIncreased by 12.87 %
- Est rental Yield
- 2.79 %Decreased by 42.71 %
- Crime Rate
- 27.00 %Unchanged by 0.00 %
from 323,301.00 £
from 1,313.00 £/mo
from 4.87 %
from 27.00 %
Agent Activity
Page & Co Property Services Ltd marked this listing as sold.
Page & Co Property Services Ltd created the listing.
Nearby Schools
| Name | Type | Ofsted | Distance |
|---|---|---|---|
| St Joseph'S Catholic Primary School, Aylesham | Academy Converter | Good | 0.34 KM |
| Aylesham Primary School | Community School | Good | 0.86 KM |
| Nonington Church Of England Primary School | Voluntary Controlled School | Requires improvement | 2.21 KM |
| Adisham Church Of England Primary School | Academy Converter | Outstanding | 2.37 KM |
| Goodnestone Church Of England Primary School | Voluntary Controlled School | Good | 3.47 KM |
Images
Nearby Streets
| Name | Average Price | Average Sqft | Distance |
|---|---|---|---|
| Heritage Road | £ 0 | 0 | 0.00 KM |
| Roe Lane | £ 275,000 | 0 | 0.00 KM |
| Bluebell Drive | £ 450,000 | 0 | 0.00 KM |
| Rogers Close | £ 425,000 | 0 | 0.00 KM |
| Oakdale Way | £ 340,000 | 0 | 0.00 KM |
Nearby Transport
| Name | NLC | TLC | Distance |
|---|---|---|---|
| Aylesham | 5197 | AYH | 0.48 KM |
| Snowdown | 5185 | SWO | 1.65 KM |
| Adisham | 5160 | ADM | 1.67 KM |
| Shepherds Well | 5186 | SPH | 5.14 KM |
| Bekesbourne | 5198 | BKS | 8.45 KM |
Nearby Listings
| Address | Price | Type | Score | Distance |
|---|---|---|---|---|
| Burgess Road, Aylesham | £ 300,000 | BUY | 7 / 10 | 0.00 KM |
| Burgess Road, Aylesham, Canterbury, Kent, CT3 | £ 300,000 | BUY | 7 / 10 | 0.03 KM |
| Heritage Road, Aylesham, Canterbury, Kent | £ 95,250 | BUY | 7 / 10 | 0.05 KM |
| Coronation Close, Aylesham, Canterbury, Kent | £ 108,000 | BUY | Unknown | 0.05 KM |
| Windsor Way, Aylesham, Canterbury, Kent | £ 76,500 | BUY | 7 / 10 | 0.09 KM |
Nearby Properties
| Address | Price | Distance |
|---|---|---|
| 46 Burgess Road | £ 178,000 | 0.16 KM |
| 2 Burgess Road | £ 249,406 | 0.16 KM |
| 75 Burgess Road | £ 190,000 | 0.18 KM |
| 47 Burgess Road | £ 145,000 | 0.18 KM |
| 77 Burgess Road | £ 165,000 | 0.18 KM |