Marks Tey Road, Stubbington
By Taylor Hill & Bond
£ 585,000
Reviews
3 out of 5 stars
Taylor Hill & Bond says ..
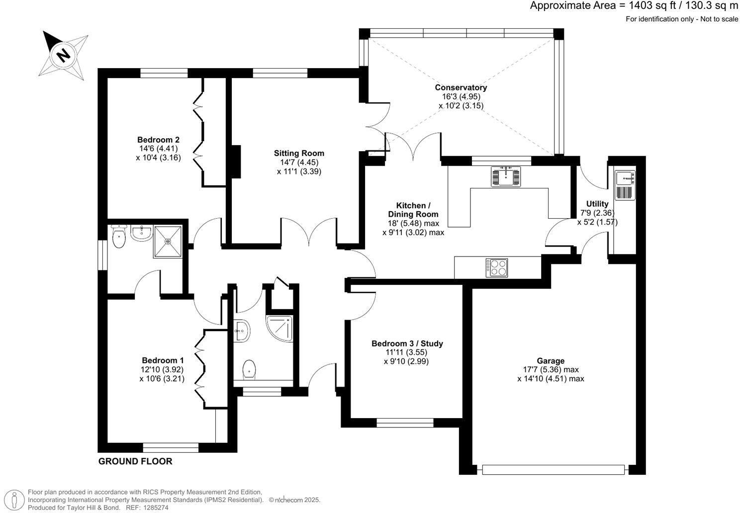
Situated in one of Stubbington’s most sought after developments, close to amenities and a short distance from the beach, an immaculate three-bedroom single storey residence extending to approximately 1403 square feet with a deep frontage and ample driveway parking leading to a double garage.
Property Oracle says ..
This property is a 3 bedroom detached bungalow situated on Marks Tey Road in Stubbington, Fareham. The property benefits from a good size garden, and is within easy reach of local amenities and transport links. The interior images show a property that is well maintained and presented, with a modern kitchen and bathroom. The property is listed at £585,000, which is above the average price for the area, but given the size and condition of the property, this price may be justified.
Therefore, we give this property 7 / 10. *Disclaimer: This is our option and does constitute a recommendation or financial advice. Do your own research. *
- Price
- 7
- Condition
- 8
- Location
- 8
- Land
- 7
- Bedrooms
- 3
- Bathrooms
- 2
- Sqft (est)
- 1,187.98
- Lot (est)
- 1,403.00
The heatmap indicates the level of crime in the area. The color of the heatmap indicates the crime severity and recency.
Metrics Year-on-Year
- Average area value
- 416,667.00 £Decreased by 3.65 %
- Est sale value
- 576,170.30 £Increased by 20.35 %
- Average area rental value
- 1,125.00 £/moDecreased by 20.66 %
- Est letting value
- 1,187.98 £/moUnchanged by 0.00 %
- Est rental Yield
- 3.24 %Decreased by 17.56 %
- Crime Rate
- 0.00 %
Agent Activity
Taylor Hill & Bond created the listing.
Nearby Schools
| Name | Type | Ofsted | Distance |
|---|---|---|---|
| Meoncross School | Other Independent School | 0.95 KM | |
| Crofton Anne Dale Infant School | Community School | Outstanding | 1.12 KM |
| Crofton Anne Dale Junior School | Community School | Good | 1.12 KM |
| Crofton Hammond Junior School | Community School | Outstanding | 1.49 KM |
| Crofton Hammond Infant School | Community School | Outstanding | 1.49 KM |
Images
Nearby Streets
| Name | Average Price | Average Sqft | Distance |
|---|---|---|---|
| Hither Bull Hill | £ 0 | 0 | 0.00 KM |
| Scott Close | £ 0 | 0 | 0.00 KM |
| Grange Close | £ 731,667 | 0 | 0.00 KM |
| Crofton View | £ 750,000 | 0 | 0.00 KM |
| Hazelwood | £ 0 | 0 | 0.00 KM |
Nearby Transport
| Name | NLC | TLC | Distance |
|---|---|---|---|
| Fareham | 5900 | FRM | 3.53 KM |
| Swanwick | 5920 | SNW | 7.14 KM |
Nearby Listings
| Address | Price | Type | Score | Distance |
|---|---|---|---|---|
| Marks Tey Road, Stubbington | £ 585,000 | BUY | 7 / 10 | 0.00 KM |
| Marks Tey Road, Stubbington, PO14 | £ 715,000 | BUY | 6 / 10 | 0.04 KM |
| Marks Tey Road, Stubbington | £ 765,000 | BUY | 7 / 10 | 0.09 KM |
| St. Marys Road, Fareham | £ 585,000 | BUY | 7 / 10 | 0.18 KM |
| St. Marys Road, Stubbington | £ 460,000 | BUY | Unknown | 0.22 KM |
Nearby Properties
| Address | Price | Distance |
|---|---|---|
| 7 Marks Tey Road | £ 390,000 | 0.05 KM |
| 3 Marks Tey Road | £ 420,000 | 0.05 KM |
| 31 Marks Tey Road | £ 525,000 | 0.05 KM |
| 15 Marks Tey Road | £ 650,000 | 0.05 KM |
| 46 Marks Tey Road | £ 455,000 | 0.05 KM |