The Common, Baddesley Ensor, CV9
HO

The Common, Baddesley Ensor, CV9

By Howkins & Harrison LLP

£ 349,000

Reviews

3 out of 5 stars

Howkins & Harrison LLP says ..

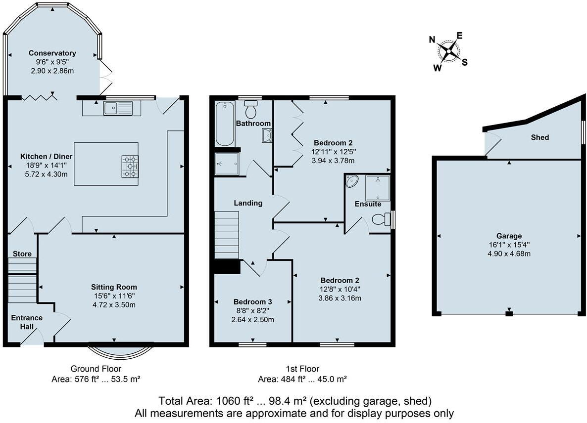
A deceptively spacious three bedroom end terrace property occupying a generous size plot. Having well proportioned accommodation throughout in brief comprising: entrance hall, front sitting room, large kitchen breakfast/dining room, and a conservatory. To the first floor are three bedrooms, main...

Property Oracle says ..

The property is located in Baddesley Ensor, Warwickshire, a village in the North Warwickshire district of the West Midlands. The area benefits from nearby primary schools with good Ofsted ratings, including Woodside Cofe Primary School (0.25km) and several others within a 4km radius. Train stations at Atherstone and Polesworth are also within a reasonable commuting distance. The property itself is an end-of-terrace house with three bedrooms and two bathrooms, and a plot size that appears to include a garden and off-street parking based on the provided aerial and ground-level images. The images also show a well-maintained property with a modern kitchen and updated bathrooms. The property’s size is 1060 sqft. The average price per sqft in the area is £264.00, and the average house price is £272,757. The list price of £349,000 is higher than the average for the area but appears reasonable given the property’s apparent condition, the included garden, and the relatively small number of comparable properties for sale in the immediate vicinity. The list price is also supported by the higher prices of nearby similar properties.

Therefore, we give this property 7 / 10. *Disclaimer: This is our option and does constitute a recommendation or financial advice. Do your own research. *

Price
7
Condition
9
Location
8
Land
7
Bedrooms
3
Bathrooms
2
Sqft (est)
1,060.00

The heatmap indicates the level of crime in the area. The color of the heatmap indicates the crime severity and recency.

Metrics Year-on-Year

Average area value
376,667.00 £
Decreased by 11.42 %
from 425,220.00 £
Est sale value
316,940.00 £
Decreased by 27.43 %
from 436,720.00 £
Average area rental value
1,100.00 £/mo
Increased by 18.92 %
from 925.00 £/mo
Est letting value
0.00 £/mo
from 0.00 £/mo
Est rental Yield
3.50 %
Increased by 34.10 %
from 2.61 %
Crime Rate
21.00 %
Unchanged by 0.00 %
from 21.00 %

Agent Activity

  • Howkins & Harrison LLP created the listing.

Nearby Schools

NameTypeOfstedDistance
Woodside Cofe Primary SchoolAcademy ConverterGood0.25 KM
Dordon Primary SchoolAcademy Sponsor LedGood3.21 KM
Birchwood Primary SchoolAcademy ConverterOutstanding4.03 KM
The Polesworth SchoolAcademy ConverterOutstanding4.09 KM
The Nethersole Cofe AcademyAcademy Sponsor LedGood4.42 KM

Images

The Common, Baddesley Ensor The Common, Baddesley Ensor The Common, Baddesley Ensor The Common, Baddesley Ensor The Common, Baddesley Ensor The Common, Baddesley Ensor The Common, Baddesley Ensor The Common, Baddesley Ensor The Common, Baddesley Ensor The Common, Baddesley Ensor The Common, Baddesley Ensor The Common, Baddesley Ensor The Common, Baddesley Ensor The Common, Baddesley Ensor The Common, Baddesley Ensor The Common, Baddesley Ensor The Common, Baddesley Ensor The Common, Baddesley Ensor The Common, Baddesley Ensor The Common, Baddesley Ensor The Common, Baddesley Ensor The Common, Baddesley Ensor The Common, Baddesley Ensor The Common, Baddesley Ensor The Common, Baddesley Ensor The Common, Baddesley Ensor

Nearby Streets

NameAverage PriceAverage SqftDistance
Maypole Lane £ 000.00 KM
Baddesley Drive £ 000.00 KM
Church Row £ 200,00000.00 KM
All Saints Close £ 000.00 KM
Rocheford Way £ 000.00 KM

Nearby Transport

NameNLCTLCDistance
Atherstone1074ATH4.92 KM
Polesworth1078PSW5.09 KM
Wilnecote (Staffs)1056WNE9.66 KM

Nearby Listings

AddressPriceTypeScoreDistance
The Common, Baddesley Ensor, CV9 £ 349,000BUY7 / 100.00 KM
Maypole Lane, Grendon £ 600,000BUY7 / 100.12 KM
The Common, Grendon £ 425,000BUY7 / 100.15 KM
The Common, Grendon £ 375,000BUY6 / 100.15 KM
Old School Court, Grendon, Atherstone, Warwickshire, CV9 £ 275,000BUYUnknown0.18 KM

Nearby Properties

AddressPriceDistance
18 Oakwood Close £ 188,0000.10 KM
5 Oakwood Close £ 250,0000.10 KM
2 Oakwood Close £ 138,5000.10 KM
11 Oakwood Close £ 140,5000.10 KM
Woodview Stables £ 575,0000.12 KM