CA
Lot 1: Barn At Lower Huntham Farm, Huntham, Stoke St. Gregory, Taunton, TA3
By Carter Jonas Rural
£ 280,000
Carter Jonas Rural says ..
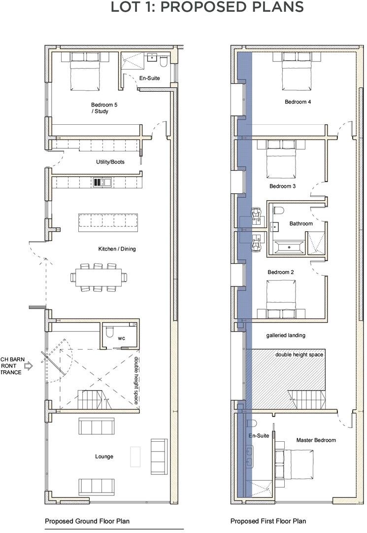
A Dutch barn with permission for conversion to a 275sqm dwelling. Set within about 0.40 of an acre with up to a further 1.75 acres of adjoining land available.
- Bedrooms
- 0
- Bathrooms
- 0
The heatmap indicates the level of crime in the area. The color of the heatmap indicates the crime severity and recency.
Metrics Year-on-Year
- Average area value
- 549,387.00 £Increased by 31.03 %
- Average area rental value
- 1,181.00 £/moDecreased by 30.53 %
- Est rental Yield
- 2.58 %Decreased by 47.02 %
- Crime Rate
- 0.00 %
from 419,291.00 £
from 1,700.00 £/mo
from 4.87 %
from 0.00 %
Agent Activity
Carter Jonas Rural created the listing.
Nearby Schools
| Name | Type | Ofsted | Distance |
|---|---|---|---|
| Stoke St Gregory Church Of England Primary School | Voluntary Controlled School | Requires improvement | 1.39 KM |
| North Curry Cofe Primary School | Academy Converter | 3.80 KM | |
| Curry Mallet Church Of England Primary School | Voluntary Controlled School | Outstanding | 4.93 KM |
| Inaura School | Other Independent Special School | Good | 5.07 KM |
| Curry Rivel Church Of England Vc Primary School | Voluntary Controlled School | Requires improvement | 7.96 KM |
Images
Nearby Streets
| Name | Average Price | Average Sqft | Distance |
|---|---|---|---|
| North Drove | £ 0 | 0 | 0.00 KM |
Nearby Listings
| Address | Price | Type | Score | Distance |
|---|---|---|---|---|
| Lot 1: Barn At Lower Huntham Farm, Huntham, Stoke St. Gregory, Taunton, TA3 | £ 280,000 | COMMERCIAL_BUY | Unknown | 0.00 KM |
| Lot 2: Barn At Lower Huntham Farm, Huntham, Stoke St. Gregory, Taunton, TA3 | £ 200,000 | COMMERCIAL_BUY | Unknown | 0.00 KM |
Nearby Properties
| Address | Price | Distance |
|---|---|---|
| Willow Barn | £ 770,000 | 0.87 KM |
| Willowstoke House | £ 458,000 | 0.87 KM |
| Sunnycroft | £ 283,000 | 0.87 KM |
| 2 Meare Green | £ 378,500 | 0.87 KM |
| Corner Cottage | £ 315,000 | 0.87 KM |