Miles & Barr says ..
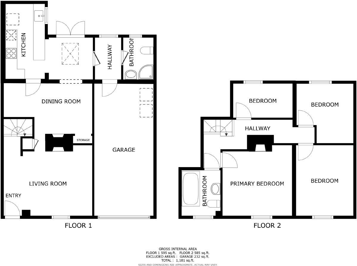
Miles and Barr are delighted to bring to the market this beautifully presented, extended four bedroom family home. Situated on the sought after Swan Lane, Sellindge, this property is ideal for those looking to be situated within easy reach of Ashford, Hythe and Folkestone with access to amenities...
Property Oracle says ..
This property is a 4-bedroom, 2-bathroom semi-detached house located in Swan Lane, Ashford, TN25. The list price is £400,000, and the property has 1,382 sqft of living space and a 1,181 sqft plot size. The average price for similar properties in the area is £472,486, with an average price per sqft of £405. The property appears to be in good condition, with a modern kitchen and updated bathrooms. There is a garden and a detached garage. The location is convenient, with nearby schools and transportation. Given the condition, location, and size of the property, the asking price seems reasonable.
Therefore, we give this property 7 / 10. *Disclaimer: This is our option and does constitute a recommendation or financial advice. Do your own research. *
- Price
- 7
- Condition
- 8
- Location
- 7
- Land
- 7
- Bedrooms
- 4
- Bathrooms
- 2
- Sqft (est)
- 1,382.00
- Lot (est)
- 1,181.00
The heatmap indicates the level of crime in the area. The color of the heatmap indicates the crime severity and recency.
Metrics Year-on-Year
- Average area value
- 453,050.00 £Decreased by 26.49 %
- Est sale value
- 679,944.00 £Increased by 11.56 %
- Average area rental value
- 900.00 £/moDecreased by 20.56 %
- Est letting value
- 0.00 £/mo
- Est rental Yield
- 2.38 %Increased by 7.69 %
- Crime Rate
- 185.00 %Unchanged by 0.00 %
Agent Activity
Miles & Barr created the listing.
Nearby Schools
| Name | Type | Ofsted | Distance |
|---|---|---|---|
| Sellindge Primary School | Community School | Outstanding | 0.40 KM |
| Lympne Church Of England Primary School | Voluntary Controlled School | Good | 3.89 KM |
| Brabourne Church Of England Primary School | Voluntary Controlled School | Good | 4.12 KM |
| Smeeth Community Primary School | Foundation School | Requires improvement | 4.84 KM |
| Stowting Church Of England Primary School | Voluntary Controlled School | Good | 5.26 KM |
Images
Nearby Streets
| Name | Average Price | Average Sqft | Distance |
|---|---|---|---|
| Cromwell Close | £ 0 | 0 | 0.00 KM |
| Main Road | £ 0 | 0 | 0.00 KM |
| Meadow View | £ 0 | 0 | 0.00 KM |
| De Montfort Drive | £ 0 | 0 | 0.00 KM |
Nearby Transport
| Name | NLC | TLC | Distance |
|---|---|---|---|
| Westenhanger | 5030 | WHA | 3.65 KM |
| Sandling | 5025 | SDG | 6.78 KM |
Nearby Listings
| Address | Price | Type | Score | Distance |
|---|---|---|---|---|
| Swan Lane, Ashford, TN25 | £ 400,000 | BUY | 7 / 10 | 0.00 KM |
| Swan Lane, Sellindge, Ashford, Kent, TN25 6EP | £ 395,000 | BUY | 7 / 10 | 0.04 KM |
| Swan Lane, Sellindge, Ashford, Kent | £ 260,000 | BUY | 6 / 10 | 0.05 KM |
| Downs Way, Sellindge, Kent | £ 375,000 | BUY | 7 / 10 | 0.06 KM |
| Swan Lane, Sellindge, Ashford | £ 585,000 | BUY | 7 / 10 | 0.08 KM |
Nearby Properties
| Address | Price | Distance |
|---|---|---|
| 17 Swan Lane | £ 362,000 | 0.04 KM |
| 19 Swan Lane | £ 425,000 | 0.04 KM |
| 22 Swan Lane | £ 262,500 | 0.04 KM |
| 14 Swan Lane | £ 151,000 | 0.04 KM |
| 1 Swan Lane | £ 89,000 | 0.04 KM |