KE
Osprey Drive, Stowmarket, IP14
By Keller Williams
£ 300,000
Reviews
3 out of 5 stars
Keller Williams says ..
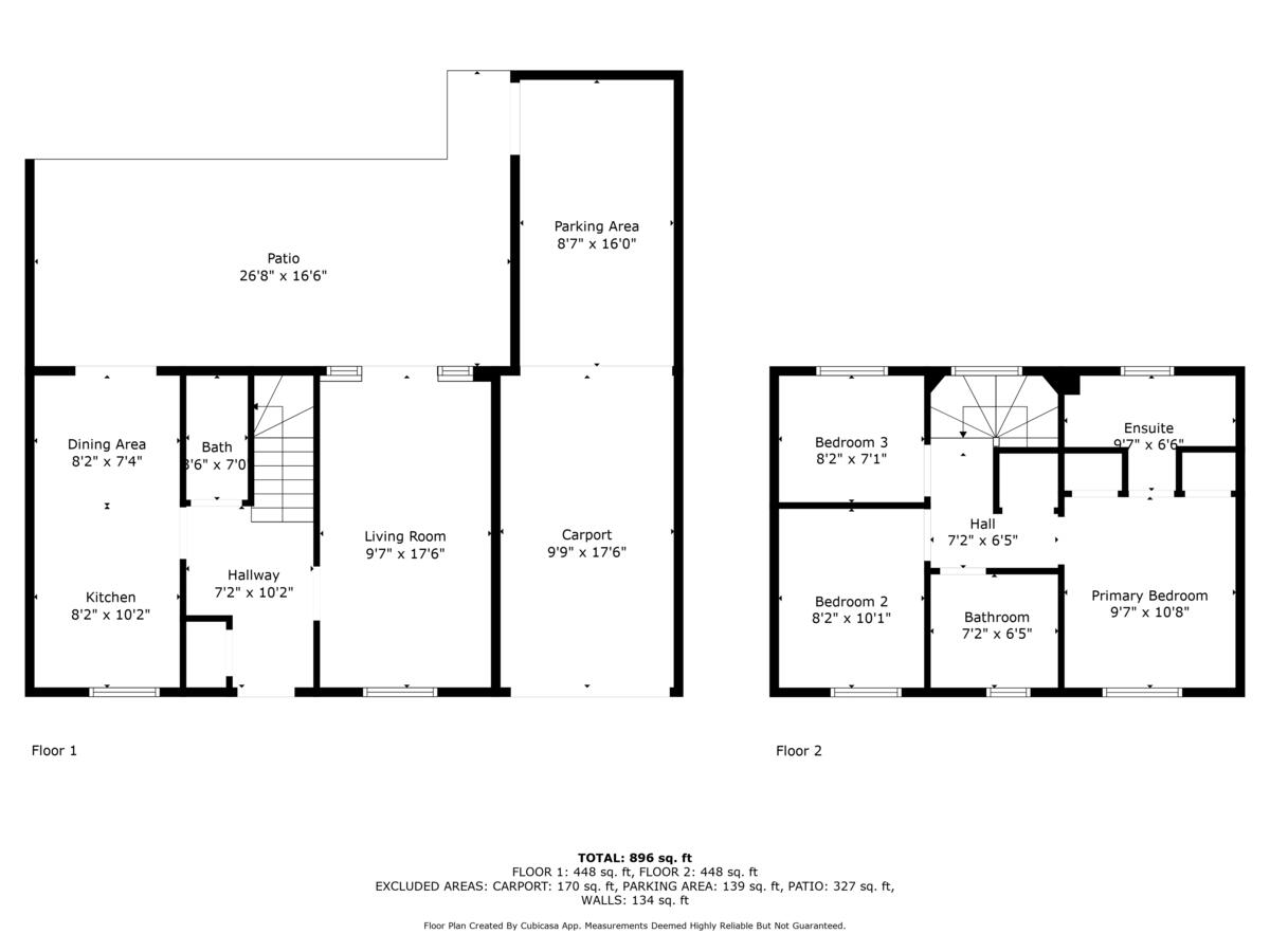
Bright, move-in ready, with en-suite master, stylish kitchen, low-maintenance garden with pergola, and carport. Walk to Tesco, schools, parks, and Stowmarket station. Ideal first or second step home
Property Oracle says ..
Therefore, we give this property 7 / 10. *Disclaimer: This is our option and does constitute a recommendation or financial advice. Do your own research. *
- Price
- 9
- Condition
- 8
- Location
- 7
- Land
- 7
- Bedrooms
- 3
- Bathrooms
- 3
- Sqft (est)
- 896.00
The heatmap indicates the level of crime in the area. The color of the heatmap indicates the crime severity and recency.
Metrics Year-on-Year
- Average area value
- 349,167.00 £Increased by 16.59 %
- Est sale value
- 519,680.00 £Increased by 91.42 %
- Average area rental value
- 1,255.00 £/moIncreased by 17.18 %
- Est letting value
- 1,792.00 £/moIncreased by 100.00 %
- Est rental Yield
- 4.31 %Increased by 0.47 %
- Crime Rate
- 20.00 %Unchanged by 0.00 %
from 299,478.00 £
from 271,488.00 £
from 1,071.00 £/mo
from 896.00 £/mo
from 4.29 %
from 20.00 %
Agent Activity
Keller Williams created the listing.
Nearby Schools
| Name | Type | Ofsted | Distance |
|---|---|---|---|
| Cedars Park Community Primary School | Academy Converter | Requires improvement | 0.69 KM |
| Stowupland High School | Academy Converter | Requires improvement | 1.43 KM |
| Freeman Community Primary School | Academy Converter | 1.93 KM | |
| Combs Ford Primary School | Academy Converter | 2.07 KM | |
| Trinity Church Of England Voluntary Aided Primary School | Voluntary Aided School | Good | 2.17 KM |
Images
Nearby Streets
| Name | Average Price | Average Sqft | Distance |
|---|---|---|---|
| Woodpecker Close | £ 387,500 | 0 | 0.00 KM |
| Hare Road | £ 331,426 | 0 | 0.00 KM |
| Muntjac Gardens | £ 224,165 | 0 | 0.00 KM |
| Hummingbird Drive | £ 0 | 0 | 0.00 KM |
| A1120 | £ 0 | 0 | 0.00 KM |
Nearby Transport
| Name | NLC | TLC | Distance |
|---|---|---|---|
| Stowmarket | 7355 | SMK | 1.99 KM |
| Needham Market | 7354 | NMT | 5.74 KM |
Nearby Listings
| Address | Price | Type | Score | Distance |
|---|---|---|---|---|
| Osprey Drive, Stowmarket, IP14 | £ 300,000 | BUY | 7 / 10 | 0.00 KM |
| Osprey Drive, Stowmarket, IP14 | £ 290,000 | BUY | 8 / 10 | 0.01 KM |
| Osprey Drive, Stowmarket, IP14 | £ 290,000 | BUY | 6 / 10 | 0.02 KM |
| Osprey Drive, Stowmarket | £ 300,000 | BUY | 7 / 10 | 0.02 KM |
| Osprey Drive, Stowmarket, IP14 | £ 260,000 | BUY | 7 / 10 | 0.02 KM |
Nearby Properties
| Address | Price | Distance |
|---|---|---|
| 99 Osprey Drive | £ 210,000 | 0.03 KM |
| 133 Osprey Drive | £ 145,000 | 0.03 KM |
| 100 Osprey Drive | £ 246,000 | 0.03 KM |
| 77 Osprey Drive | £ 270,000 | 0.03 KM |
| 113 Osprey Drive | £ 295,000 | 0.03 KM |