Real Estates says ..
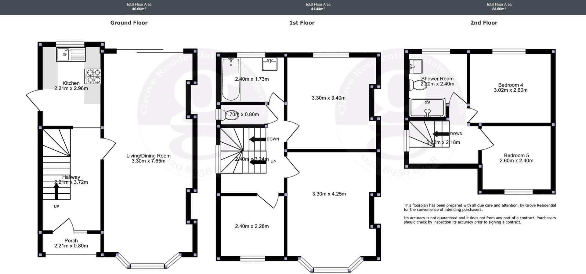
Situated on this popular road, within moments to Glengall Road parade, is this 5 bedroom 2 bedroom semi detached family home. Within the Eruv. Modernise to your specification. Scope to extend in the rear stpp. Loft conversion comprises 2 bedrooms and a shower room. Mature 70ft approx rear garden ...
Property Oracle says ..
This is a semi-detached property in Edgware, Greater London, featuring 5 bedrooms and 2 bathrooms. The property is conveniently located near schools and transportation. It has a garden. However, the property needs some renovation. The price is fair, but not great value for money.
Therefore, we give this property 6 / 10. *Disclaimer: This is our option and does constitute a recommendation or financial advice. Do your own research. *
- Price
- 6
- Condition
- 5
- Location
- 8
- Land
- 7
- Bedrooms
- 5
- Bathrooms
- 2
- Sqft (est)
- 702.88
The heatmap indicates the level of crime in the area. The color of the heatmap indicates the crime severity and recency.
Metrics Year-on-Year
- Average area value
- 523,881.00 £Decreased by 13.55 %
- Est sale value
- 388,692.64 £Increased by 12.86 %
- Average area rental value
- 1,887.00 £/moDecreased by 11.95 %
- Est letting value
- 702.88 £/moUnchanged by 0.00 %
- Est rental Yield
- 4.32 %Increased by 1.89 %
- Crime Rate
- 7.00 %Unchanged by 0.00 %
Agent Activity
Real Estates created the listing.
Nearby Schools
| Name | Type | Ofsted | Distance |
|---|---|---|---|
| Rosh Pinah Primary School | Voluntary Aided School | Good | 0.44 KM |
| Rosh Pinah Additional Resource Provision | Other Independent Special School | 0.49 KM | |
| Broadfields Primary School | Academy Converter | Good | 0.81 KM |
| Northway School | Community Special School | Outstanding | 0.91 KM |
| Holland House School | Other Independent School | 0.99 KM |
Images
Nearby Streets
| Name | Average Price | Average Sqft | Distance |
|---|---|---|---|
| Kenilworth Road | £ 595,000 | 0 | 0.00 KM |
| Hurstmere Court | £ 900,000 | 0 | 0.00 KM |
| Clay Lane | £ 0 | 0 | 0.00 KM |
| Mowbray Parade | £ 199,950 | 0 | 0.00 KM |
| Crossgate | £ 0 | 0 | 0.00 KM |
Nearby Transport
| Name | NLC | TLC | Distance |
|---|---|---|---|
| Mill Hill Broadway | 1527 | MIL | 2.48 KM |
| Elstree And Borehamwood | 1542 | ELS | 3.24 KM |
| Hendon | 1522 | HEN | 6.09 KM |
| Kenton | 1399 | KNT | 7.51 KM |
| South Kenton | 1453 | SOK | 7.84 KM |
Nearby Listings
| Address | Price | Type | Score | Distance |
|---|---|---|---|---|
| Kenilworth Road, Edgware | £ 649,950 | BUY | 6 / 10 | 0.00 KM |
| Kenilworth Road, Edgware | £ 699,950 | BUY | 6 / 10 | 0.03 KM |
| Maytree Close, Edgware | £ 510,000 | BUY | 7 / 10 | 0.06 KM |
| Maytree Close, Edgware | £ 495,000 | BUY | 7 / 10 | 0.07 KM |
| Kenilworth Road, Edgware | £ 650,000 | BUY | 6 / 10 | 0.07 KM |
Nearby Properties
| Address | Price | Distance |
|---|---|---|
| 66 Kenilworth Road | £ 350,000 | 0.05 KM |
| 96 Kenilworth Road | £ 750,000 | 0.05 KM |
| 74 Kenilworth Road | £ 245,000 | 0.05 KM |
| 88 Kenilworth Road | £ 575,000 | 0.05 KM |
| 102 Kenilworth Road | £ 286,000 | 0.05 KM |