Rhosneigr Property says ..
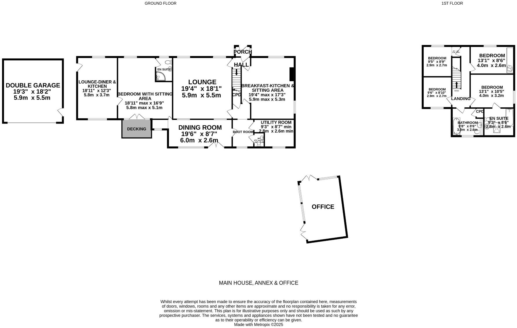
A substantial detached property occupying a rural site of 5.8 acres within very easy reach of local amenities and enjoying panoramic views.
Property Oracle says ..
Therefore, we give this property 7 / 10. *Disclaimer: This is our option and does constitute a recommendation or financial advice. Do your own research. *
- Price
- 6
- Condition
- 8
- Location
- 7
- Land
- 9
- Bedrooms
- 5
- Bathrooms
- 3
The heatmap indicates the level of crime in the area. The color of the heatmap indicates the crime severity and recency.
Metrics Year-on-Year
- Average area value
- 262,500.00 £Decreased by 10.08 %
- Average area rental value
- 1,150.00 £/moIncreased by 8.29 %
- Est rental Yield
- 5.26 %Increased by 20.37 %
- Crime Rate
- 0.00 %
from 291,910.00 £
from 1,062.00 £/mo
from 4.37 %
from 0.00 %
Agent Activity
Rhosneigr Property created the listing.
Nearby Schools
| Name | Type | Ofsted | Distance |
|---|---|---|---|
| Ysgol Gynradd Bodedern | Welsh Establishment | 5.27 KM | |
| Ysgol Uwchradd Bodedern | Welsh Establishment | 5.42 KM | |
| Ysgol Y Tywyn | Welsh Establishment | 6.28 KM | |
| Ysgol Caergeiliog Foundation School | Welsh Establishment | 6.28 KM | |
| Ysgol Gymuned Fali | Welsh Establishment | 6.81 KM |
Images
Nearby Streets
| Name | Average Price | Average Sqft | Distance |
|---|---|---|---|
| Pen y Graig | £ 0 | 0 | 0.00 KM |
| Pont Dronwy | £ 0 | 0 | 0.00 KM |
| Edern Terrace | £ 0 | 0 | 0.00 KM |
Nearby Transport
| Name | NLC | TLC | Distance |
|---|---|---|---|
| Valley | 2440 | VAL | 6.58 KM |
Nearby Listings
| Address | Price | Type | Score | Distance |
|---|---|---|---|---|
| Llanfachraeth LL65 | £ 699,950 | BUY | 7 / 10 | 0.00 KM |
| Llanfachraeth, Holyhead, Isle of Anglesey, LL65 | £ 425,000 | BUY | Unknown | 1.38 KM |
| Llanfachraeth, Llanfachraeth, LL65 | £ 499,950 | BUY | 7 / 10 | 1.69 KM |
| Llanfwrog, Holyhead, Isle of Anglesey, LL65 | £ 730,000 | BUY | 6 / 10 | 1.85 KM |
| Llanfachraeth, Holyhead, Isle of Anglesey, LL65 | £ 650,000 | BUY | 7 / 10 | 1.87 KM |
Nearby Properties
| Address | Price | Distance |
|---|---|---|
| 13 Roe Buck Estate | £ 133,000 | 1.93 KM |
| 27 Roe Buck Estate | £ 247,000 | 1.93 KM |
| 19 Roe Buck Estate | £ 227,000 | 1.93 KM |
| 8 Roe Buck Estate | £ 187,000 | 1.93 KM |
| 9 Roe Buck Estate | £ 290,000 | 1.93 KM |