Tidmington Close, Hatton Park
By Julie Philpot
£ 525,000
Reviews
3 out of 5 stars
Julie Philpot says ..
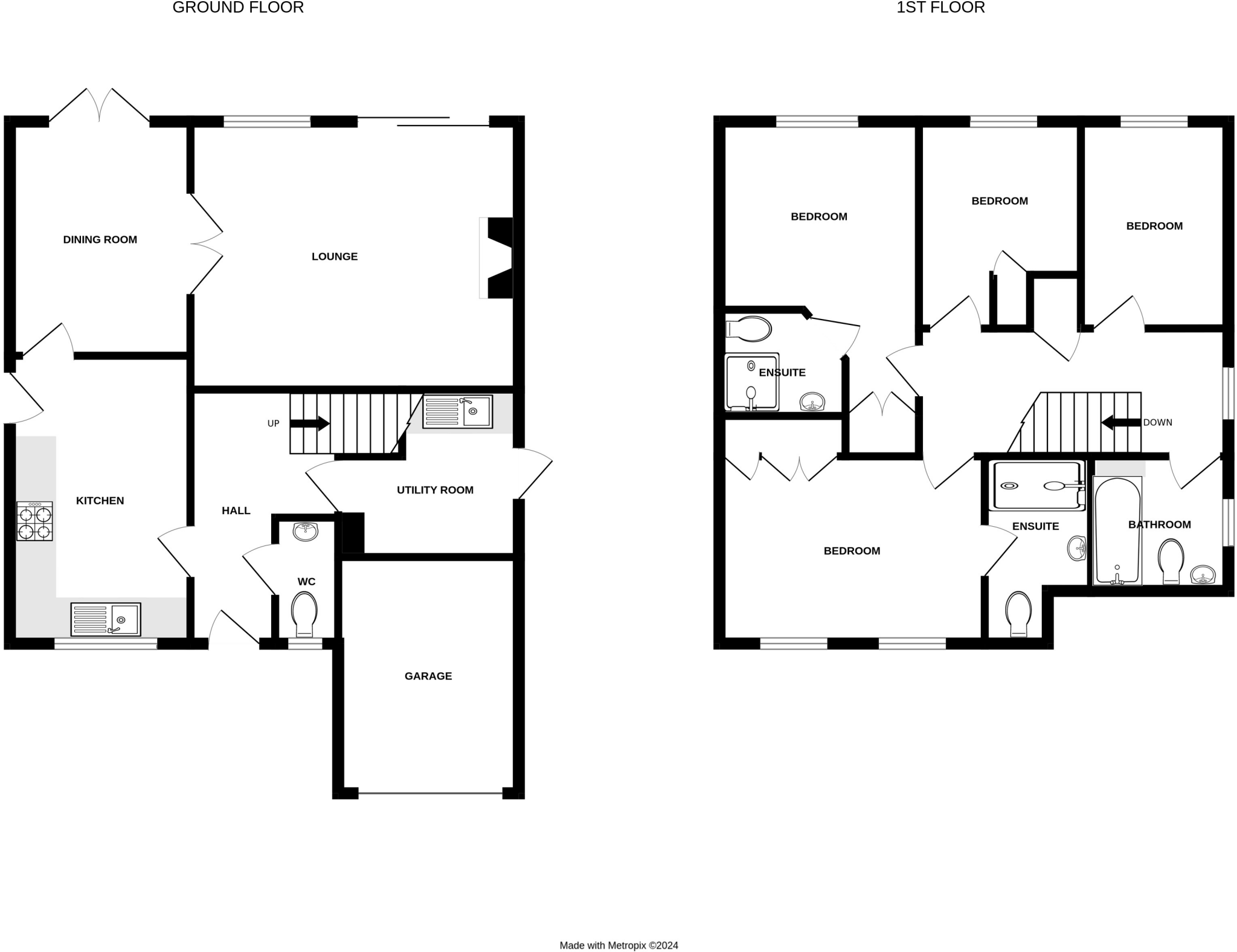
A delightful detached family home in a cul de sac location with mature rear garden offering a high degree of privacy. This property is on the market for the first time since construction and is available with 'No Chain' involved. The house also has so many benefits to include: four bedrooms, two ...
Property Oracle says ..
This four-bedroom, three-bathroom detached house in Hatton Park, Warwick, presents a potentially attractive offering for families. The property benefits from a desirable location, with relatively easy access to several railway stations, and is also within reasonable proximity to well-regarded primary schools. The recently updated kitchen is a significant positive, while the rear garden provides a good amount of private outdoor space. However, while the condition is generally good, some areas could benefit from updating, including the carpeting and overall décor of certain rooms, which could affect the immediate appeal to potential buyers. The listing price of £525,000 appears consistent with comparable properties in the area, based on limited data available, but a definitive assessment of value per square foot is not possible due to missing plot size details for the subject property and its neighbours. The absence of precise property dimensions and square footage for comparable listings creates uncertainty in the overall analysis. More granular information is needed to definitively assess the property’s value and suitability for buyers.
Therefore, we give this property 6 / 10. *Disclaimer: This is our option and does constitute a recommendation or financial advice. Do your own research. *
- Price
- 7
- Condition
- 6
- Location
- 7
- Land
- 6
- Bedrooms
- 4
- Bathrooms
- 3
- Sqft (est)
- 1,000.00
The heatmap indicates the level of crime in the area. The color of the heatmap indicates the crime severity and recency.
Metrics Year-on-Year
- Average area value
- 650,000.00 £Increased by 33.91 %
- Est sale value
- 556,000.00 £Increased by 46.70 %
- Average area rental value
- 1,492.00 £/moIncreased by 9.38 %
- Est letting value
- 1,000.00 £/moUnchanged by 0.00 %
- Est rental Yield
- 2.75 %Decreased by 18.40 %
- Crime Rate
- 48.00 %Unchanged by 0.00 %
Agent Activity
Julie Philpot created the listing.
Nearby Schools
| Name | Type | Ofsted | Distance |
|---|---|---|---|
| Budbrooke Primary School | Academy Sponsor Led | Good | 1.97 KM |
| The Ferncumbe Cofe Primary School | Academy Converter | 3.15 KM | |
| Newburgh Primary School | Community School | Good | 4.34 KM |
| Aylesford School Warwick | Academy Converter | Good | 4.54 KM |
| Woodloes Primary School | Academy Converter | Good | 4.57 KM |
Images
Nearby Streets
| Name | Average Price | Average Sqft | Distance |
|---|---|---|---|
| Raynes Close | £ 0 | 0 | 0.00 KM |
| Tithe Barn Close | £ 395,000 | 0 | 0.00 KM |
| New Close | £ 0 | 0 | 0.00 KM |
| Hayward Close | £ 0 | 0 | 0.00 KM |
| Hunt Close | £ 0 | 0 | 0.00 KM |
Nearby Transport
| Name | NLC | TLC | Distance |
|---|---|---|---|
| Warwick Parkway | 8530 | WRP | 2.49 KM |
| Hatton | 4594 | HTN | 4.59 KM |
| Warwick | 4600 | WRW | 5.62 KM |
| Claverdon | 4593 | CLV | 7.54 KM |
| Kenilworth | 7985 | KNW | 8.23 KM |
Nearby Listings
| Address | Price | Type | Score | Distance |
|---|---|---|---|---|
| Tidmington Close, Hatton Park | £ 525,000 | BUY | 6 / 10 | 0.00 KM |
| Combroke Grove, Hatton Park, Warwick | £ 315,000 | BUY | Unknown | 0.10 KM |
| Tidmington Close, Hatton Park, Warwick | £ 500,000 | BUY | 7 / 10 | 0.11 KM |
| Raynes Close, Hatton, CV35 | £ 64,800 | BUY | 6 / 10 | 0.15 KM |
| Admington Drive, Hatton Park, Warwick, CV35 7TZ | £ 495,000 | BUY | 6 / 10 | 0.18 KM |
Nearby Properties
| Address | Price | Distance |
|---|---|---|
| 26 Tidmington Close | £ 420,000 | 0.06 KM |
| 5 Tidmington Close | £ 425,000 | 0.06 KM |
| 7 Tidmington Close | £ 575,000 | 0.06 KM |
| 8 Tidmington Close | £ 245,000 | 0.06 KM |
| 21 Tidmington Close | £ 313,500 | 0.06 KM |