GR
Elmfield Terrace, Darlington, DL3
By Griffin Property Co.
£ 115,000
Reviews
2 out of 5 stars
Griffin Property Co. says ..
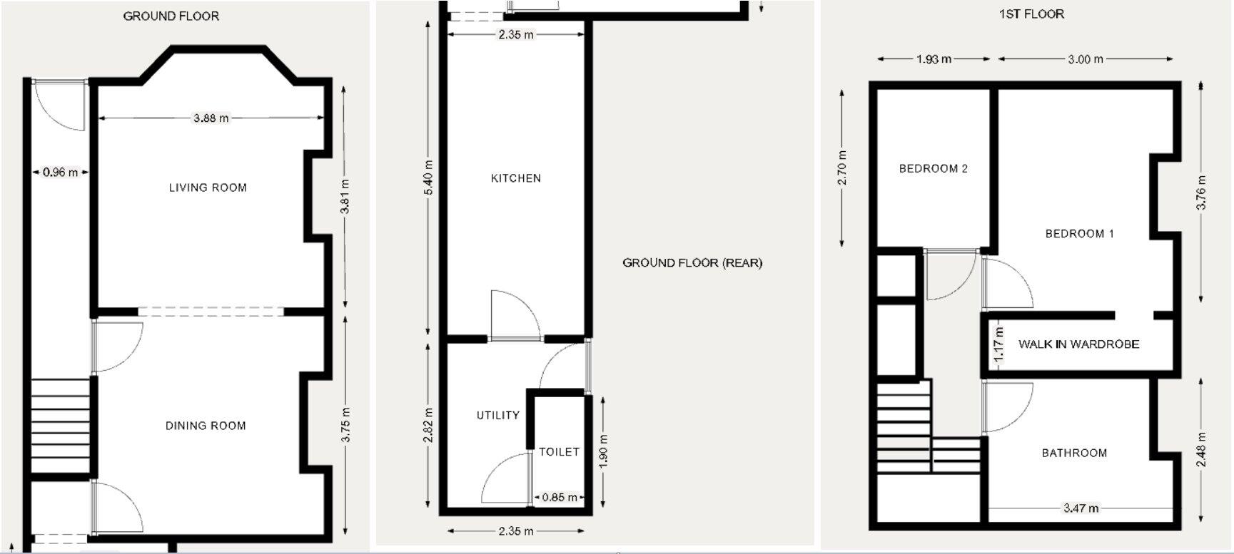
Well presented 2 bed Victorian terrace with rear extension and spacious living accommodation. Close to the town centre, with on street parking and over looking North Lodge park. Converted from a 3 bed to make space for a generous bathroom and walk in wardrobe. Built in storage throughout, recently
Property Oracle says ..
Therefore, we give this property 5 / 10. *Disclaimer: This is our option and does constitute a recommendation or financial advice. Do your own research. *
- Price
- 8
- Condition
- 6
- Location
- 7
- Land
- 1
- Bedrooms
- 2
- Bathrooms
- 2
- Sqft (est)
- 853.25
The heatmap indicates the level of crime in the area. The color of the heatmap indicates the crime severity and recency.
Metrics Year-on-Year
- Average area value
- 315,875.00 £Increased by 78.34 %
- Est sale value
- 394,201.50 £Increased by 121.05 %
- Average area rental value
- 686.00 £/moDecreased by 15.52 %
- Est letting value
- 853.25 £/mo
- Est rental Yield
- 2.61 %Decreased by 52.55 %
- Crime Rate
- 6.00 %Unchanged by 0.00 %
from 177,120.00 £
from 178,329.25 £
from 812.00 £/mo
from 0.00 £/mo
from 5.50 %
from 6.00 %
Agent Activity
Griffin Property Co. created the listing.
Nearby Schools
| Name | Type | Ofsted | Distance |
|---|---|---|---|
| Corporation Road Community Primary School | Academy Sponsor Led | Requires improvement | 0.07 KM |
| Mcnay Street Sure Start Children'S Centre | Children's Centre | 0.45 KM | |
| George Dent Nursery School | Local Authority Nursery School | Outstanding | 0.78 KM |
| Reid Street Primary School | Academy Converter | Good | 0.94 KM |
| Borough Road Nursery School | Local Authority Nursery School | Good | 1.14 KM |
Images
Nearby Streets
| Name | Average Price | Average Sqft | Distance |
|---|---|---|---|
| King Street | £ 0 | 0 | 0.00 KM |
| Northgate | £ 0 | 0 | 0.00 KM |
| North Road | £ 0 | 0 | 0.00 KM |
| Mercia Court | £ 0 | 0 | 0.00 KM |
| Burns Yard | £ 0 | 0 | 0.00 KM |
Nearby Transport
| Name | NLC | TLC | Distance |
|---|---|---|---|
| North Road (Darlington) | 7895 | NRD | 0.59 KM |
| Darlington | 7877 | DAR | 1.57 KM |
| Heighington | 7887 | HEI | 7.82 KM |
| Newton Aycliffe | 7834 | NAY | 9.87 KM |
Nearby Listings
| Address | Price | Type | Score | Distance |
|---|---|---|---|---|
| Elmfield Terrace, Darlington, DL3 | £ 115,000 | BUY | 5 / 10 | 0.00 KM |
| Corporation Road, Darlington | £ 170,000 | BUY | Unknown | 0.02 KM |
| Corporation Road, Darlington | £ 168,000 | BUY | 5 / 10 | 0.08 KM |
| Wilkes Street, Darlington, Durham, DL3 6AL | £ 100,000 | BUY | 7 / 10 | 0.09 KM |
| Corporation Road, Darlington | £ 150,000 | BUY | Unknown | 0.11 KM |
Nearby Properties
| Address | Price | Distance |
|---|---|---|
| 55 Corporation Road | £ 80,000 | 0.03 KM |
| 33 Corporation Road | £ 150,000 | 0.03 KM |
| 65 Corporation Road | £ 120,000 | 0.03 KM |
| 83 Corporation Road | £ 135,000 | 0.03 KM |
| 39 Corporation Road | £ 71,000 | 0.03 KM |