Lea Bank Avenue, Kidderminster
By Halls Estate Agents
£ 245,000
Reviews
3 out of 5 stars
Halls Estate Agents says ..
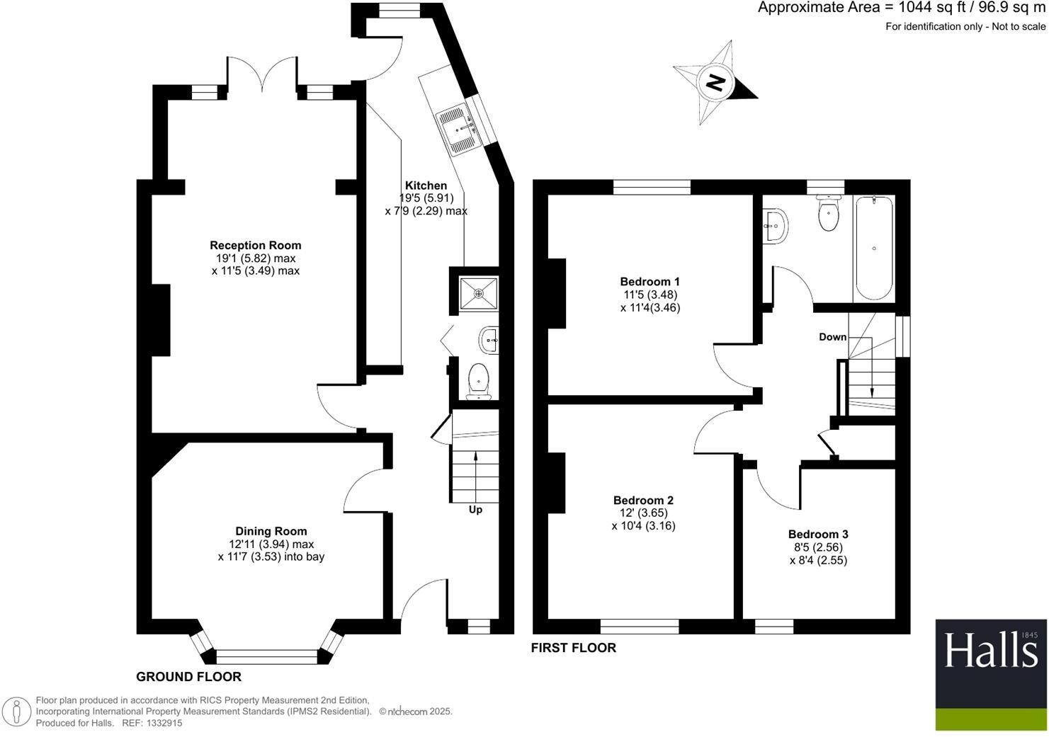
A well proportioned traditional semi-detached house situated in this popular residential location offering potential to improve and extend, subject to the necessary permissions and consent. With three bedrooms and two reception rooms and a generous plot with private gardens and off-road parking. ...
Property Oracle says ..
This semi-detached property on Lea Bank Avenue in Kidderminster presents a blend of potential and character. Its location offers proximity to schools and transportation, making it suitable for families. While the property requires modernisation, particularly in the kitchen and bathroom, it boasts a good-sized garden and retains some traditional features. The price appears reasonable when compared to nearby listings, but the renovation needs should be considered.
Therefore, we give this property 6 / 10. *Disclaimer: This is our option and does constitute a recommendation or financial advice. Do your own research. *
- Price
- 7
- Condition
- 5
- Location
- 7
- Land
- 7
- Bedrooms
- 3
- Bathrooms
- 1
- Sqft (est)
- 842.00
The heatmap indicates the level of crime in the area. The color of the heatmap indicates the crime severity and recency.
Metrics Year-on-Year
- Average area value
- 196,359.00 £Decreased by 26.64 %
- Est sale value
- 169,242.00 £Decreased by 21.79 %
- Average area rental value
- 776.00 £/moDecreased by 12.71 %
- Est letting value
- 0.00 £/mo
- Est rental Yield
- 4.74 %Increased by 18.80 %
- Crime Rate
- 1.00 %Unchanged by 0.00 %
Agent Activity
Halls Estate Agents created the listing.
Nearby Schools
| Name | Type | Ofsted | Distance |
|---|---|---|---|
| Sutton Park Primary Rsa Academy | Academy Converter | 0.30 KM | |
| Baxter College | Academy Converter | Good | 0.86 KM |
| Birchen Coppice Academy | Academy Sponsor Led | 1.17 KM | |
| Tree Tops Children'S Centre | Children's Centre | 1.17 KM | |
| Wyre Forest School | Community Special School | Good | 1.19 KM |
Images
Nearby Streets
| Name | Average Price | Average Sqft | Distance |
|---|---|---|---|
| Highgate Close | £ 0 | 0 | 0.00 KM |
| Canterbury Road | £ 0 | 0 | 0.00 KM |
| Hamilton Road | £ 270,000 | 0 | 0.00 KM |
| Shrewsbury Road | £ 95,000 | 0 | 0.00 KM |
| Willis Street | £ 0 | 0 | 0.00 KM |
Nearby Transport
| Name | NLC | TLC | Distance |
|---|---|---|---|
| Kidderminster | 4581 | KID | 3.79 KM |
| Hartlebury | 4579 | HBY | 7.70 KM |
Nearby Listings
| Address | Price | Type | Score | Distance |
|---|---|---|---|---|
| Lea Bank Avenue, Kidderminster | £ 245,000 | BUY | 6 / 10 | 0.00 KM |
| Lea Bank Avenue, Kidderminster | £ 315,000 | BUY | 6 / 10 | 0.01 KM |
| The Lea Causeway, Kidderminster | £ 240,000 | BUY | 7 / 10 | 0.11 KM |
| Lea Bank Avenue, Kidderminster, Worcestershire, DY11 | £ 375,000 | BUY | 7 / 10 | 0.15 KM |
| Lea Bank Avenue, Kidderminster, Worcestershire | £ 395,000 | BUY | 6 / 10 | 0.15 KM |
Nearby Properties
| Address | Price | Distance |
|---|---|---|
| 55 Lea Bank Avenue | £ 133,500 | 0.04 KM |
| 50a Lea Bank Avenue | £ 143,000 | 0.04 KM |
| 47 Lea Bank Avenue | £ 350,000 | 0.04 KM |
| 4 Lea Bank Avenue | £ 159,000 | 0.04 KM |
| 48 Lea Bank Avenue | £ 270,000 | 0.04 KM |