Morris and Bott says ..
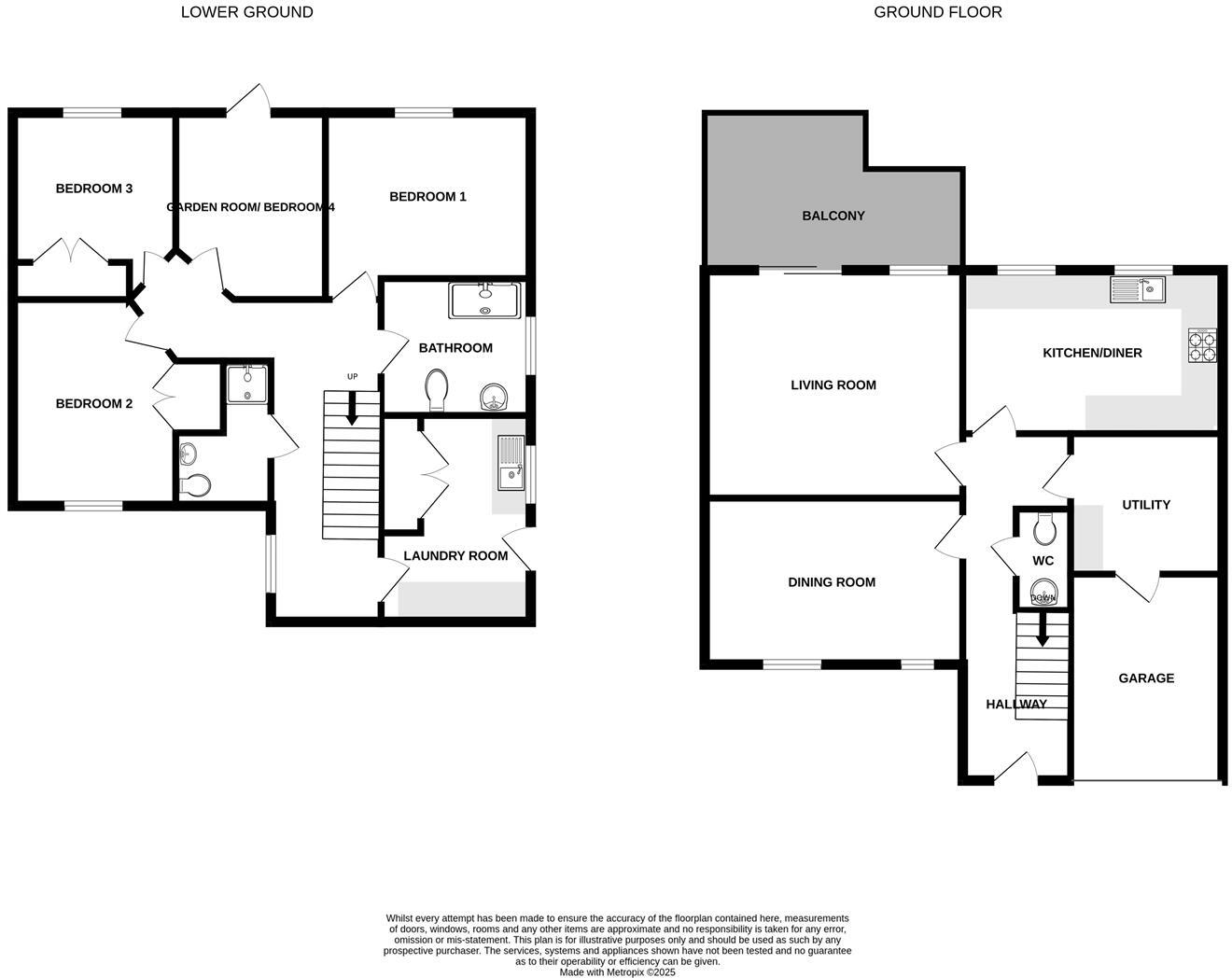
This well-appointed and generously sized detached home features a reverse-level layout, designed to take full advantage of stunning countryside views from the main living areas. Located in the charming and sought-after village of Bridgerule. The upper level comprises a welcoming entrance...
Property Oracle says ..
Therefore, we give this property 7 / 10. *Disclaimer: This is our option and does constitute a recommendation or financial advice. Do your own research. *
- Price
- 8
- Condition
- 8
- Location
- 7
- Land
- 7
- Bedrooms
- 4
- Bathrooms
- 2
- Sqft (est)
- 1,288.00
The heatmap indicates the level of crime in the area. The color of the heatmap indicates the crime severity and recency.
Metrics Year-on-Year
- Average area value
- 434,165.00 £Increased by 5.81 %
- Est sale value
- 464,968.00 £Increased by 1.12 %
- Average area rental value
- 1,103.00 £/moIncreased by 21.21 %
- Est letting value
- 0.00 £/mo
- Est rental Yield
- 3.05 %Increased by 14.66 %
- Crime Rate
- 32.00 %Unchanged by 0.00 %
from 410,315.00 £
from 459,816.00 £
from 910.00 £/mo
from 0.00 £/mo
from 2.66 %
from 32.00 %
Agent Activity
Morris and Bott created the listing.
Nearby Schools
| Name | Type | Ofsted | Distance |
|---|---|---|---|
| Bridgerule Church Of England Primary School | Academy Converter | 0.79 KM | |
| Highgate Hill House School | Other Independent Special School | 4.24 KM | |
| Whitstone Primary School | Community School | Requires improvement | 4.29 KM |
| Marhamchurch Cofe Primary School | Academy Converter | 7.70 KM | |
| Stratton Primary School | Community School | Good | 8.18 KM |
Images
Nearby Streets
| Name | Average Price | Average Sqft | Distance |
|---|---|---|---|
| The Green | £ 275,000 | 0 | 0.00 KM |
| Littlebridge Cottage | £ 0 | 0 | 0.00 KM |
| Meadow Veiw | £ 0 | 0 | 0.00 KM |
| Macarthur Close | £ 0 | 0 | 0.00 KM |
Nearby Listings
| Address | Price | Type | Score | Distance |
|---|---|---|---|---|
| Southfields, Bridgerule | £ 415,000 | BUY | 7 / 10 | 0.00 KM |
| Southfields, Bridgerule, Holsworthy, Devon, EX22 | £ 375,000 | BUY | 7 / 10 | 0.02 KM |
| Southfields, Bridgerule, Holsworthy, Devon, EX22 | £ 251,250 | BUY | 7 / 10 | 0.04 KM |
| Southfields, Bridgerule, Holsworthy, Devon, EX22 | £ 315,000 | BUY | 6 / 10 | 0.11 KM |
| Bridgerule, Devon | £ 390,000 | BUY | 7 / 10 | 0.16 KM |
Nearby Properties
| Address | Price | Distance |
|---|---|---|
| 21 Southfields | £ 225,000 | 0.04 KM |
| 30 Southfields | £ 380,000 | 0.04 KM |
| 46 Southfields | £ 200,000 | 0.04 KM |
| 29 Southfields | £ 332,500 | 0.04 KM |
| 14 Southfields | £ 240,000 | 0.04 KM |