Pyrmont Grove, London, SE27
By Brooks Estate Agents
£ 700,000
Reviews
3 out of 5 stars
Brooks Estate Agents says ..
A bright, period, four-bedroom end-of-terrace house with a private garden in West Norwood.
Property Oracle says ..
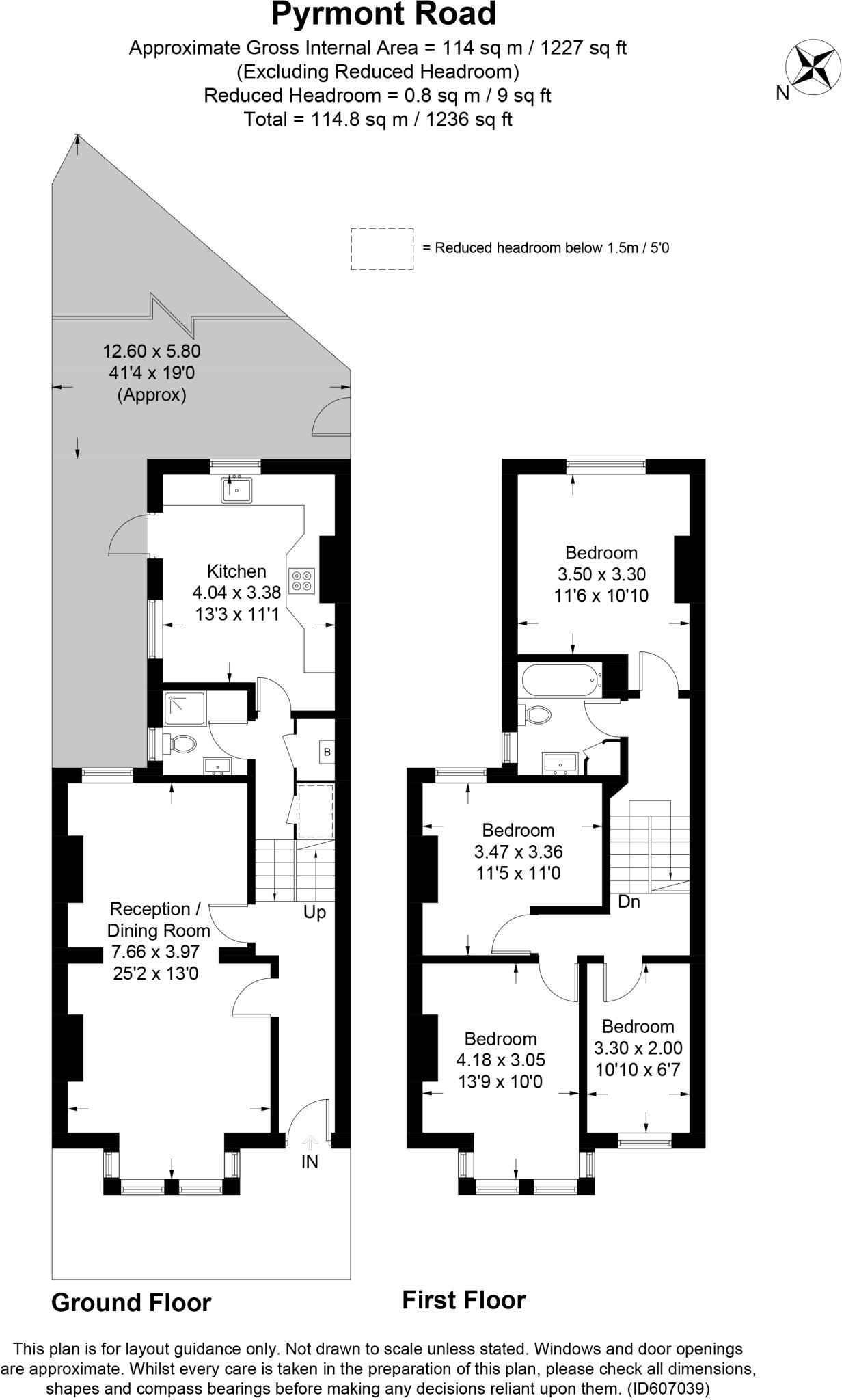
This property is a 4-bedroom, 2-bathroom end of terrace house located in Pyrmont Grove, London, SE27. The property benefits from a garden. While the provided images show a property that appears to be well-maintained and in good condition, there is no information on the square footage to determine if the list price of £700,000 is reasonable. The average property price in the area is £810,624, with an average price per square foot of £751. Nearby comparable properties range in price from £250,000 to £875,000. The location is convenient, with several schools and transportation options within a reasonable distance. More information is needed to accurately assess the property’s condition, land size, and overall value.
Therefore, we give this property 7 / 10. *Disclaimer: This is our option and does constitute a recommendation or financial advice. Do your own research. *
- Price
- 6
- Condition
- 8
- Location
- 8
- Land
- 7
- Bedrooms
- 4
- Bathrooms
- 2
- Lot (est)
- 1,236.00
The heatmap indicates the level of crime in the area. The color of the heatmap indicates the crime severity and recency.
Metrics Year-on-Year
- Average area value
- 696,167.00 £Decreased by 17.95 %
- Average area rental value
- 2,133.00 £/moDecreased by 1.25 %
- Est rental Yield
- 3.68 %Increased by 20.26 %
- Crime Rate
- 5.00 %Unchanged by 0.00 %
Agent Activity
Brooks Estate Agents created the listing.
Nearby Schools
| Name | Type | Ofsted | Distance |
|---|---|---|---|
| Julian'S School | Foundation School | Good | 0.42 KM |
| Hitherfield Primary School | Community School | Good | 0.77 KM |
| The Elmgreen School | Academy Converter | Good | 0.77 KM |
| Hitherfield Primary School & Children'S Centre (P2) | Children's Centre | 0.81 KM | |
| Streatham Wells Primary School | Community School | Good | 1.09 KM |
Images
Nearby Streets
| Name | Average Price | Average Sqft | Distance |
|---|---|---|---|
| Yeomans Close | £ 0 | 0 | 0.00 KM |
| Church Road | £ 0 | 0 | 0.00 KM |
| Tredwell Road | £ 0 | 0 | 0.00 KM |
| Auckland Hill | £ 0 | 0 | 0.00 KM |
| Eden Road | £ 0 | 0 | 0.00 KM |
Nearby Transport
| Name | NLC | TLC | Distance |
|---|---|---|---|
| West Norwood | 5438 | WNW | 0.56 KM |
| Tulse Hill | 5390 | TUH | 0.81 KM |
| West Dulwich | 5086 | WDU | 2.06 KM |
| Streatham Hill | 5435 | SRH | 2.12 KM |
| Herne Hill | 5066 | HNH | 2.31 KM |
Nearby Listings
| Address | Price | Type | Score | Distance |
|---|---|---|---|---|
| Pyrmont Grove, London, SE27 | £ 700,000 | BUY | 7 / 10 | 0.00 KM |
| Canterbury Grove, West Norwood, SE27 | £ 850,000 | BUY | 7 / 10 | 0.05 KM |
| Royal Circus, West Norwood, SE27 | £ 850,000 | BUY | 6 / 10 | 0.06 KM |
| Waldeck Grove, West Norwood, London, SE27 | £ 875,000 | BUY | Unknown | 0.07 KM |
| Royal Circus, West Norwood | £ 475,000 | BUY | 6 / 10 | 0.09 KM |
Nearby Properties
| Address | Price | Distance |
|---|---|---|
| 17 Pyrmont Grove | £ 685,000 | 0.01 KM |
| 10 Pyrmont Grove | £ 755,000 | 0.01 KM |
| 12 Pyrmont Grove | £ 625,000 | 0.02 KM |
| 15 Pyrmont Grove | £ 300,000 | 0.02 KM |
| 19 Pyrmont Grove | £ 250,000 | 0.02 KM |