Wood Grove, Leeds, West Yorkshire, LS12
By Hardisty & co
£ 180,000
Reviews
3 out of 5 stars
Hardisty & co says ..
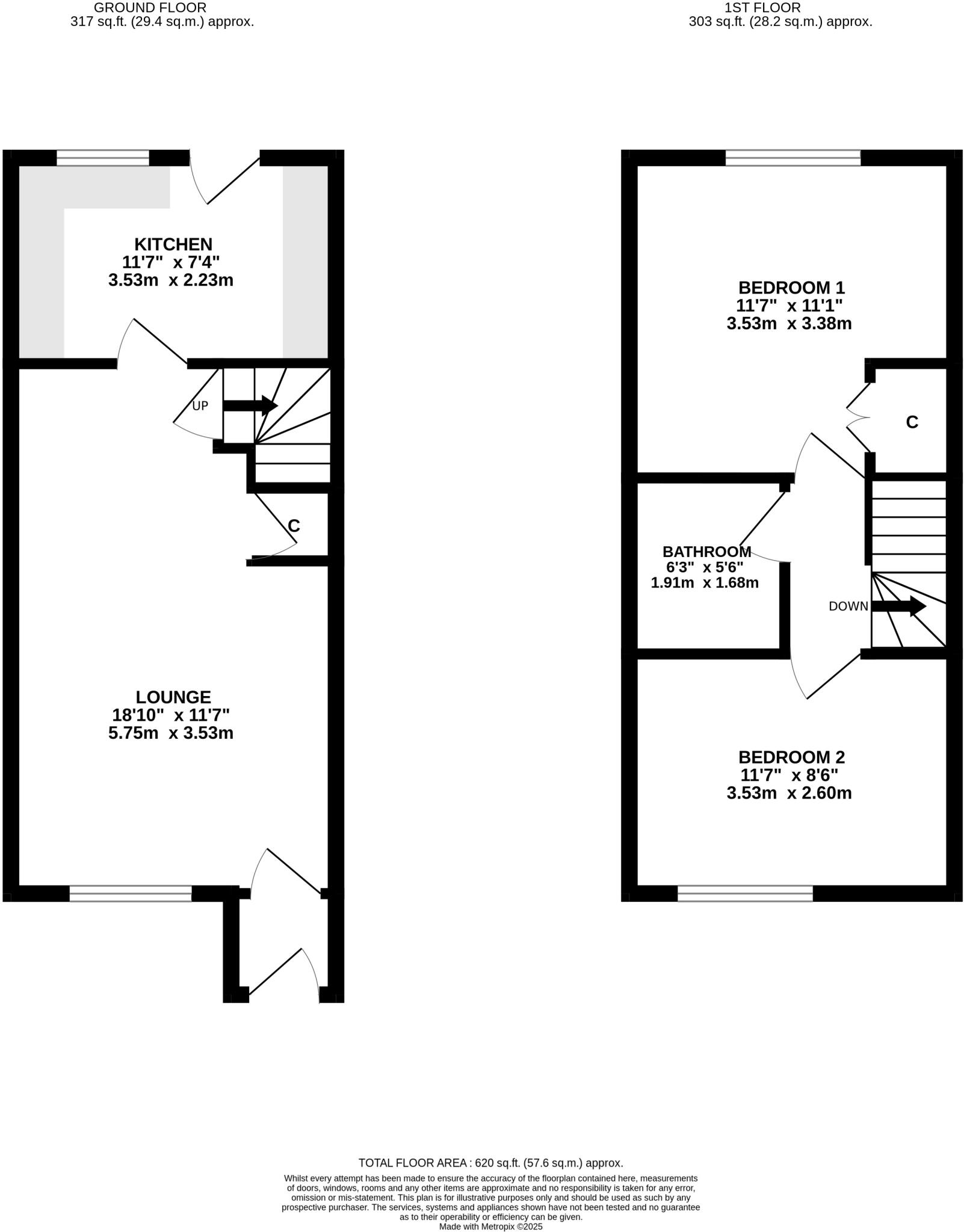
Lovely, two bedroom mid terraced property sits within a quiet cul-de-sac position with allocated off street parking to the front. Enjoying gardens to the front and rear with the rear being low maintenance with patio and gravel area (right of the way access through). The property underwent a full ...
Property Oracle says ..
This two-bedroom terraced house in Leeds is located in a convenient area with good access to schools and transportation. The property appears to be in good condition, having undergone some modernisation, and benefits from a small, manageable garden. While the average house price in the area is significantly higher, this property is priced competitively considering its size and features. The lack of plot size information makes it difficult to accurately assess the land score, and more details are needed for a complete evaluation.
Therefore, we give this property 6 / 10. *Disclaimer: This is our option and does constitute a recommendation or financial advice. Do your own research. *
- Price
- 7
- Condition
- 8
- Location
- 7
- Land
- 3
- Bedrooms
- 2
- Bathrooms
- 1
- Sqft (est)
- 620.00
The heatmap indicates the level of crime in the area. The color of the heatmap indicates the crime severity and recency.
Metrics Year-on-Year
- Average area value
- 214,369.00 £Decreased by 6.83 %
- Est sale value
- 325,500.00 £Increased by 117.84 %
- Average area rental value
- 954.00 £/moIncreased by 1.92 %
- Est letting value
- 1,240.00 £/mo
- Est rental Yield
- 5.34 %Increased by 9.43 %
- Crime Rate
- 10.00 %Unchanged by 0.00 %
Agent Activity
Hardisty & co created the listing.
Nearby Schools
| Name | Type | Ofsted | Distance |
|---|---|---|---|
| Greenhill Primary School | Community School | Good | 0.86 KM |
| Park Spring Primary School | Community School | Good | 1.01 KM |
| Ryecroft Academy | Academy Sponsor Led | Good | 1.17 KM |
| Farnley Children'S Centre | Children's Centre | 1.38 KM | |
| Lawns Park Primary School | Community School | Good | 1.38 KM |
Images
Nearby Streets
| Name | Average Price | Average Sqft | Distance |
|---|---|---|---|
| Ring Road Bramley | £ 500,000 | 0 | 0.00 KM |
| Corn Mill Yard | £ 0 | 0 | 0.00 KM |
| Gamble Hill Green | £ 185,500 | 0 | 0.00 KM |
| Ring Road Bramley | £ 0 | 0 | 0.00 KM |
| Gamble Hill Fold | £ 0 | 0 | 0.00 KM |
Nearby Transport
| Name | NLC | TLC | Distance |
|---|---|---|---|
| Bramley (West Yorkshire) | 8496 | BLE | 1.46 KM |
| Kirkstall Forge | 6544 | KLF | 3.30 KM |
| Headingley | 8498 | HDY | 4.65 KM |
| Cottingley | 8505 | COT | 5.49 KM |
| New Pudsey | 8506 | NPD | 5.80 KM |
Nearby Listings
| Address | Price | Type | Score | Distance |
|---|---|---|---|---|
| Wood Grove, Leeds, West Yorkshire, LS12 | £ 180,000 | BUY | 6 / 10 | 0.00 KM |
| Wood Grove, Leeds, West Yorkshire | £ 189,995 | BUY | Unknown | 0.01 KM |
| Wood Grove, Farnley | £ 187,500 | BUY | 6 / 10 | 0.05 KM |
| Wood Grove, Leeds | £ 330,000 | BUY | 7 / 10 | 0.06 KM |
| Wood Grove, Farnley | £ 189,000 | BUY | 6 / 10 | 0.06 KM |
Nearby Properties
| Address | Price | Distance |
|---|---|---|
| 9 Wood Grove | £ 85,000 | 0.06 KM |
| 22 Wood Grove | £ 177,500 | 0.06 KM |
| 40 Wood Grove | £ 144,000 | 0.06 KM |
| 20 Wood Grove | £ 169,000 | 0.06 KM |
| 64 Wood Grove | £ 190,000 | 0.06 KM |