W.
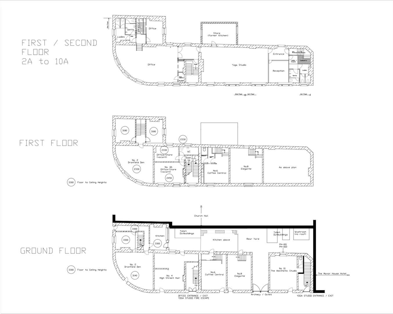
Old Town Hall, High Street, Dronfield, S18
By W. T. Parker
£ 700,000
Reviews
2 out of 5 stars
W. T. Parker says ..
Nestled in the heart of Dronfield, this remarkable period commercial property on High Street offers a unique investment opportunity with existing income and potential for further income from the rest of the building. Built in 1877, the building showcases stunning stone construction that reflects ...
Property Oracle says ..
Therefore, we give this property 5 / 10. *Disclaimer: This is our option and does constitute a recommendation or financial advice. Do your own research. *
- Price
- 7
- Condition
- 6
- Location
- 8
- Land
- 1
- Bedrooms
- 1
- Bathrooms
- 1
- Sqft (est)
- 2,610.00
The heatmap indicates the level of crime in the area. The color of the heatmap indicates the crime severity and recency.
Metrics Year-on-Year
- Average area value
- 448,325.00 £Decreased by 13.51 %
- Est sale value
- 1,346,760.00 £Increased by 0.98 %
- Average area rental value
- 1,480.00 £/moDecreased by 11.32 %
- Est letting value
- 2,610.00 £/moUnchanged by 0.00 %
- Est rental Yield
- 3.96 %Increased by 2.59 %
- Crime Rate
- 2.00 %Unchanged by 0.00 %
from 518,358.00 £
from 1,333,710.00 £
from 1,669.00 £/mo
from 2,610.00 £/mo
from 3.86 %
from 2.00 %
Agent Activity
W. T. Parker created the listing.
Nearby Schools
| Name | Type | Ofsted | Distance |
|---|---|---|---|
| Dronfield Infant School | Community School | Outstanding | 0.40 KM |
| Dronfield Junior School | Community School | Good | 0.40 KM |
| Dronfield Henry Fanshawe School | Voluntary Controlled School | Outstanding | 0.84 KM |
| Lenthall Infant And Nursery School | Community School | Good | 1.02 KM |
| Holmesdale Infant School | Community School | Outstanding | 1.41 KM |
Images
Nearby Streets
| Name | Average Price | Average Sqft | Distance |
|---|---|---|---|
| Soaper Lane | £ 0 | 0 | 0.00 KM |
| School Lane | £ 0 | 0 | 0.00 KM |
| Beechwood Road | £ 300,000 | 0 | 0.00 KM |
| Garth Way Close | £ 427,500 | 0 | 0.00 KM |
| Crofton Close | £ 0 | 0 | 0.00 KM |
Nearby Transport
| Name | NLC | TLC | Distance |
|---|---|---|---|
| Dronfield | 6616 | DRO | 0.58 KM |
| Dore And Totley | 6690 | DOR | 5.38 KM |
| Sheffield | 6691 | SHF | 8.57 KM |
| Chesterfield | 6615 | CHD | 9.27 KM |
Nearby Listings
| Address | Price | Type | Score | Distance |
|---|---|---|---|---|
| Old Town Hall, High Street, Dronfield, S18 | £ 700,000 | BUY | 5 / 10 | 0.00 KM |
| Clifton Court, Dronfield | £ 895,000 | BUY | 7 / 10 | 0.05 KM |
| High Street, Dronfield | £ 350,000 | BUY | 7 / 10 | 0.16 KM |
| The Priory, Sheffield Road, Dronfield, Derbyshire, S18 | £ 180,000 | BUY | Unknown | 0.30 KM |
| 2-4 Lea Road, Dronfield, S18 1SB | £ 475,000 | BUY | Unknown | 0.34 KM |
Nearby Properties
| Address | Price | Distance |
|---|---|---|
| 11 High Street | £ 305,000 | 0.06 KM |
| 19 High Street | £ 895,000 | 0.11 KM |
| 29 High Street | £ 375,000 | 0.11 KM |
| 18 Church Street | £ 435,000 | 0.13 KM |
| The Old Rectory | £ 795,000 | 0.20 KM |