eXp UK says ..
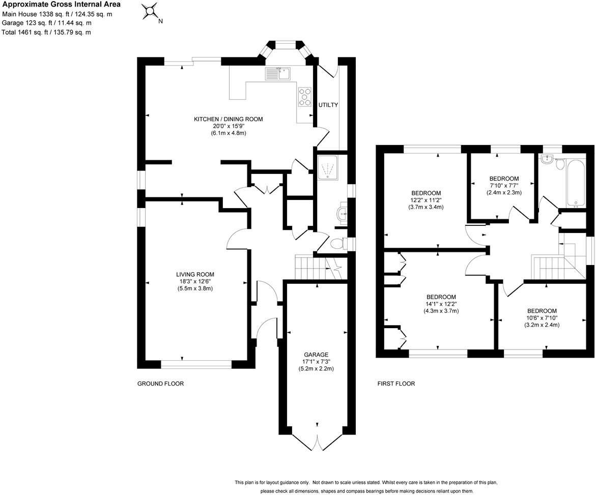
Tucked away on a quiet no through road, a 4 bedroom family home with kitchen/diner extension to the rear and south/west aspect garden. Garage and off road parking and the perfect opportunity to put your own stamp on this home. REF MG1259
Property Oracle says ..
Therefore, we give this property 7 / 10. *Disclaimer: This is our option and does constitute a recommendation or financial advice. Do your own research. *
- Price
- 8
- Condition
- 7
- Location
- 8
- Land
- 7
- Bedrooms
- 4
- Bathrooms
- 1
- Sqft (est)
- 1,461.00
The heatmap indicates the level of crime in the area. The color of the heatmap indicates the crime severity and recency.
Metrics Year-on-Year
- Average area value
- 890,625.00 £Increased by 35.96 %
- Est sale value
- 832,770.00 £Increased by 58.77 %
- Average area rental value
- 1,412.00 £/moDecreased by 13.11 %
- Est letting value
- 0.00 £/mo
- Est rental Yield
- 1.90 %Decreased by 36.24 %
- Crime Rate
- 3.00 %Unchanged by 0.00 %
from 655,041.00 £
from 524,499.00 £
from 1,625.00 £/mo
from 0.00 £/mo
from 2.98 %
from 3.00 %
Agent Activity
eXp UK created the listing.
Nearby Schools
| Name | Type | Ofsted | Distance |
|---|---|---|---|
| Rural Haywards Heath Children & Family Centre | Children's Centre | 0.69 KM | |
| Haywards Heath Children & Family Centre | Children's Centre | 0.69 KM | |
| Northlands Wood Primary Academy | Academy Converter | Good | 0.74 KM |
| Blackthorns Community Primary Academy | Academy Converter | Outstanding | 0.97 KM |
| Lindfield Primary Academy | Academy Converter | Outstanding | 1.06 KM |
Images
Nearby Streets
| Name | Average Price | Average Sqft | Distance |
|---|---|---|---|
| The Copse | £ 0 | 0 | 0.00 KM |
| Portland Close | £ 0 | 0 | 0.00 KM |
| Burma Close | £ 0 | 0 | 0.00 KM |
| Honeysuckle Drive | £ 540,000 | 0 | 0.00 KM |
| West View | £ 0 | 0 | 0.00 KM |
Nearby Transport
| Name | NLC | TLC | Distance |
|---|---|---|---|
| Haywards Heath | 5490 | HHE | 2.52 KM |
| Wivelsfield | 5341 | WVF | 5.83 KM |
| Burgess Hill | 5483 | BUG | 7.18 KM |
| Plumpton | 5332 | PMP | 8.40 KM |
| Balcombe | 5492 | BAB | 8.54 KM |
Nearby Listings
| Address | Price | Type | Score | Distance |
|---|---|---|---|---|
| Kiln Lane, Lindfield, RH16 2SZ | £ 675,000 | BUY | 7 / 10 | 0.00 KM |
| The Hollow, Lindfield, RH16 | £ 500,000 | BUY | 7 / 10 | 0.11 KM |
| The Hollow, Lindfield | £ 475,000 | BUY | Unknown | 0.17 KM |
| The Platt, Lindfield, Haywards Heath, West Sussex, RH16 | £ 1,395,000 | BUY | 7 / 10 | 0.17 KM |
| The Copse, Wrexham, LL12 | £ 700,000 | BUY | 8 / 10 | 0.21 KM |
Nearby Properties
| Address | Price | Distance |
|---|---|---|
| 7 Kiln Lane | £ 475,000 | 0.01 KM |
| 3 Kiln Lane | £ 162,000 | 0.01 KM |
| 10 Kiln Lane | £ 590,000 | 0.01 KM |
| 17 Kiln Lane | £ 375,000 | 0.01 KM |
| 6 Kiln Lane | £ 278,000 | 0.01 KM |