FI
Killick Mews, Ewell Road, Cheam, Sutton, SM3
By Fine & Country
£ 525,000
Reviews
3 out of 5 stars
Fine & Country says ..
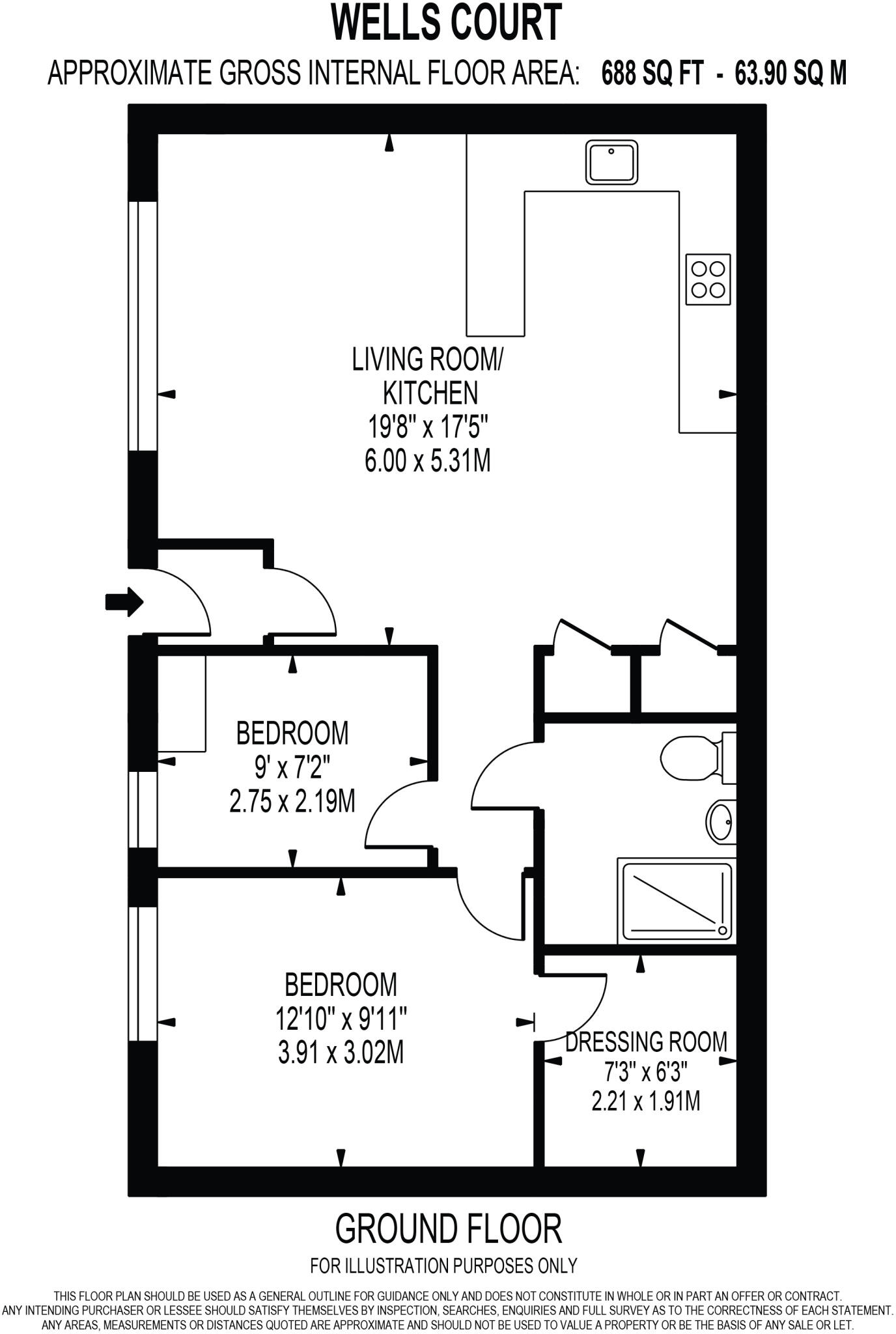
Located within a desirable and tranquil gated development, this elegant two-bedroom ground floor apartment effortlessly combines classic charm with modern sophistication. Immaculately presented throughout, the property offers a thoughtfully designed layout ideal for refined contemporary living.
Property Oracle says ..
Therefore, we give this property 7 / 10. *Disclaimer: This is our option and does constitute a recommendation or financial advice. Do your own research. *
- Price
- 7
- Condition
- 9
- Location
- 8
- Land
- 6
- Bedrooms
- 2
- Bathrooms
- 1
- Sqft (est)
- 580.28
The heatmap indicates the level of crime in the area. The color of the heatmap indicates the crime severity and recency.
Metrics Year-on-Year
- Average area value
- 783,500.00 £Decreased by 0.05 %
- Est sale value
- 360,934.16 £Increased by 5.78 %
- Average area rental value
- 2,348.00 £/moIncreased by 2.67 %
- Est letting value
- 580.28 £/moUnchanged by 0.00 %
- Est rental Yield
- 3.60 %Increased by 2.86 %
- Crime Rate
- 7.00 %Unchanged by 0.00 %
from 783,892.00 £
from 341,204.64 £
from 2,287.00 £/mo
from 580.28 £/mo
from 3.50 %
from 7.00 %
Agent Activity
Fine & Country created the listing.
Nearby Schools
| Name | Type | Ofsted | Distance |
|---|---|---|---|
| St Dunstan'S Cheam Cofe Primary School | Voluntary Aided School | Good | 0.11 KM |
| Nonsuch High School For Girls | Academy Converter | Good | 0.58 KM |
| Cuddington Croft Primary School | Academy Converter | Good | 0.73 KM |
| Cheam Fields Primary Academy | Academy Converter | Good | 0.81 KM |
| Cheam High School | Academy Converter | Outstanding | 0.98 KM |
Images
Nearby Streets
| Name | Average Price | Average Sqft | Distance |
|---|---|---|---|
| Cheam Park Way | £ 0 | 0 | 0.00 KM |
| Stafford Close | £ 900,000 | 0 | 0.00 KM |
| Church Farm Road | £ 0 | 0 | 0.00 KM |
| Nonsuch Walk | £ 0 | 0 | 0.00 KM |
| West Drive | £ 0 | 0 | 0.00 KM |
Nearby Transport
| Name | NLC | TLC | Distance |
|---|---|---|---|
| Cheam | 5352 | CHE | 0.59 KM |
| West Sutton | 5293 | WSU | 1.79 KM |
| Belmont | 5350 | BLM | 2.71 KM |
| Ewell East | 5415 | EWE | 2.83 KM |
| Sutton | 5385 | SUO | 3.09 KM |
Nearby Listings
| Address | Price | Type | Score | Distance |
|---|---|---|---|---|
| Ewell Road, Cheam, Sutton | £ 550,000 | BUY | 6 / 10 | 0.00 KM |
| Killick Mews, Ewell Road, Cheam, Sutton, SM3 | £ 525,000 | BUY | 7 / 10 | 0.00 KM |
| Ewell Road, Cheam, Sutton, SM3 | £ 725,000 | BUY | 7 / 10 | 0.04 KM |
| Whyte Mews, Anne Boleyn's Walk, Cheam, Sutton, SM3 | £ 500,000 | BUY | 7 / 10 | 0.12 KM |
| Ewell Road, Cheam Village | £ 340,000 | BUY | 7 / 10 | 0.19 KM |
Nearby Properties
| Address | Price | Distance |
|---|---|---|
| Treganna | £ 1,425,000 | 0.16 KM |
| 20 Ewell Road | £ 275,000 | 0.16 KM |
| 6a Ewell Road | £ 670,000 | 0.16 KM |
| 27 Park Lane | £ 800,000 | 0.20 KM |
| 13 Park Lane | £ 235,000 | 0.20 KM |