Back Lane, Easingwold
By Stephensons
£ 95,000
Stephensons says ..
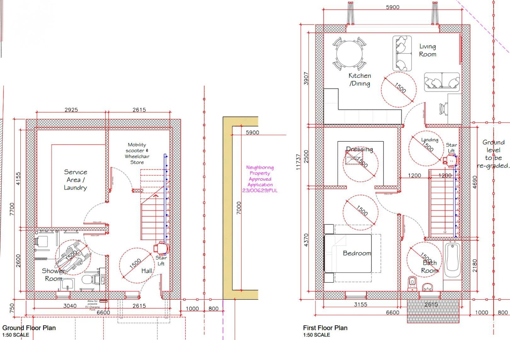
An exciting residential development opportunity in the heart of Easingwold in the form of a single building plot with planning approval to build a 1 bedroom detached new dwelling that will provide approximately 1,133 sq ft (105.25 sq m) of living space over 2 floors complemented by a rear garden ...
- Bedrooms
- 0
- Bathrooms
- 0
The heatmap indicates the level of crime in the area. The color of the heatmap indicates the crime severity and recency.
Metrics Year-on-Year
- Average area value
- 458,000.00 £Increased by 17.24 %
- Average area rental value
- 1,063.00 £/moDecreased by 14.14 %
- Est rental Yield
- 2.79 %Decreased by 26.58 %
- Crime Rate
- 10.00 %Unchanged by 0.00 %
from 390,654.00 £
from 1,238.00 £/mo
from 3.80 %
from 10.00 %
Agent Activity
Stephensons created the listing.
Nearby Schools
| Name | Type | Ofsted | Distance |
|---|---|---|---|
| Outwood Academy Easingwold | Academy Sponsor Led | 0.84 KM | |
| Easingwold Community Primary School | Community School | Good | 1.32 KM |
| Crayke Church Of England Voluntary Controlled Primary School | Voluntary Controlled School | Outstanding | 4.88 KM |
| Husthwaite Church Of England Voluntary Controlled Primary School | Voluntary Controlled School | Requires improvement | 5.66 KM |
| Huby Cofe Primary School | Voluntary Controlled School | Good | 7.28 KM |
Images
Nearby Streets
| Name | Average Price | Average Sqft | Distance |
|---|---|---|---|
| Paradise Field Estate | £ 225,000 | 0 | 0.00 KM |
| Youlton | £ 0 | 0 | 0.00 KM |
| Tanpit Lane | £ 250,000 | 0 | 0.00 KM |
| Cams Fold | £ 0 | 0 | 0.00 KM |
| Cedar Place | £ 0 | 0 | 0.00 KM |
Nearby Listings
| Address | Price | Type | Score | Distance |
|---|---|---|---|---|
| Back Lane, Easingwold | £ 95,000 | BUY | Unknown | 0.00 KM |
| Back Lane, Easingwold, York | £ 325,000 | BUY | 6 / 10 | 0.00 KM |
| Uppleby, Easingwold | £ 550,000 | BUY | 5 / 10 | 0.07 KM |
| Uppleby, Easingwold | £ 485,000 | BUY | 6 / 10 | 0.09 KM |
| Uppleby, Easingwold, York | £ 395,000 | BUY | Unknown | 0.09 KM |
Nearby Properties
| Address | Price | Distance |
|---|---|---|
| 23 Uppleby | £ 197,000 | 0.05 KM |
| 21 Uppleby | £ 235,000 | 0.05 KM |
| 5 Uppleby | £ 69,500 | 0.05 KM |
| 15 Uppleby | £ 320,000 | 0.05 KM |
| 17 Uppleby | £ 175,000 | 0.06 KM |