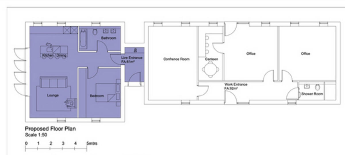
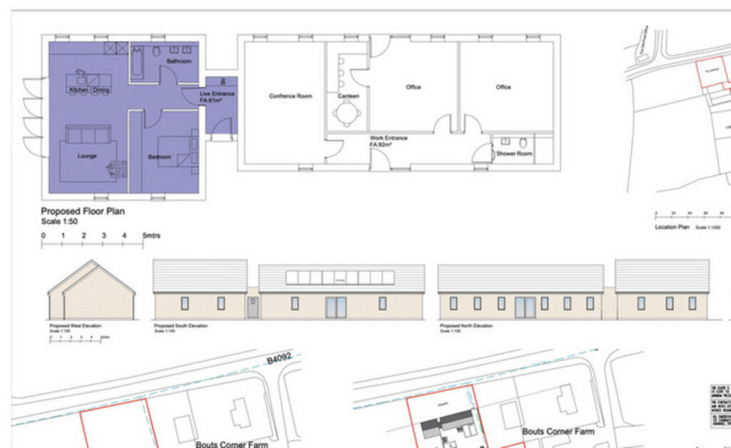
Live/Work Building Plot - Bouts Lane, Redditch, B96 6JX
By FreeAgent247.com HQ
£ 300,000
Reviews
3 out of 5 stars
FreeAgent247.com HQ says ..
Live/work plot in the sought-after area of Bouts Lane, Redditch. With planning permission already granted. Rare opportunity for creative development
Property Oracle says ..
This live/work building plot on Bouts Lane in Redditch presents a unique opportunity for prospective buyers. Located in the Inkberrow area of Worcestershire, the property offers a blend of rural charm and accessibility. The existing structure provides a foundation for development, and the substantial plot of land allows for considerable customization. Nearby, the Redditch train station provides convenient access to regional transportation. While the immediate vicinity is relatively quiet, the property is within reach of local schools and amenities, making it suitable for a variety of lifestyles. The asking price of £300,000 reflects the potential for creating a tailored living and working space in a desirable location.
Therefore, we give this property 7 / 10. *Disclaimer: This is our option and does constitute a recommendation or financial advice. Do your own research. *
- Price
- 7
- Condition
- 7
- Location
- 6
- Land
- 8
- Bedrooms
- 0
- Bathrooms
- 0
- Sqft (est)
- 667.36
The heatmap indicates the level of crime in the area. The color of the heatmap indicates the crime severity and recency.
Metrics Year-on-Year
- Average area value
- 490,000.00 £Decreased by 5.86 %
- Est sale value
- 301,646.72 £Increased by 75.88 %
- Average area rental value
- 1,975.00 £/moIncreased by 83.72 %
- Est letting value
- 667.36 £/mo
- Est rental Yield
- 4.84 %Increased by 95.16 %
- Crime Rate
- 55.00 %Unchanged by 0.00 %
Agent Activity
FreeAgent247.com HQ created the listing.
Nearby Schools
| Name | Type | Ofsted | Distance |
|---|---|---|---|
| Ridgeway Secondary School | Academy Converter | Requires improvement | 2.90 KM |
| Inkberrow Primary School | Academy Converter | 3.02 KM | |
| Feckenham Cofe Primary School | Academy Converter | 3.51 KM | |
| Astwood Bank Primary School | Academy Converter | 3.82 KM | |
| St Augustine'S Catholic High School | Academy Converter | Outstanding | 4.71 KM |
Images
Nearby Transport
| Name | NLC | TLC | Distance |
|---|---|---|---|
| Redditch | 1208 | RDC | 8.03 KM |
Nearby Listings
| Address | Price | Type | Score | Distance |
|---|---|---|---|---|
| Live/Work Building Plot - Bouts Lane, Redditch, B96 6JX | £ 300,000 | BUY | 7 / 10 | 0.00 KM |
| The Geldings, Bouts Lane, Holberrow Green, Worcestershire, B96 6JX | £ 1,300,000 | BUY | 7 / 10 | 0.05 KM |
| Alcester Road, Inkberrow, Worcester | £ 635,000 | BUY | 6 / 10 | 1.90 KM |
| Edgioake Lane, Astwood Bank, B96 | £ 900,000 | BUY | 7 / 10 | 1.95 KM |
| Edgioake Barn, Edgioake Lane, Astwood Bank, B96 6LL | £ 450,000 | BUY | 6 / 10 | 2.00 KM |
Nearby Properties
| Address | Price | Distance |
|---|---|---|
| The Oaklands | £ 890,000 | 0.10 KM |
| Manor Farm | £ 1,130,000 | 0.77 KM |
| Orchard House | £ 795,000 | 0.77 KM |
| Stable Cottage | £ 200,000 | 0.77 KM |
| April Cottage | £ 540,000 | 0.77 KM |