Eldon Street, Reading, RG1
By AH Lansley Residential
£ 325,000
Reviews
3 out of 5 stars
AH Lansley Residential says ..
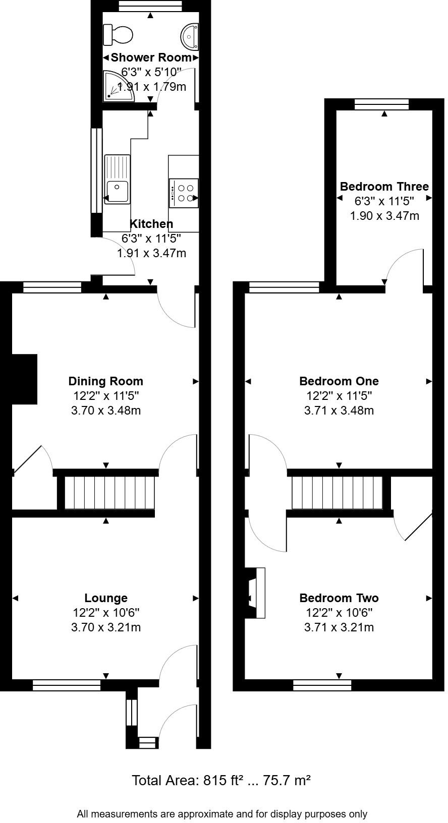
Lansley - Offered to the market with no onward chain complications is this charming Victorian terraced home located within the sought after Eldon Square conservation area. The internal accommodation comprises front aspect lounge, rear aspect dining room, kitchen, shower room and three bedrooms (2...
Property Oracle says ..
This is a traditional terraced house in the Redlands area of Reading. The property has three bedrooms and one bathroom. It is in reasonable condition, but would benefit from some modernisation. The property has a garden. The property is located close to schools and transport links. The list price seems reasonable given the location, condition and size of the property.
Therefore, we give this property 6 / 10. *Disclaimer: This is our option and does constitute a recommendation or financial advice. Do your own research. *
- Price
- 7
- Condition
- 6
- Location
- 7
- Land
- 6
- Bedrooms
- 3
- Bathrooms
- 1
- Sqft (est)
- 221.20
The heatmap indicates the level of crime in the area. The color of the heatmap indicates the crime severity and recency.
Metrics Year-on-Year
- Average area value
- 429,375.00 £Increased by 2.76 %
- Est sale value
- 145,992.00 £Increased by 67.94 %
- Average area rental value
- 1,283.00 £/moIncreased by 0.16 %
- Est letting value
- 221.20 £/moUnchanged by 0.00 %
- Est rental Yield
- 3.59 %Decreased by 2.45 %
- Crime Rate
- 3.00 %Unchanged by 0.00 %
Agent Activity
AH Lansley Residential created the listing.
Nearby Schools
| Name | Type | Ofsted | Distance |
|---|---|---|---|
| Red Balloon Learner Centre Reading | Other Independent School | 0.06 KM | |
| St John'S Church Of England Primary School | Academy Converter | Requires improvement | 0.49 KM |
| Reading School | Academy Converter | 0.62 KM | |
| East Reading Children'S Centre | Children's Centre | 0.66 KM | |
| The Deenway Montessori School | Other Independent School | Good | 0.71 KM |
Images
Nearby Streets
| Name | Average Price | Average Sqft | Distance |
|---|---|---|---|
| Queens Road | £ 287,000 | 0 | 0.00 KM |
| Joseph Huntley Walk | £ 375,000 | 0 | 0.00 KM |
| Blake's Wharf | £ 280,000 | 0 | 0.00 KM |
| Carraway Street | £ 300,000 | 0 | 0.00 KM |
| London Road | £ 0 | 0 | 0.00 KM |
Nearby Transport
| Name | NLC | TLC | Distance |
|---|---|---|---|
| Reading | 3149 | RDG | 1.73 KM |
| Reading West | 3160 | RDW | 3.64 KM |
| Earley | 5694 | EAR | 4.55 KM |
| Winnersh Triangle | 5698 | WTI | 7.52 KM |
| Tilehurst | 3154 | TLH | 8.27 KM |
Nearby Listings
| Address | Price | Type | Score | Distance |
|---|---|---|---|---|
| Eldon Street, Reading, RG1 | £ 325,000 | BUY | 6 / 10 | 0.00 KM |
| Reading, Berkshire, RG1 | £ 350,000 | BUY | Unknown | 0.04 KM |
| Eldon Terrace, Reading | £ 450,000 | BUY | 5 / 10 | 0.04 KM |
| Kings Road, Reading, RG1 | £ 220,000 | BUY | 6 / 10 | 0.06 KM |
| ELDON SQUARE *Prime Reading Conservation area | £ 1,350,000 | BUY | 8 / 10 | 0.08 KM |
Nearby Properties
| Address | Price | Distance |
|---|---|---|
| 22 Eldon Street | £ 302,000 | 0.02 KM |
| 14 Eldon Street | £ 183,000 | 0.02 KM |
| 1 Eldon Street | £ 162,450 | 0.02 KM |
| 2 Eldon Street | £ 365,500 | 0.02 KM |
| 18 Eldon Street | £ 171,000 | 0.02 KM |