Simmons & Sons says ..
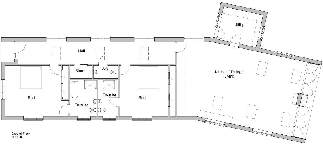
Building plots like this are a rare find. A contemporary bungalow located in a peaceful rural setting , close to the popular village of Little London. Laid out to provide very generous open plan living with two large bedrooms, both en-suite, measuring a very generous 2120sq ft
Property Oracle says ..
Therefore, we give this property 8 / 10. *Disclaimer: This is our option and does constitute a recommendation or financial advice. Do your own research. *
- Price
- 10
- Condition
- 9
- Location
- 7
- Land
- 9
- Bedrooms
- 0
- Bathrooms
- 0
- Sqft (est)
- 1,227.09
The heatmap indicates the level of crime in the area. The color of the heatmap indicates the crime severity and recency.
Metrics Year-on-Year
- Average area value
- 525,469.00 £Increased by 8.88 %
- Est sale value
- 809,879.40 £Increased by 106.25 %
- Average area rental value
- 1,500.00 £/moDecreased by 5.78 %
- Est letting value
- 1,227.09 £/moUnchanged by 0.00 %
- Est rental Yield
- 3.43 %Decreased by 13.38 %
- Crime Rate
- 20.00 %Unchanged by 0.00 %
from 482,623.00 £
from 392,668.80 £
from 1,592.00 £/mo
from 1,227.09 £/mo
from 3.96 %
from 20.00 %
Agent Activity
Simmons & Sons created the listing.
Nearby Schools
| Name | Type | Ofsted | Distance |
|---|---|---|---|
| The Priory Primary School | Academy Converter | Good | 2.42 KM |
| Tadley Community Primary School | Community School | Good | 2.96 KM |
| Silchester Church Of England Primary School | Voluntary Aided School | Good | 3.32 KM |
| Tadley Court School | Other Independent Special School | Good | 3.79 KM |
| Sherborne St John Church Of England Primary School | Voluntary Controlled School | Good | 3.82 KM |
Images
Nearby Transport
| Name | NLC | TLC | Distance |
|---|---|---|---|
| Bramley (Hampshire) | 5500 | BMY | 5.59 KM |
| Basingstoke | 5520 | BSK | 7.28 KM |
| Aldermaston | 3145 | AMT | 8.60 KM |
| Mortimer | 5501 | MOR | 9.67 KM |
Nearby Listings
| Address | Price | Type | Score | Distance |
|---|---|---|---|---|
| New Road | £ 400,000 | BUY | 8 / 10 | 0.00 KM |
| New Road, Tadley, RG26 | £ 1,300,000 | BUY | 6 / 10 | 0.32 KM |
| New Road, Tadley, RG26 | £ 1,200,000 | BUY | 7 / 10 | 0.32 KM |
| Silchester Road, Little London, Tadley, Hampshire | £ 1,150,000 | BUY | 7 / 10 | 0.44 KM |
| Yew Tree Cottage, Little London, RG26 | £ 850,000 | BUY | 7 / 10 | 0.45 KM |
Nearby Properties
| Address | Price | Distance |
|---|---|---|
| Hog House | £ 495,000 | 0.32 KM |
| The Stables | £ 700,000 | 0.32 KM |
| Wisteria House | £ 480,000 | 0.49 KM |
| West View | £ 415,000 | 0.53 KM |
| Clovelly | £ 750,000 | 0.53 KM |