Beaconsfield Road, Sittingbourne, Kent, ME10
QU

Beaconsfield Road, Sittingbourne, Kent, ME10

By Quealy & Co

£ 295,000

Reviews

3 out of 5 stars

Quealy & Co says ..

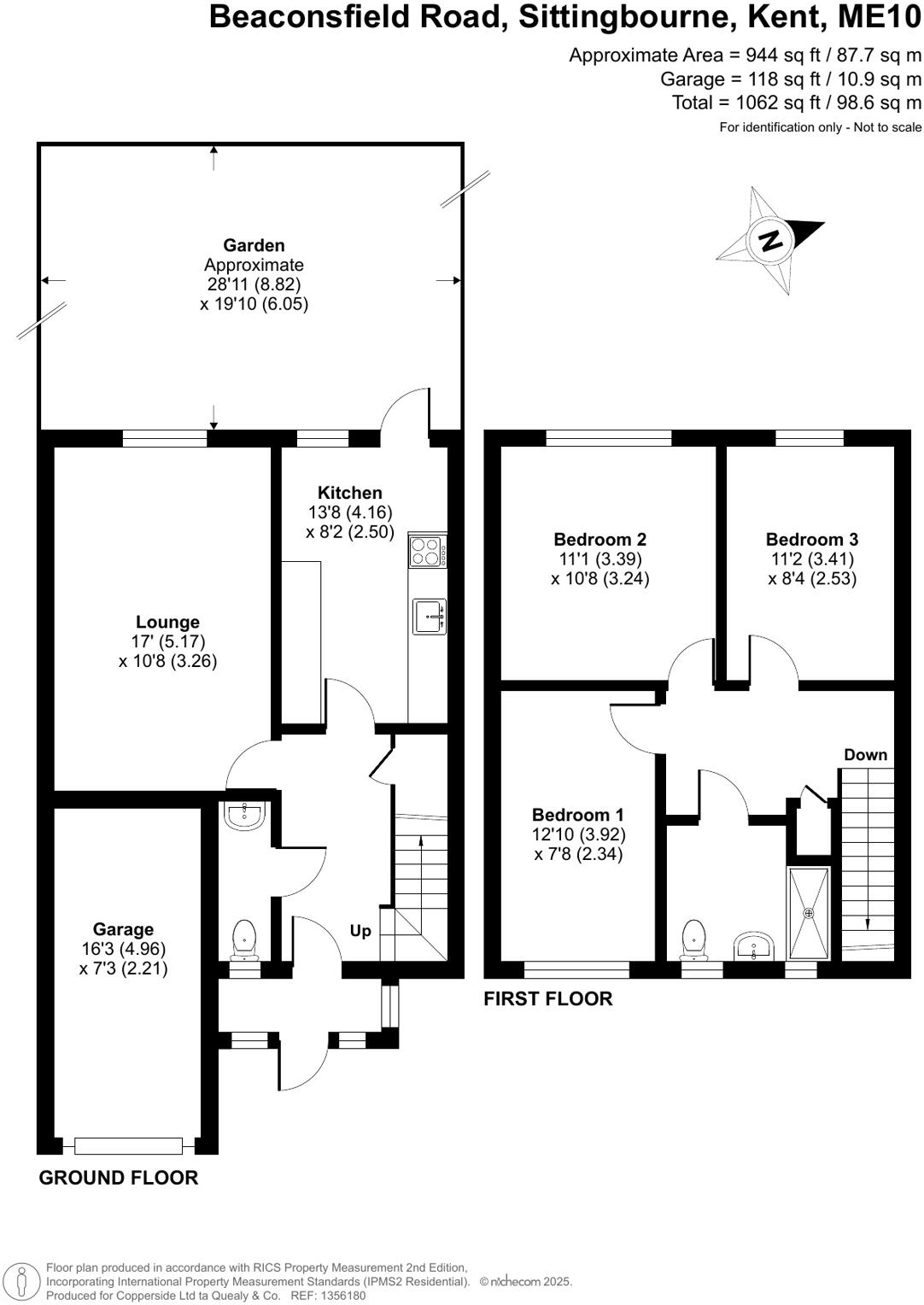
NO CHAIN !! / Three Bedroom / Garage / Driveway / Close To Train Station / Downstairs WC / Great Potential / Great Family Home

Property Oracle says ..

This is a three-bedroom terraced house located on Beaconsfield Road in Murston, Sittingbourne. The property is listed with Quealy & Co. and is priced at £295,000. It features one bathroom and a garden. While the property is in reasonable condition, it would benefit from some modernisation, particularly in the kitchen and bathroom. The location is convenient, with nearby schools and transportation links. The price is competitive for the area, making it an attractive option for first-time buyers or investors willing to undertake some renovation work.

Therefore, we give this property 6 / 10. *Disclaimer: This is our option and does constitute a recommendation or financial advice. Do your own research. *

Price
7
Condition
5
Location
6
Land
6
Bedrooms
3
Bathrooms
1

The heatmap indicates the level of crime in the area. The color of the heatmap indicates the crime severity and recency.

Metrics Year-on-Year

Average area value
277,857.00 £
Increased by 6.40 %
from 261,138.00 £
Average area rental value
1,100.00 £/mo
Decreased by 13.66 %
from 1,274.00 £/mo
Est rental Yield
4.75 %
Decreased by 18.80 %
from 5.85 %
Crime Rate
19.00 %
Unchanged by 0.00 %
from 19.00 %

Agent Activity

  • Quealy & Co created the listing.

Nearby Schools

NameTypeOfstedDistance
Lansdowne Primary SchoolAcademy Sponsor LedGood0.32 KM
Meadowfield SchoolFoundation Special SchoolOutstanding0.53 KM
The Sittingbourne SchoolAcademy Sponsor LedGood0.60 KM
Sunny Bank Primary SchoolAcademy Sponsor Led0.69 KM
Murston Children'S CentreChildren's Centre0.69 KM

Images

Google Maps Image 56003ceb-b836-488... 66bcccf3-b7a1-433... 55114b85-bfc4-4c6... 0aa009a5-939a-41e... b7d22284-59cf-445... 773e3eb7-1b66-4cb... ac058a4b-193c-439... d41884e6-884d-447... 3394969f-9130-4f2... 2f5b7f63-43eb-4ae... ae5352ed-0d5f-4bb... 451a684f-1cd8-45f... b507ad8b-47f3-43d... 52a4cb38-2cd2-41d... 14f8404d-b6e9-4f5... 9d711ff6-ff5c-43f... c13fd585-f3dc-479... a558c969-9035-479... 7debfdcf-4659-4ac... 9947c8e2-8ccf-499...

Nearby Streets

NameAverage PriceAverage SqftDistance
Lomas Road £ 000.00 KM
Middle Way £ 000.00 KM
East Hall Close £ 000.00 KM
Gordon Close £ 000.00 KM
Cambridge Road £ 220,00000.00 KM

Nearby Transport

NameNLCTLCDistance
Sittingbourne5187SIT2.58 KM
Kemsley5205KML3.67 KM
Teynham5193TEY5.52 KM
Swale5249SWL5.81 KM
Queenborough5176QBR8.68 KM

Nearby Listings

AddressPriceTypeScoreDistance
Beaconsfield Road, Sittingbourne, Kent, ME10 £ 295,000BUY6 / 100.00 KM
Keswick Avenue, Sittingbourne, ME10 £ 270,000BUY6 / 100.09 KM
Vincent Road, Sittingbourne, Kent, ME10 £ 395,000BUY6 / 100.10 KM
Woodberry Drive, Sittingbourne, Kent, ME10 3AX £ 400,000BUY7 / 100.10 KM
Woodberry Drive, Sittingbourne, Kent, ME10 3AX £ 375,000BUY7 / 100.10 KM

Nearby Properties

AddressPriceDistance
54 Beaconsfield Road £ 104,0000.08 KM
34 Beaconsfield Road £ 210,0000.08 KM
49 Beaconsfield Road £ 125,0000.08 KM
66 Beaconsfield Road £ 198,0000.08 KM
48 Beaconsfield Road £ 265,0000.08 KM