Lets Move says ..
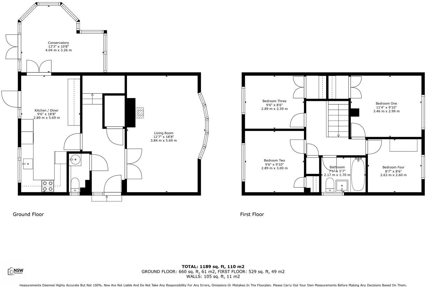
Welcome to Ellesmere Court, an immaculately presented, spacious, detached home that offers a perfect blend of comfort and space for modern family living. This delightful property boasts two inviting reception rooms, providing ample space for relaxation and entertaining guests. The well-proportion...
Property Oracle says ..
Therefore, we give this property 7 / 10. *Disclaimer: This is our option and does constitute a recommendation or financial advice. Do your own research. *
- Price
- 7
- Condition
- 8
- Location
- 8
- Land
- 7
- Bedrooms
- 4
- Bathrooms
- 1
The heatmap indicates the level of crime in the area. The color of the heatmap indicates the crime severity and recency.
Metrics Year-on-Year
- Average area value
- 382,875.00 £Decreased by 13.12 %
- Average area rental value
- 1,824.00 £/moIncreased by 43.40 %
- Est rental Yield
- 5.72 %Increased by 65.32 %
- Crime Rate
- 8.00 %Unchanged by 0.00 %
from 440,686.00 £
from 1,272.00 £/mo
from 3.46 %
from 8.00 %
Agent Activity
Lets Move created the listing.
Nearby Schools
| Name | Type | Ofsted | Distance |
|---|---|---|---|
| Newport Girls' High School Academy | Academy Converter | 0.21 KM | |
| Moorfield Primary School | Foundation School | Outstanding | 0.31 KM |
| Newport Church Of England Voluntary Controlled Junior School | Voluntary Controlled School | Good | 0.47 KM |
| Haberdashers' Adams | Academy Converter | Outstanding | 0.52 KM |
| Newport Infant School | Community School | Outstanding | 0.72 KM |
Images
Nearby Streets
| Name | Average Price | Average Sqft | Distance |
|---|---|---|---|
| Brookside Avenue | £ 0 | 0 | 0.00 KM |
| Trinity Mews | £ 0 | 0 | 0.00 KM |
| Elm Close | £ 0 | 0 | 0.00 KM |
| The Maltings | £ 0 | 0 | 0.00 KM |
| Primrose Drive | £ 225,000 | 0 | 0.00 KM |
Nearby Listings
| Address | Price | Type | Score | Distance |
|---|---|---|---|---|
| 2 Ellesmere Court | £ 299,950 | BUY | 7 / 10 | 0.00 KM |
| 63 Boughey Road, Newport | £ 284,950 | BUY | 7 / 10 | 0.05 KM |
| Wenlock Drive, Newport | £ 265,000 | BUY | 7 / 10 | 0.11 KM |
| Wenlock Drive , Newport | £ 285,000 | BUY | 6 / 10 | 0.12 KM |
| 9 Hawkstone Avenue, Newport | £ 225,000 | BUY | 5 / 10 | 0.12 KM |
Nearby Properties
| Address | Price | Distance |
|---|---|---|
| 11 Ellesmere Court | £ 179,000 | 0.03 KM |
| 12 Ellesmere Court | £ 219,500 | 0.03 KM |
| 15 Ellesmere Court | £ 295,000 | 0.04 KM |
| 2 Ellesmere Court | £ 214,000 | 0.04 KM |
| 36 Boughey Road | £ 164,000 | 0.05 KM |