BidX1 says ..
To be sold at an online auction. For further information, viewing times and legal documentation, please visit bidx1.com.
Property Oracle says ..
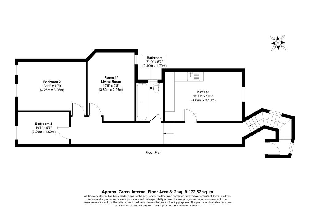
The property at 30b Ballards Lane, London, is a 3-bedroom flat in West Finchley. While the location offers good access to amenities and schools, the property is in need of extensive renovation. The list price of £250,000 reflects the condition and presents an opportunity for buyers willing to undertake a refurbishment project. The absence of land is a drawback, but the price point compensates for this. The property is a flat, and there is no garden or land included. The presence of scaffolding suggests ongoing work to the building’s exterior.
Therefore, we give this property 4 / 10. *Disclaimer: This is our option and does constitute a recommendation or financial advice. Do your own research. *
- Price
- 8
- Condition
- 3
- Location
- 7
- Land
- 1
- Bedrooms
- 3
- Bathrooms
- 1
The heatmap indicates the level of crime in the area. The color of the heatmap indicates the crime severity and recency.
Metrics Year-on-Year
- Average area value
- 659,086.00 £Increased by 6.43 %
- Average area rental value
- 2,352.00 £/moDecreased by 3.41 %
- Est rental Yield
- 4.28 %Decreased by 9.32 %
- Crime Rate
- 32.00 %Unchanged by 0.00 %
Agent Activity
BidX1 created the listing.
Nearby Schools
| Name | Type | Ofsted | Distance |
|---|---|---|---|
| Pardes House Primary School | Voluntary Aided School | Good | 0.68 KM |
| Pardes House Grammar School | Other Independent School | Good | 0.68 KM |
| Akiva School | Voluntary Aided School | Good | 0.85 KM |
| St Mary'S Cofe Primary School | Voluntary Aided School | Outstanding | 0.88 KM |
| St Theresa'S Catholic Primary School | Voluntary Aided School | Good | 0.95 KM |
Images
Nearby Streets
| Name | Average Price | Average Sqft | Distance |
|---|---|---|---|
| Albert Place | £ 565,000 | 0 | 0.00 KM |
| Popes Drive | £ 0 | 0 | 0.00 KM |
| Wootton Grove | £ 0 | 0 | 0.00 KM |
| Adams Close | £ 550,000 | 0 | 0.00 KM |
| Chaville Way | £ 0 | 0 | 0.00 KM |
Nearby Transport
| Name | NLC | TLC | Distance |
|---|---|---|---|
| Oakleigh Park | 6020 | OKL | 4.87 KM |
| Cricklewood | 1519 | CRI | 5.38 KM |
| New Barnet | 6018 | NBA | 5.57 KM |
| New Southgate | 6019 | NSG | 5.60 KM |
| Hendon | 1522 | HEN | 5.70 KM |
Nearby Listings
| Address | Price | Type | Score | Distance |
|---|---|---|---|---|
| 30b Ballards Lane, London, N3 2HB | £ 250,000 | BUY | 4 / 10 | 0.00 KM |
| 30a Ballards Lane, London, N3 2HB | £ 200,000 | BUY | 5 / 10 | 0.00 KM |
| Adastra House, Finchley Central, N3 | £ 425,000 | BUY | 6 / 10 | 0.09 KM |
| Hervey Close, Finchley Central, N3 | £ 1,400,000 | BUY | Unknown | 0.09 KM |
| Premier Lodge, 1 Redbourne Avenue, London, N3 | £ 325,000 | BUY | Unknown | 0.10 KM |
Nearby Properties
| Address | Price | Distance |
|---|---|---|
| 18a Ballards Lane | £ 320,000 | 0.08 KM |
| 18d Ballards Lane | £ 273,000 | 0.10 KM |
| 12b Ballards Lane | £ 425,000 | 0.10 KM |
| 63 Ballards Lane | £ 305,000 | 0.13 KM |
| 14 The Grove | £ 800,000 | 0.19 KM |