The Grove W6, 10B Shepherds Bush Road, Hammersmith
By Gibbs Gillespie
£ 600,000
Reviews
3 out of 5 stars
Gibbs Gillespie says ..
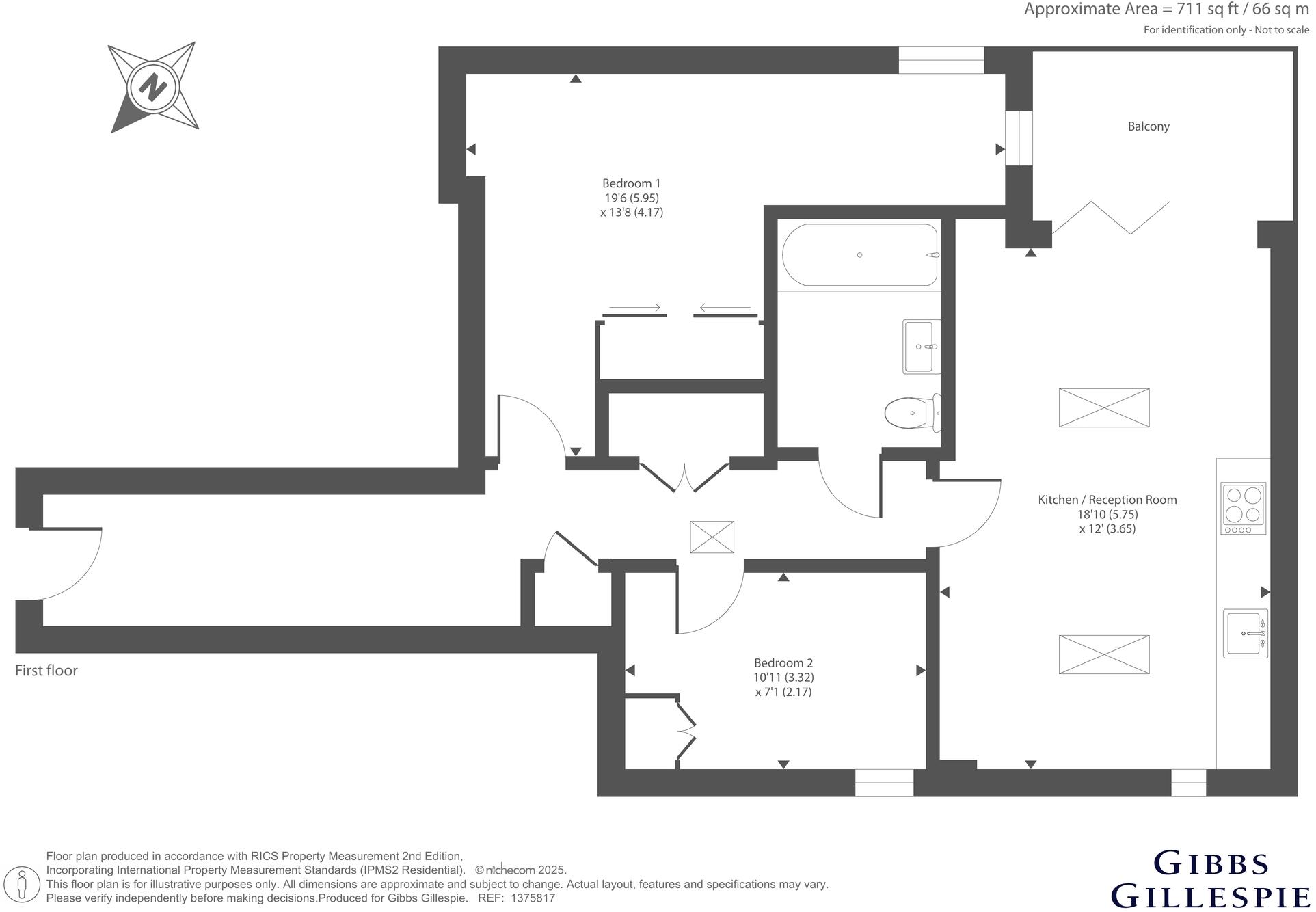
STAMP DUTY CONTRIBUTION AVAILABLE* BRAND NEW TWO BEDROOM APARTMENT - READY TO MOVE INTO This stunning brand new luxury 711 sq ft two bedroom first floor apartment, with the advantage of a private terrace, set in the The Grove W6 a boutique collection of one, two and four bed...
Property Oracle says ..
This is a modern 2-bedroom apartment located on Shepherd’s Bush Road in Hammersmith. The property is in excellent condition, featuring modern fixtures and fittings. It includes a balcony, adding to its appeal. While the price per square foot is above the local average, the property’s condition and location make it a desirable option for buyers looking for a well-maintained home in a vibrant area of London.
Therefore, we give this property 7 / 10. *Disclaimer: This is our option and does constitute a recommendation or financial advice. Do your own research. *
- Price
- 7
- Condition
- 9
- Location
- 7
- Land
- 6
- Bedrooms
- 2
- Bathrooms
- 1
- Sqft (est)
- 322.91
The heatmap indicates the level of crime in the area. The color of the heatmap indicates the crime severity and recency.
Metrics Year-on-Year
- Average area value
- 1,006,667.00 £Increased by 5.72 %
- Est sale value
- 345,513.70 £Increased by 19.02 %
- Average area rental value
- 1,276.00 £/moDecreased by 19.29 %
- Est letting value
- 322.91 £/moUnchanged by 0.00 %
- Est rental Yield
- 1.52 %Decreased by 23.62 %
- Crime Rate
- 9.00 %Unchanged by 0.00 %
Agent Activity
Gibbs Gillespie created the listing.
Nearby Schools
| Name | Type | Ofsted | Distance |
|---|---|---|---|
| Young Dancers Academy | Other Independent School | Outstanding | 0.35 KM |
| Shepherds Bush Families Project And Children'S Centre | Children's Centre Linked Site | 0.37 KM | |
| Addison Primary School | Community School | Good | 0.53 KM |
| St Stephen'S Cofe Primary School | Voluntary Aided School | Outstanding | 0.60 KM |
| Miles Coverdale Primary School | Community School | Outstanding | 0.66 KM |
Images
Nearby Streets
| Name | Average Price | Average Sqft | Distance |
|---|---|---|---|
| Sulgrave Road | £ 1,800,000 | 0 | 0.00 KM |
| Uxbridge Road | £ 0 | 0 | 0.00 KM |
| Uxbridge Road | £ 0 | 0 | 0.00 KM |
| Shepherd's Bush Road | £ 0 | 0 | 0.00 KM |
| Shepherd's Bush Place | £ 0 | 0 | 0.00 KM |
Nearby Transport
| Name | NLC | TLC | Distance |
|---|---|---|---|
| Shepherd'S Bush | 9587 | SPB | 0.67 KM |
| Kensington (Olympia) | 3092 | KPA | 1.50 KM |
| Kensal Green | 1447 | KNL | 3.12 KM |
| West Brompton | 8875 | WBP | 3.50 KM |
| Kensal Rise | 1448 | KNR | 3.57 KM |
Nearby Listings
| Address | Price | Type | Score | Distance |
|---|---|---|---|---|
| The Grove W6, 10B Shepherds Bush Road, Hammersmith | £ 700,000 | BUY | 6 / 10 | 0.00 KM |
| The Grove W6, 10B Shepherds Bush Road, Hammersmith | £ 750,000 | BUY | 7 / 10 | 0.00 KM |
| The Grove W6, 10B Shepherds Bush Road, Hammersmith | £ 815,000 | BUY | 6 / 10 | 0.00 KM |
| The Grove W6, 10B Shepherds Bush Road, Hammersmith | £ 795,000 | BUY | 7 / 10 | 0.00 KM |
| The Grove W6, 10B Shepherds Bush Road, Hammersmith | £ 600,000 | BUY | 7 / 10 | 0.00 KM |
Nearby Properties
| Address | Price | Distance |
|---|---|---|
| 22 Shepherds Bush Road | £ 400,000 | 0.08 KM |
| 22a Shepherds Bush Road | £ 340,000 | 0.08 KM |
| 22b Shepherds Bush Road | £ 325,000 | 0.08 KM |
| 41a Sulgrave Road | £ 770,000 | 0.13 KM |
| 11 Sulgrave Road | £ 1,925,000 | 0.13 KM |