Butchers Lane, Pattishall, NN12
By Howkins & Harrison LLP
£ 750,000
Reviews
3 out of 5 stars
Howkins & Harrison LLP says ..
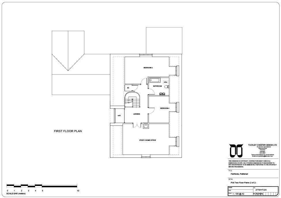
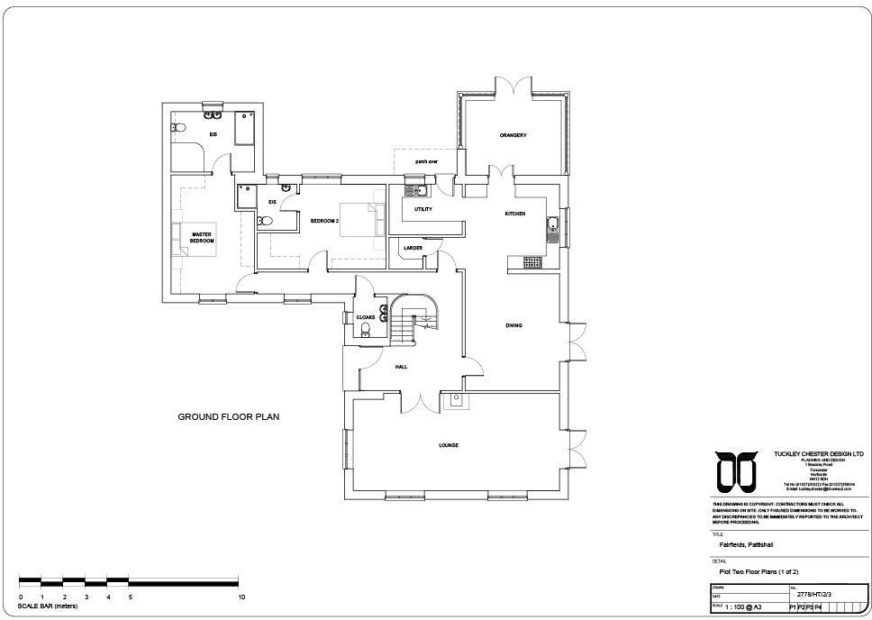
An exciting opportunity to purchase a development site with Outline Planning Permission granted on 29th January 2021 for four bespoke detached dwellings. Plot Two is a customer build for the current landowner.
Property Oracle says ..
This property listing presents an opportunity to purchase a plot of land with Outline Planning Permission already granted for the construction of four detached dwellings in the sought-after village of Pattishall, Northamptonshire. The architectural plans indicate a well-designed, modern house, and the artist’s renderings showcase a visually appealing home. The location in Pattishall offers a quiet, village setting near good primary schools. Nearby amenities, such as those in the town of Towcester, are accessible by car. A key factor to consider is the absence of details regarding the actual square footage of the building which directly affects the evaluation of the list price. The current price might be justified if the building is significantly larger than other homes in the nearby area. Without further information on this vital aspect, making an accurate property analysis is difficult. Additionally, considering the significant cost of the land in such a desirable location, the asking price should be analyzed in the context of development potential, and the profit expected upon completion of the planned four dwellings.
Therefore, we give this property 6 / 10. *Disclaimer: This is our option and does constitute a recommendation or financial advice. Do your own research. *
- Price
- 6
- Condition
- 9
- Location
- 7
- Land
- 4
- Bedrooms
- 0
- Bathrooms
- 0
The heatmap indicates the level of crime in the area. The color of the heatmap indicates the crime severity and recency.
Metrics Year-on-Year
- Average area value
- 375,000.00 £Decreased by 12.81 %
- Average area rental value
- 1,375.00 £/moDecreased by 6.53 %
- Est rental Yield
- 4.40 %Increased by 7.32 %
- Crime Rate
- 87.00 %Unchanged by 0.00 %
Agent Activity
Howkins & Harrison LLP marked this listing as sold.
Howkins & Harrison LLP created the listing.
Nearby Schools
| Name | Type | Ofsted | Distance |
|---|---|---|---|
| Pattishall Church Of England Primary School | Voluntary Controlled School | Good | 1.02 KM |
| Bugbrooke Community Primary School | Community School | Good | 3.81 KM |
| Greens Norton Church Of England Primary School | Academy Converter | Good | 4.04 KM |
| Campion School | Academy Converter | Requires improvement | 4.56 KM |
| The Bliss Charity School | Voluntary Aided School | Good | 4.79 KM |
Images
Nearby Streets
| Name | Average Price | Average Sqft | Distance |
|---|---|---|---|
| Blacksmith's Close | £ 250,000 | 0 | 0.00 KM |
| Orchard Court | £ 0 | 0 | 0.00 KM |
| School Road | £ 0 | 0 | 0.00 KM |
| Sutton's Walk | £ 0 | 0 | 0.00 KM |
Nearby Listings
| Address | Price | Type | Score | Distance |
|---|---|---|---|---|
| Butchers Lane, Pattishall, NN12 | £ 750,000 | BUY | 6 / 10 | 0.00 KM |
| Butchers Lane, Pattishall | £ 559,950 | BUY | Unknown | 0.04 KM |
| Simons Walk, Pattishall, NN12 | £ 250,000 | BUY | 6 / 10 | 0.12 KM |
| Simons Walk, Pattishall, Towcester, Northamptonshire, NN12 | £ 240,000 | BUY | 6 / 10 | 0.13 KM |
| Simons Walk, Pattishall, NN12 | £ 270,000 | BUY | Unknown | 0.17 KM |
Nearby Properties
| Address | Price | Distance |
|---|---|---|
| 5 Pool Close | £ 140,000 | 0.04 KM |
| 2 Pool Close | £ 110,000 | 0.04 KM |
| 8 Pool Close | £ 238,000 | 0.04 KM |
| 51 Simons Walk | £ 166,000 | 0.07 KM |
| 7 Simons Walk | £ 250,000 | 0.07 KM |