WE
Cosheston, Pembroke Dock
By West Wales Properties
£ 330,000
Reviews
3 out of 5 stars
West Wales Properties says ..
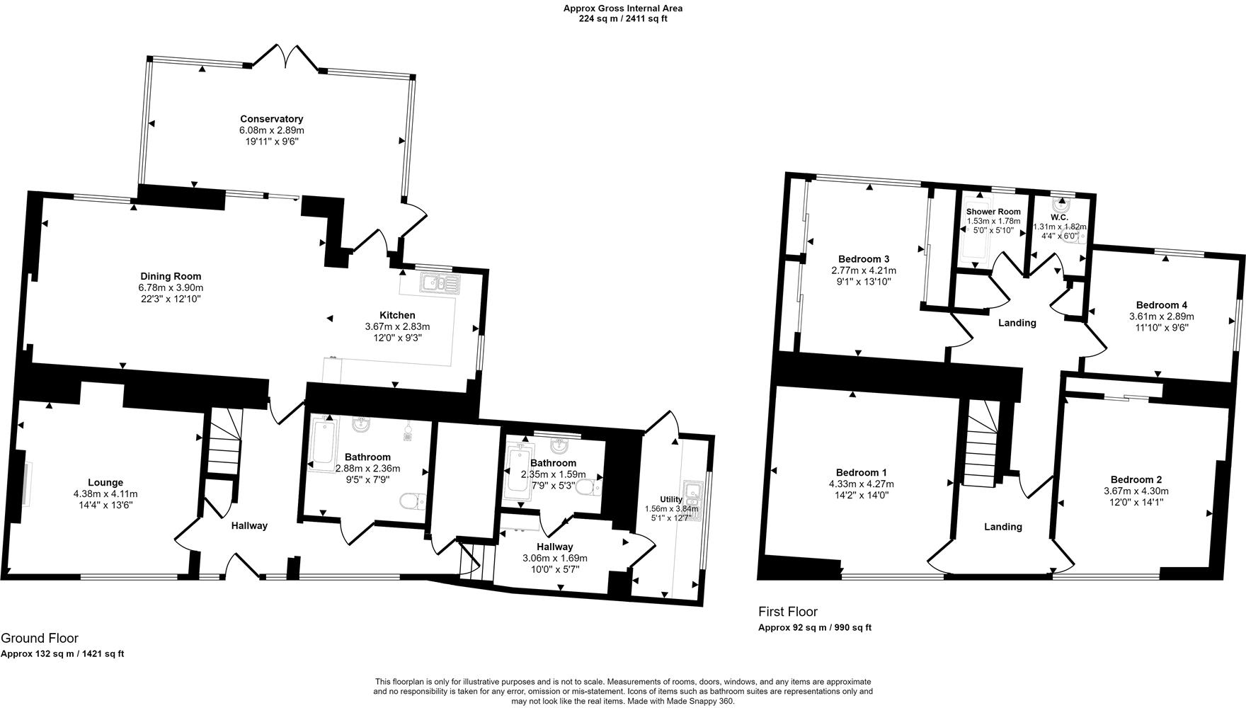
A brilliant opportunity to acquire an end of terrace house, in the highly sought after village of Cosheston. Set within approximately 0.35 of an acre, the property offers endless potential. Offering versatile accommodation throughout, the property would make an ideal family home, or multi- genera...
Property Oracle says ..
Therefore, we give this property 6 / 10. *Disclaimer: This is our option and does constitute a recommendation or financial advice. Do your own research. *
- Price
- 7
- Condition
- 4
- Location
- 7
- Land
- 8
- Bedrooms
- 4
- Bathrooms
- 2
- Sqft (est)
- 1,619.11
The heatmap indicates the level of crime in the area. The color of the heatmap indicates the crime severity and recency.
Metrics Year-on-Year
- Average area value
- 278,905.00 £Increased by 2.67 %
- Est sale value
- 445,255.25 £Increased by 50.27 %
- Average area rental value
- 800.00 £/moDecreased by 34.53 %
- Est letting value
- 0.00 £/mo
- Est rental Yield
- 3.44 %Decreased by 36.30 %
- Crime Rate
- 7.00 %Unchanged by 0.00 %
from 271,663.00 £
from 296,297.13 £
from 1,222.00 £/mo
from 0.00 £/mo
from 5.40 %
from 7.00 %
Agent Activity
West Wales Properties marked this listing as sold.
West Wales Properties created the listing.
Nearby Schools
| Name | Type | Ofsted | Distance |
|---|---|---|---|
| Cosheston V.C.P. School | Welsh Establishment | 0.65 KM | |
| Ysgol Gelli Aur Golden Grove | Welsh Establishment | 3.35 KM | |
| Lamphey C.P. School | Welsh Establishment | 3.99 KM | |
| Ysgol Harri Tudur/Henry Tudor School | Welsh Establishment | 4.17 KM | |
| Monkton Priory Cp School | Welsh Establishment | 4.84 KM |
Images
Nearby Streets
| Name | Average Price | Average Sqft | Distance |
|---|---|---|---|
| West Park | £ 0 | 0 | 0.00 KM |
| West Lane | £ 0 | 0 | 0.00 KM |
| Paskeston Road | £ 795,000 | 0 | 0.00 KM |
Nearby Transport
| Name | NLC | TLC | Distance |
|---|---|---|---|
| Pembroke | 4101 | PMB | 3.01 KM |
| Lamphey | 4084 | LAM | 3.75 KM |
| Pembroke Dock | 4102 | PMD | 5.17 KM |
Nearby Listings
| Address | Price | Type | Score | Distance |
|---|---|---|---|---|
| Cosheston, Pembroke Dock | £ 330,000 | BUY | 6 / 10 | 0.00 KM |
| Cosheston, Pembroke Dock | £ 150,000 | BUY | Unknown | 0.00 KM |
| Cosheston, Pembroke Dock, SA72 | £ 250,000 | BUY | 6 / 10 | 0.04 KM |
| Cosheston, Pembroke Dock, Pembrokeshire, SA72 | £ 380,000 | BUY | 7 / 10 | 0.06 KM |
| West Park, Cosheston | £ 515,000 | BUY | 7 / 10 | 0.06 KM |
Nearby Properties
| Address | Price | Distance |
|---|---|---|
| 46 West Haven Estate | £ 230,000 | 0.16 KM |
| 3 West Haven Estate | £ 215,000 | 0.18 KM |
| 19 West Haven Estate | £ 139,000 | 0.18 KM |
| 11 West Haven Estate | £ 130,000 | 0.18 KM |
| 14 West Haven Estate | £ 95,000 | 0.18 KM |