Ensum Brown says ..
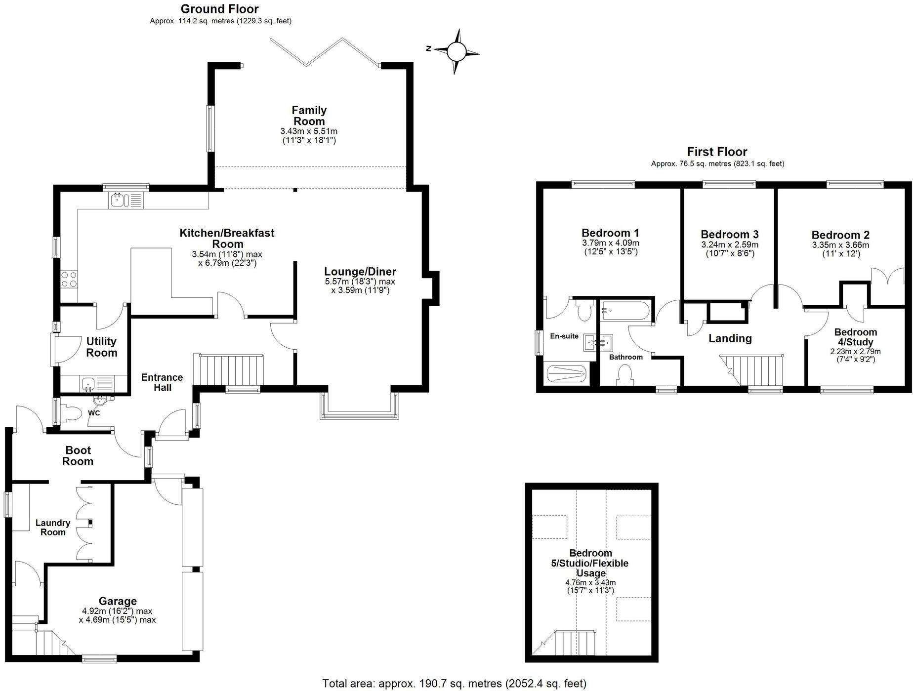
Ensum Brown offer this extended detached home on a cul-de-sac in Orwell, with field views, over 2000sq ft of accommodation, no chain, open-plan living, utility, boot and laundry rooms, a first floor studio, 4 bedrooms, 2 bathrooms, a one and a half garage, an enclosed garden and solar panels
Property Oracle says ..
Therefore, we give this property 7 / 10. *Disclaimer: This is our option and does constitute a recommendation or financial advice. Do your own research. *
- Price
- 7
- Condition
- 8
- Location
- 7
- Land
- 7
- Bedrooms
- 4
- Bathrooms
- 2
- Sqft (est)
- 1,557.22
The heatmap indicates the level of crime in the area. The color of the heatmap indicates the crime severity and recency.
Metrics Year-on-Year
- Average area value
- 741,667.00 £Increased by 25.85 %
- Est sale value
- 1,331,423.10 £Increased by 185.95 %
- Average area rental value
- 1,300.00 £/moDecreased by 18.14 %
- Est letting value
- 1,557.22 £/mo
- Est rental Yield
- 2.10 %Decreased by 34.98 %
- Crime Rate
- 22.00 %Unchanged by 0.00 %
from 589,348.00 £
from 465,608.78 £
from 1,588.00 £/mo
from 0.00 £/mo
from 3.23 %
from 22.00 %
Agent Activity
Ensum Brown created the listing.
Nearby Schools
| Name | Type | Ofsted | Distance |
|---|---|---|---|
| Petersfield Cofe Aided Primary School | Voluntary Aided School | Good | 0.99 KM |
| Aurora Meldreth Manor School | Other Independent Special School | Good | 4.25 KM |
| Meldreth Primary School | Community School | Good | 4.86 KM |
| Barrington Cofe Vc Primary School | Voluntary Controlled School | Good | 5.32 KM |
| Melbourn Village College | Academy Converter | Good | 6.00 KM |
Images
Nearby Streets
| Name | Average Price | Average Sqft | Distance |
|---|---|---|---|
| The Grove | £ 0 | 0 | 0.00 KM |
Nearby Transport
| Name | NLC | TLC | Distance |
|---|---|---|---|
| Shepreth | 7044 | STH | 4.96 KM |
| Meldreth | 7036 | MEL | 5.23 KM |
| Foxton | 7029 | FXN | 7.38 KM |
| Royston | 6090 | RYS | 9.27 KM |
Nearby Listings
| Address | Price | Type | Score | Distance |
|---|---|---|---|---|
| Pearmains Close, Orwell, SG8 | £ 825,000 | BUY | 7 / 10 | 0.00 KM |
| High Street, Orwell | £ 830,000 | BUY | Unknown | 0.09 KM |
| High Street, Orwell, Royston | £ 685,000 | BUY | 7 / 10 | 0.25 KM |
| High Street, Orwell | £ 375,000 | BUY | 7 / 10 | 0.30 KM |
| 43 High Street, Orwell, Royston, Hertfordshire, SG8 5QN | £ 250,000 | BUY | 6 / 10 | 0.30 KM |
Nearby Properties
| Address | Price | Distance |
|---|---|---|
| 14 Pearmains Close | £ 470,000 | 0.07 KM |
| 5 Pearmains Close | £ 335,000 | 0.07 KM |
| 9 Pearmains Close | £ 400,000 | 0.07 KM |
| 2 Pearmains Close | £ 330,000 | 0.07 KM |
| 13 Pearmains Close | £ 330,000 | 0.07 KM |