Rectory Road, Duckmanton, Chesterfield, Derbyshire, S44
By Reeds Rains
£ 125,000
Reviews
2 out of 5 stars
Reeds Rains says ..
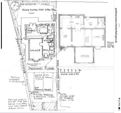
DEVELOPMENT OPPORTUNITY! A opportunity to build your own home within the lovely village of Duckmanton, boasting open views to farmland and afar! So if you're looking to build your own home or for an investment opportunity, this is plot of land could be the answer as the full planning has been app...
Property Oracle says ..
This property in Duckmanton, Chesterfield, is listed for £125,000. Its location presents several advantages, including relative proximity to good-rated primary schools and Chesterfield town centre for broader amenities and transport connections. The property boasts a sizeable garden. However, the provided photos and architectural plans suggest a property that needs significant refurbishment or possibly redevelopment. The absence of key details such as the total square footage of the property and the number of bedrooms and bathrooms makes a detailed valuation extremely difficult. Nearby property prices vary significantly, ranging from £70,000 to £350,000, highlighting the broad price spectrum in the area. This large range highlights the need for further investigation before a solid opinion on whether the £125,000 asking price is accurate or not can be reached. Prospective buyers should factor in potential renovation costs and thoroughly investigate the property’s condition before making an offer. The location’s strengths are clear, but the necessary investment in the property itself must be considered carefully in any purchasing decision. Without further data, a fully comprehensive analysis is impossible.
Therefore, we give this property 5 / 10. *Disclaimer: This is our option and does constitute a recommendation or financial advice. Do your own research. *
- Price
- 6
- Condition
- 4
- Location
- 7
- Land
- 6
- Bedrooms
- 0
- Bathrooms
- 0
The heatmap indicates the level of crime in the area. The color of the heatmap indicates the crime severity and recency.
Metrics Year-on-Year
- Average area value
- 291,263.00 £Decreased by 1.08 %
- Average area rental value
- 980.00 £/moDecreased by 0.31 %
- Est rental Yield
- 4.04 %Increased by 0.75 %
- Crime Rate
- 29.00 %Unchanged by 0.00 %
Agent Activity
Reeds Rains created the listing.
Nearby Schools
| Name | Type | Ofsted | Distance |
|---|---|---|---|
| Duckmanton Primary School | Community School | Good | 0.74 KM |
| Poolsbrook Primary Academy | Academy Converter | 1.64 KM | |
| Arkwright Primary School | Community School | Good | 2.74 KM |
| Netherthorpe School | Academy Converter | Good | 2.87 KM |
| St Joseph'S Catholic And Cofe (Va) Primary School | Voluntary Aided School | Good | 3.03 KM |
Images
Nearby Streets
| Name | Average Price | Average Sqft | Distance |
|---|---|---|---|
| Beech Grove | £ 250,000 | 0 | 0.00 KM |
| Staveley Road | £ 0 | 0 | 0.00 KM |
| Cottage Close | £ 0 | 0 | 0.00 KM |
| Drake Avenue | £ 0 | 0 | 0.00 KM |
| Blackbird Drive | £ 0 | 0 | 0.00 KM |
Nearby Transport
| Name | NLC | TLC | Distance |
|---|---|---|---|
| Chesterfield | 6615 | CHD | 9.03 KM |
Nearby Listings
| Address | Price | Type | Score | Distance |
|---|---|---|---|---|
| Rectory Road, Duckmanton, Chesterfield, Derbyshire, S44 | £ 125,000 | BUY | 5 / 10 | 0.00 KM |
| Rectory Road, Duckmanton, Chesterfield, Derbyshire, S44 | £ 700,000 | BUY | 7 / 10 | 0.00 KM |
| Poplar Heights, Duckmanton, S44 | £ 315,000 | BUY | 8 / 10 | 0.12 KM |
| Poplar Heights, Duckmanton, Chesterfield | £ 375,000 | BUY | 7 / 10 | 0.12 KM |
| Poplar Heights, Duckmanton, Chesterfield | £ 380,000 | BUY | Unknown | 0.12 KM |
Nearby Properties
| Address | Price | Distance |
|---|---|---|
| 24 Robertsons Avenue | £ 116,000 | 0.13 KM |
| 27 Robertsons Avenue | £ 141,000 | 0.13 KM |
| 15 Robertsons Avenue | £ 115,000 | 0.13 KM |
| 33 Robertsons Avenue | £ 116,000 | 0.13 KM |
| 56 Rectory Road | £ 340,000 | 0.17 KM |