Olivers Town says ..
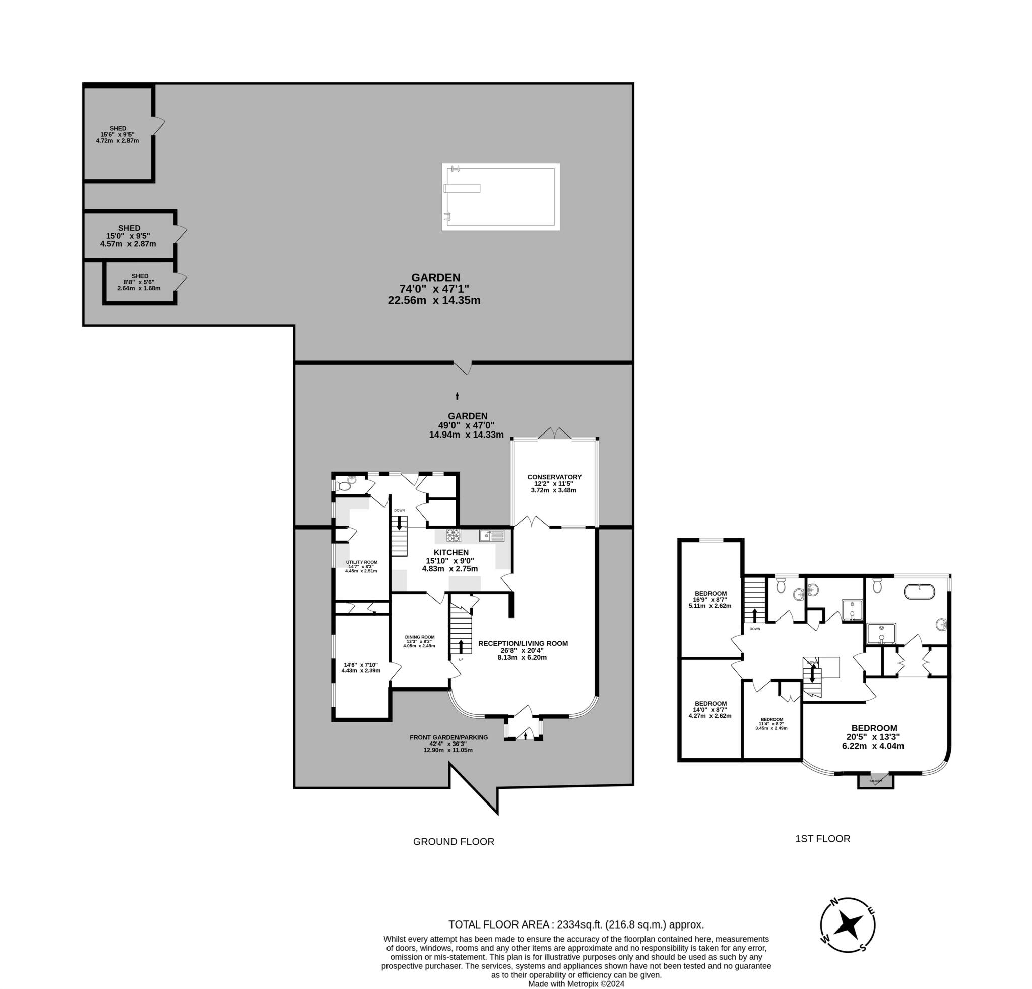
Being Sold via Secure Sale. Terms & Conditions apply. Starting offers £1,150,000. Located within easy reach of Southgate and Oakwood stations, shops, eateries and the green spaces of Oakwood Park and Trent Park. This imposing detached property has an internal floor space in ex...
Property Oracle says ..
This property is a large family home located on Chase Road in Southgate, Enfield. The house is in need of some modernisation, however, it is a spacious property with a large garden, including a swimming pool and shed. The location is excellent, with several highly-rated primary schools within a short distance and good transport links to central London. The price is at the higher end of the market for this area but given the size of the property and the land, it may represent good value for money.
Therefore, we give this property 7 / 10. *Disclaimer: This is our option and does constitute a recommendation or financial advice. Do your own research. *
- Price
- 7
- Condition
- 6
- Location
- 9
- Land
- 8
- Bedrooms
- 4
- Bathrooms
- 2
- Sqft (est)
- 6,590.00
- Lot (est)
- 3,234.00
The heatmap indicates the level of crime in the area. The color of the heatmap indicates the crime severity and recency.
Metrics Year-on-Year
- Average area value
- 488,748.00 £Decreased by 5.95 %
- Est sale value
- 3,281,820.00 £Decreased by 4.60 %
- Average area rental value
- 1,587.00 £/moDecreased by 5.76 %
- Est letting value
- 6,590.00 £/moUnchanged by 0.00 %
- Est rental Yield
- 3.90 %Increased by 0.26 %
- Crime Rate
- 9.00 %Unchanged by 0.00 %
Agent Activity
Olivers Town created the listing.
Nearby Schools
| Name | Type | Ofsted | Distance |
|---|---|---|---|
| Wolfson Hillel Primary School | Academy Converter | 0.39 KM | |
| West Grove Primary | Community School | Good | 0.71 KM |
| St Andrew'S Southgate Primary School (Ce) | Voluntary Aided School | Good | 0.89 KM |
| Vita Et Pax School | Other Independent School | 0.95 KM | |
| Osidge Primary School | Foundation School | Good | 1.07 KM |
Images
Nearby Streets
| Name | Average Price | Average Sqft | Distance |
|---|---|---|---|
| Chase Bank Court | £ 400,000 | 0 | 0.00 KM |
| Avenue Close | £ 0 | 0 | 0.00 KM |
| Avenue Court | £ 515,000 | 0 | 0.00 KM |
| Old Farm Avenue | £ 443,214 | 0 | 0.00 KM |
| Avenue Road | £ 576,667 | 0 | 0.00 KM |
Nearby Transport
| Name | NLC | TLC | Distance |
|---|---|---|---|
| Winchmore Hill | 6024 | WIH | 3.30 KM |
| Palmers Green | 6021 | PAL | 3.38 KM |
| New Southgate | 6019 | NSG | 3.43 KM |
| Grange Park | 6029 | GPK | 3.57 KM |
| Bowes Park | 6027 | BOP | 4.01 KM |
Nearby Listings
| Address | Price | Type | Score | Distance |
|---|---|---|---|---|
| Chase Road, N14 | £ 1,150,000 | BUY | 7 / 10 | 0.00 KM |
| 101 Chase Road, Southgate, London, N14 4LA | £ 900,000 | BUY | 6 / 10 | 0.08 KM |
| 57 Grovebury Court, Southgate | £ 749,950 | BUY | Unknown | 0.08 KM |
| St. Johns Close, London, N14 | £ 680,000 | BUY | 7 / 10 | 0.10 KM |
| St. Johns Close, London | £ 729,995 | BUY | Unknown | 0.12 KM |
Nearby Properties
| Address | Price | Distance |
|---|---|---|
| 116 Chase Road | £ 510,000 | 0.01 KM |
| 104 Chase Road | £ 610,000 | 0.01 KM |
| 102 Chase Road | £ 460,000 | 0.01 KM |
| 96 Chase Road | £ 725,000 | 0.01 KM |
| 90 Chase Road | £ 310,000 | 0.01 KM |