Bedford Street, Stockton Heath
By AshcroftGuest
£ 350,000
Reviews
3 out of 5 stars
AshcroftGuest says ..
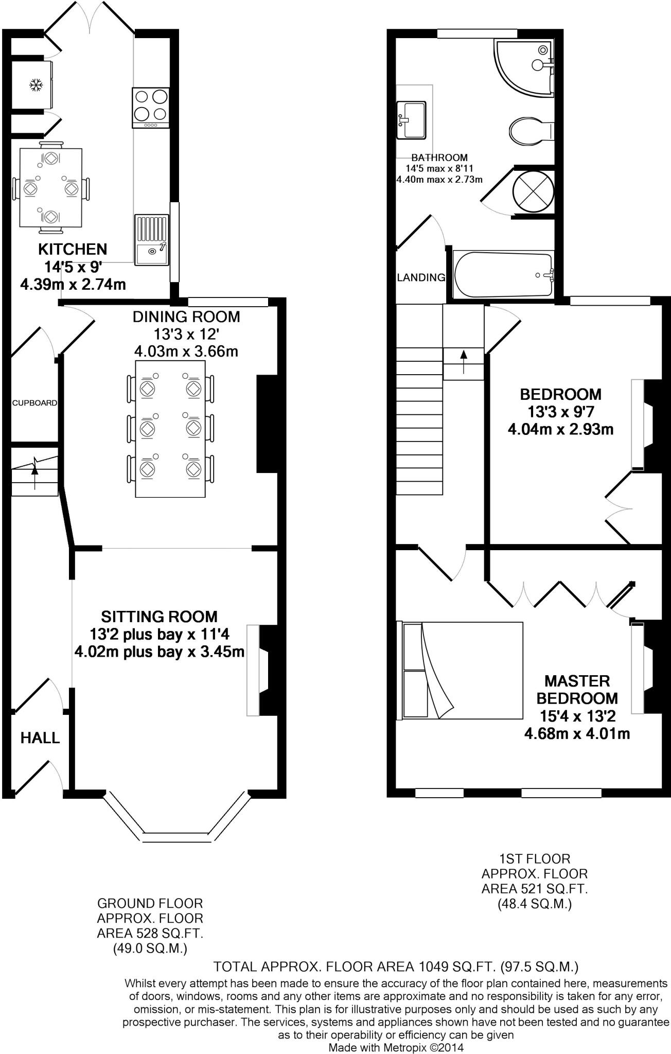
A fantastic opportunity to purchase an attractive period terraced property in a highly desirable position, just a short stroll from the village. Not to be missed, this superb property offers sizeable living space with two double sized bedrooms, a large bathroom and a lovely sunny courtyard gar...
Property Oracle says ..
This two-bedroom terraced house on Bedford Street, Stockton Heath, Warrington, presents a compelling opportunity for buyers seeking a property in a highly desirable location. Stockton Heath is renowned for its village atmosphere, excellent schools, and convenient access to Warrington town centre and transport links. The property itself benefits from a recently modernised kitchen and bathroom, offering a contemporary feel. The living areas retain some period features, adding character. While the property is in good condition, some cosmetic updates to flooring and other areas could enhance its appeal. The small, paved rear garden provides a private outdoor space. The asking price of £350,000 appears competitive within the context of the Stockton Heath market, although more detailed comparative data on square footage would provide a more precise valuation. Overall, this property offers a blend of desirable location, modern amenities, and period charm, making it a potentially attractive purchase for various buyer profiles.
Therefore, we give this property 6 / 10. *Disclaimer: This is our option and does constitute a recommendation or financial advice. Do your own research. *
- Price
- 7
- Condition
- 7
- Location
- 8
- Land
- 4
- Bedrooms
- 2
- Bathrooms
- 1
- Sqft (est)
- 1,049.48
The heatmap indicates the level of crime in the area. The color of the heatmap indicates the crime severity and recency.
Metrics Year-on-Year
- Average area value
- 393,000.00 £Decreased by 15.72 %
- Est sale value
- 473,315.48 £Increased by 37.92 %
- Average area rental value
- 1,388.00 £/moIncreased by 10.60 %
- Est letting value
- 1,049.48 £/mo
- Est rental Yield
- 4.24 %Increased by 31.27 %
- Crime Rate
- 19.00 %Unchanged by 0.00 %
Agent Activity
AshcroftGuest created the listing.
Nearby Schools
| Name | Type | Ofsted | Distance |
|---|---|---|---|
| Stockton Heath Primary School | Community School | Good | 0.40 KM |
| St Thomas' Cofe Primary School | Voluntary Aided School | Good | 0.98 KM |
| Bridgewater High School | Academy Converter | 1.10 KM | |
| St Monica'S Catholic Primary School | Voluntary Aided School | Good | 1.22 KM |
| Priestley College | Academy 16-19 Converter | Good | 1.27 KM |
Images
Nearby Streets
| Name | Average Price | Average Sqft | Distance |
|---|---|---|---|
| Heath Street | £ 0 | 0 | 0.00 KM |
| Carlton Street | £ 302,500 | 0 | 0.00 KM |
| Beech Road | £ 440,000 | 0 | 0.00 KM |
| Carlisle Street | £ 225,000 | 0 | 0.00 KM |
| Mitchell Street | £ 239,500 | 0 | 0.00 KM |
Nearby Transport
| Name | NLC | TLC | Distance |
|---|---|---|---|
| Warrington Central | 2390 | WAC | 2.84 KM |
| Warrington Bank Quay | 2384 | WBQ | 2.89 KM |
| Padgate | 2387 | PDG | 5.11 KM |
| Warrington West | 6583 | WAW | 6.70 KM |
| Sankey For Penketh | 2388 | SNK | 7.90 KM |
Nearby Listings
| Address | Price | Type | Score | Distance |
|---|---|---|---|---|
| Bedford Street, Stockton Heath | £ 350,000 | BUY | 6 / 10 | 0.00 KM |
| Walton Road, Stockton Heath | £ 310,000 | BUY | 6 / 10 | 0.08 KM |
| Cawdor Street, Stockton Heath, Warrington, WA4 | £ 300,000 | BUY | 6 / 10 | 0.10 KM |
| Walton Road, Stockton Heath, Warrington | £ 250,000 | BUY | 6 / 10 | 0.11 KM |
| Cawdor Street, Stockton Heath, Warrington | £ 375,000 | BUY | 7 / 10 | 0.11 KM |
Nearby Properties
| Address | Price | Distance |
|---|---|---|
| 10 Bedford Street | £ 143,000 | 0.01 KM |
| 20 Bedford Street | £ 475,000 | 0.01 KM |
| 23 Bedford Street | £ 421,900 | 0.01 KM |
| 6 Bedford Street | £ 325,000 | 0.01 KM |
| 26 Bedford Street | £ 240,000 | 0.01 KM |