Morris and Bott says ..
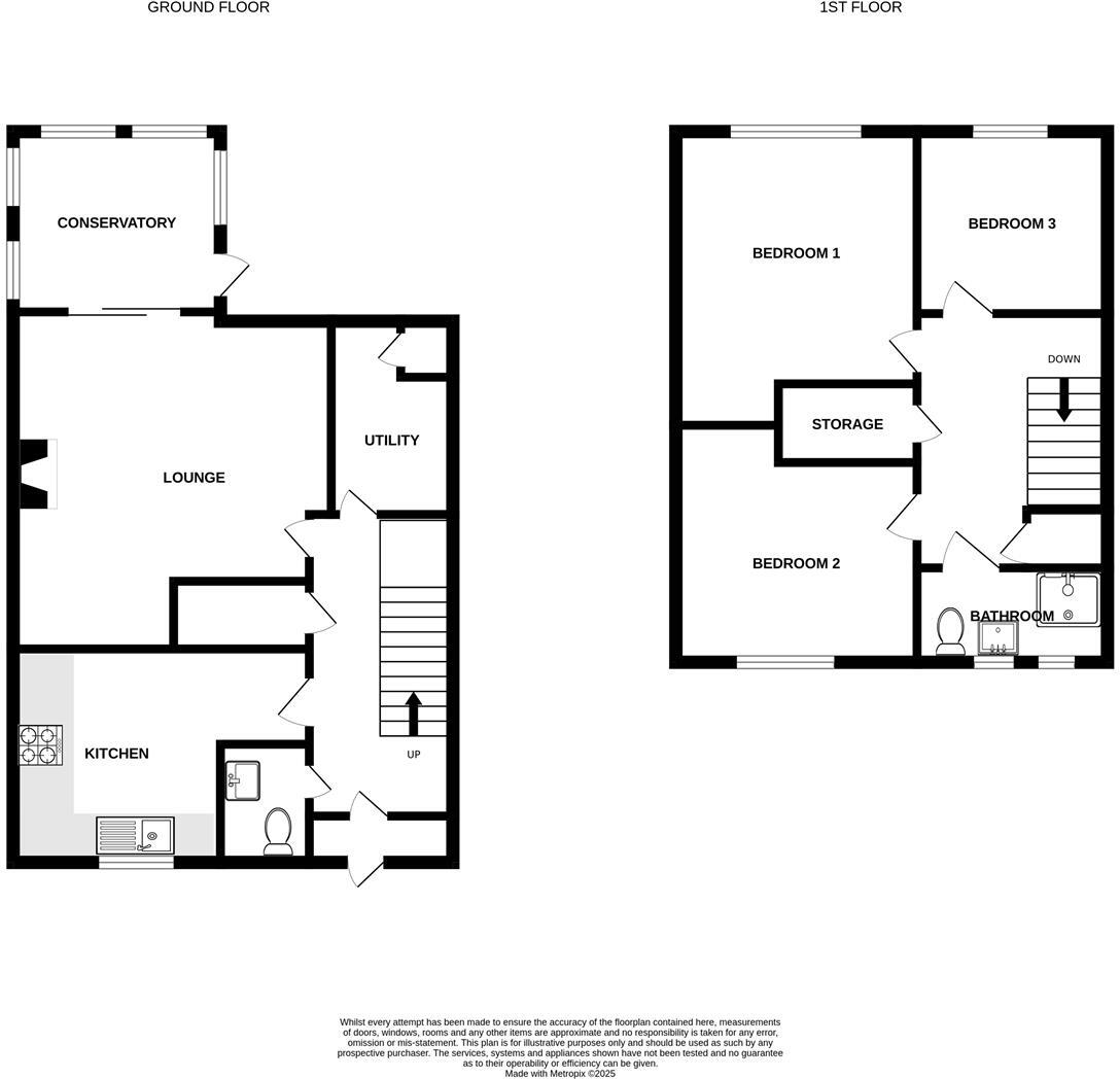
This spacious three bedroom home occupies a tucked away position along Stucley Road and is just a short walk to a range of amenities. The property offers spacious accommodation throughout with a kitchen/diner, lounge, conservatory and utility room on the ground floor. There are three bedrooms, a ...
Property Oracle says ..
The property is a well-maintained 3-bedroom, 2-bathroom terraced house in Bideford, Devon. It benefits from a small garden and is conveniently located near several schools. While the list price is lower than the area average, this may reflect the smaller plot size. The property appears to be in good condition, with updated kitchen and bathrooms. Overall, it could represent good value for money.
Therefore, we give this property 6 / 10. *Disclaimer: This is our option and does constitute a recommendation or financial advice. Do your own research. *
- Price
- 7
- Condition
- 8
- Location
- 7
- Land
- 4
- Bedrooms
- 3
- Bathrooms
- 2
- Sqft (est)
- 870.00
The heatmap indicates the level of crime in the area. The color of the heatmap indicates the crime severity and recency.
Metrics Year-on-Year
- Average area value
- 346,250.00 £Increased by 44.46 %
- Est sale value
- 255,780.00 £Decreased by 1.34 %
- Average area rental value
- 785.00 £/moDecreased by 22.05 %
- Est letting value
- 0.00 £/moDecreased by 100.00 %
- Est rental Yield
- 2.72 %Decreased by 46.03 %
- Crime Rate
- 23.00 %Unchanged by 0.00 %
Agent Activity
Morris and Bott created the listing.
Nearby Schools
| Name | Type | Ofsted | Distance |
|---|---|---|---|
| Bideford College | Academy Sponsor Led | Requires improvement | 0.64 KM |
| Kingsley School | Other Independent School | 1.12 KM | |
| West Croft School | Community School | Requires improvement | 1.34 KM |
| St Mary'S Church Of England Primary School | Voluntary Controlled School | Good | 2.46 KM |
| St Helen'S Church Of England School | Academy Converter | 2.55 KM |
Images
Nearby Streets
| Name | Average Price | Average Sqft | Distance |
|---|---|---|---|
| Grenville Estate Crescent | £ 195,000 | 0 | 0.00 KM |
| Ferndown Close | £ 285,000 | 0 | 0.00 KM |
| Ash Plants Close | £ 350,000 | 0 | 0.00 KM |
| Quarry Close | £ 304,438 | 0 | 0.00 KM |
| High View | £ 0 | 0 | 0.00 KM |
Nearby Listings
| Address | Price | Type | Score | Distance |
|---|---|---|---|---|
| Stucley Road, Bideford | £ 220,000 | BUY | 6 / 10 | 0.00 KM |
| Stucley Road, Bideford | £ 230,000 | BUY | 7 / 10 | 0.03 KM |
| Pridham Place, Bideford | £ 210,000 | BUY | 7 / 10 | 0.03 KM |
| Pridham Place, Bideford | £ 275,000 | BUY | 7 / 10 | 0.03 KM |
| Pridham Place, Bideford, Devon, EX39 | £ 250,000 | BUY | 6 / 10 | 0.06 KM |
Nearby Properties
| Address | Price | Distance |
|---|---|---|
| 65 Moreton Park Road | £ 120,000 | 0.11 KM |
| 102 Moreton Park Road | £ 167,000 | 0.11 KM |
| 90 Moreton Park Road | £ 118,000 | 0.11 KM |
| 79 Moreton Park Road | £ 134,950 | 0.11 KM |
| 51 Moreton Park Road | £ 132,500 | 0.11 KM |