Hamptons Sales says ..
A stunning architect designed barn conversion located within an attractive courtyard setting, towards the edge of the village.
Property Oracle says ..
Therefore, we give this property 8 / 10. *Disclaimer: This is our option and does constitute a recommendation or financial advice. Do your own research. *
- Price
- 9
- Condition
- 8
- Location
- 7
- Land
- 8
- Bedrooms
- 3
- Bathrooms
- 2
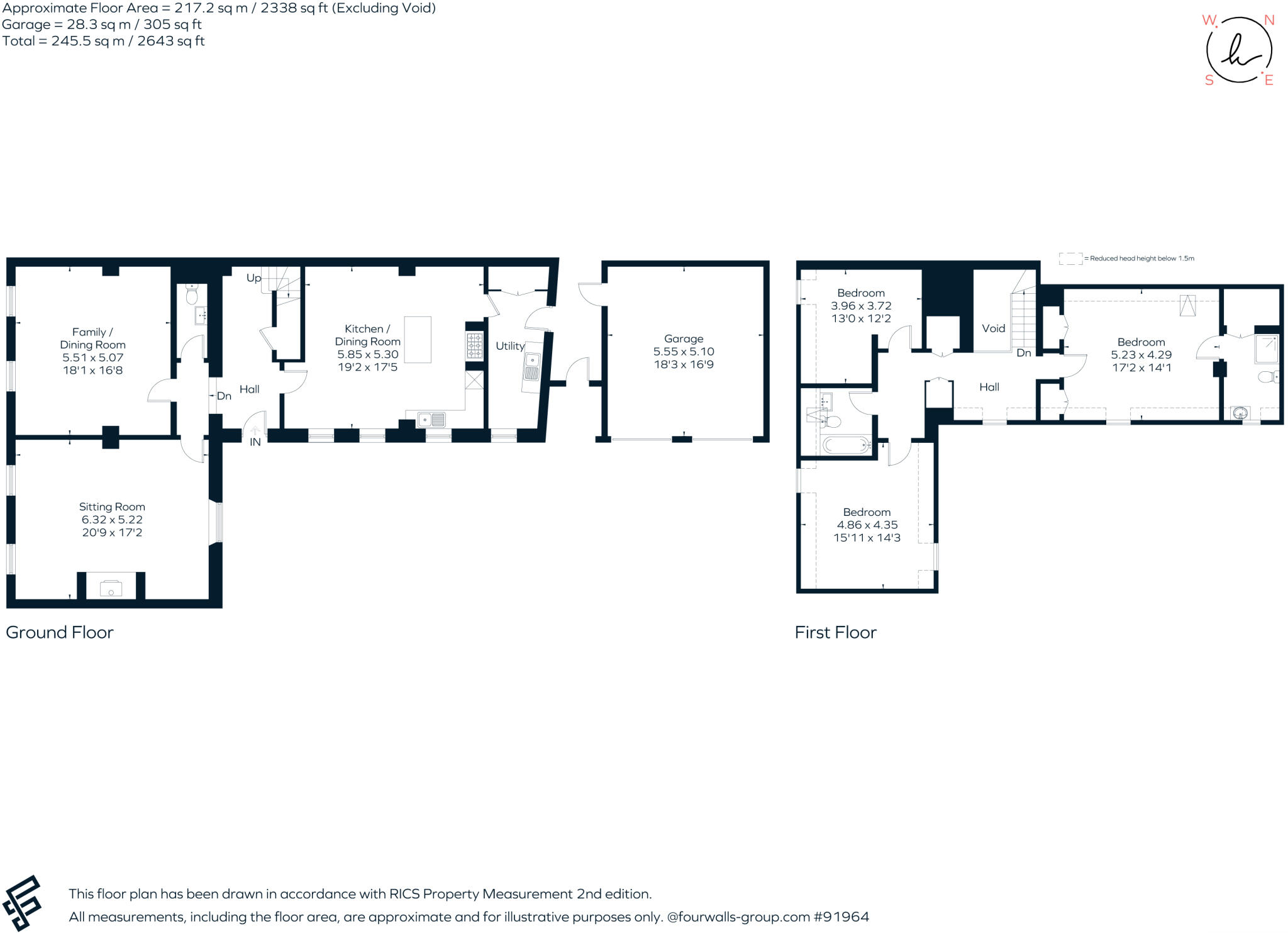
- Sqft (est)
- 2,643.00
The heatmap indicates the level of crime in the area. The color of the heatmap indicates the crime severity and recency.
Metrics Year-on-Year
- Average area value
- 511,250.00 £Decreased by 0.38 %
- Est sale value
- 1,458,936.00 £Increased by 73.04 %
- Average area rental value
- 2,418.00 £/moIncreased by 56.20 %
- Est letting value
- 5,286.00 £/mo
- Est rental Yield
- 5.68 %Increased by 56.91 %
- Crime Rate
- 364.00 %Unchanged by 0.00 %
from 513,200.00 £
from 843,117.00 £
from 1,548.00 £/mo
from 0.00 £/mo
from 3.62 %
from 364.00 %
Agent Activity
Hamptons Sales created the listing.
Nearby Schools
| Name | Type | Ofsted | Distance |
|---|---|---|---|
| Temple Herdewyke Primary School | Academy Converter | 4.17 KM | |
| Hornton Primary School | Academy Converter | Good | 5.05 KM |
| Kineton High School | Academy Converter | 5.35 KM | |
| Shenington Church Of England Primary School | Voluntary Aided School | Good | 5.50 KM |
| Tysoe Cofe Primary School | Academy Converter | 6.27 KM |
Images
Nearby Streets
| Name | Average Price | Average Sqft | Distance |
|---|---|---|---|
| Farnborough Road | £ 575,000 | 0 | 0.00 KM |
| West End | £ 0 | 0 | 0.00 KM |
| Cromwell Court | £ 0 | 0 | 0.00 KM |
| Edgehill Cottages | £ 0 | 0 | 0.00 KM |
Nearby Listings
| Address | Price | Type | Score | Distance |
|---|---|---|---|---|
| Langdon Lane, Radway, CV35 | £ 700,000 | BUY | 8 / 10 | 0.00 KM |
| Radway | £ 475,000 | BUY | 6 / 10 | 0.46 KM |
| Radway, Warwick, Warwickshire | £ 600,000 | BUY | 7 / 10 | 0.49 KM |
| Radway, Warwick, Warwickshire | £ 2,000,000 | BUY | Unknown | 0.56 KM |
| Townsend Paddocks, Radway, Warwick | £ 550,000 | BUY | 7 / 10 | 0.78 KM |
Nearby Properties
| Address | Price | Distance |
|---|---|---|
| 27 The Green | £ 180,000 | 0.06 KM |
| 5 The Green | £ 226,000 | 0.06 KM |
| 24 The Green | £ 285,500 | 0.06 KM |
| 1 The Green | £ 209,000 | 0.06 KM |
| 4 The Green | £ 245,000 | 0.06 KM |