Crawford Road, Milngavie

Rettie & Co says ..

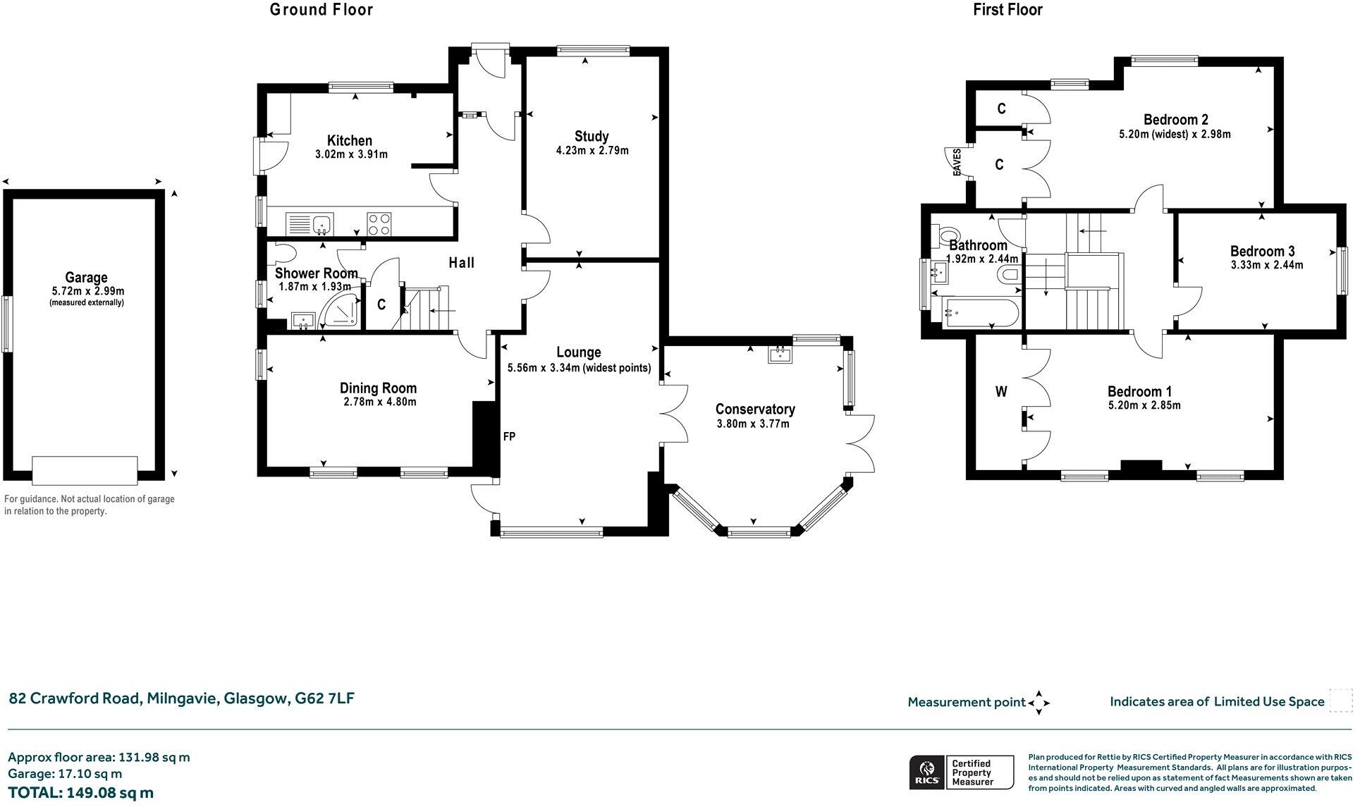
• Detached three/four bedroomed villa by John Russell • Constructed post war in popular ‘Argyll’ style • Set upon sizeable corner plot in Milngavie’s Clober district • Great room sizes, six principal apartments (plus conservatory and breakfast...

Property Oracle says ..

This property is located in Milngavie, East Dunbartonshire, which is a desirable area known for its good schools and transport links. The property itself is a 3-bedroom house with 2 bathrooms, and a sizeable plot. While the interior design is dated, the property appears to be well-maintained and in good condition. The presence of a conservatory adds to the living space. The list price is higher than the average for the area, but considering the size, location, and condition, it may be justifiable for the right buyer. The lack of explicit square footage for nearby properties makes a precise price comparison difficult.

Therefore, we give this property 7 / 10. *Disclaimer: This is our option and does constitute a recommendation or financial advice. Do your own research. *

Price
6
Condition
7
Location
9
Land
8
Bedrooms
3
Bathrooms
2
Sqft (est)
1,604.68

The heatmap indicates the level of crime in the area. The color of the heatmap indicates the crime severity and recency.

Metrics Year-on-Year

Average area value
512,500.00 £
Increased by 58.76 %
from 322,824.00 £
Est sale value
1,099,205.80 £
Increased by 135.40 %
from 466,961.88 £
Average area rental value
1,100.00 £/mo
Decreased by 47.62 %
from 2,100.00 £/mo
Est letting value
1,604.68 £/mo
Unchanged by 0.00 %
from 1,604.68 £/mo
Est rental Yield
2.58 %
Decreased by 66.97 %
from 7.81 %
Crime Rate
0.00 %
from 0.00 %

Agent Activity

  • Rettie & Co created the listing.

Images

Picture 1 Picture 2 Picture 3 Picture 4 Picture 5 Picture 6 Picture 7 Picture 8 Picture 9 Picture 10 Picture 13 Picture 16 Picture 18 Picture 19 Picture 11 Picture 12 Picture 14 Picture 15 Picture 17 Picture 20 Picture 21 Picture 22 Picture 23 Picture 25 Picture 27 Picture 28 Picture 24 Picture 26

Nearby Streets

NameAverage PriceAverage SqftDistance
Mcgrigor Road £ 000.00 KM
Craigton Gardens £ 182,00000.00 KM
Stable Place £ 000.00 KM
James Watt Road £ 305,00000.00 KM
Lyle Square £ 179,00000.00 KM

Nearby Transport

NameNLCTLCDistance
Milngavie9985MLN2.02 KM
Hillfoot9983HLF3.60 KM
Bearsden9966BRN3.77 KM
Westerton9998WES5.16 KM
Drumchapel9994DMC6.28 KM

Nearby Listings

AddressPriceTypeScoreDistance
Crawford Road, Milngavie £ 410,000BUY7 / 100.00 KM
64 Crawford Road, Milngavie, Glasgow £ 290,000BUY7 / 100.18 KM
James Watt Road, Milngavie, G62 £ 425,000BUYUnknown0.41 KM
10 Crawford Road, Milngavie, G62 7LG £ 445,000BUY7 / 100.42 KM
Kelvin Road, Milngavie, G62 £ 250,000BUYUnknown0.55 KM