Butts Close, Bridlington, East Riding Of Yorkshire, YO16
By Hamilton Reeves
£ 110,000
Reviews
3 out of 5 stars
Hamilton Reeves says ..
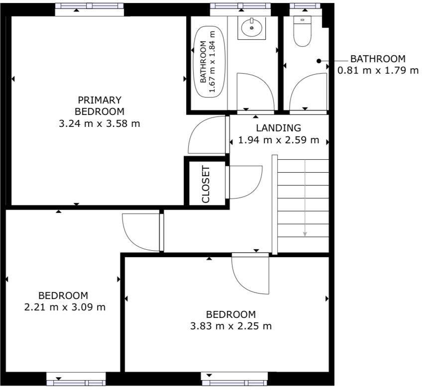
* 3 beds * 2 baths* Freehold * Shared private parking * Private rear garden
Property Oracle says ..
This is a three-bedroom terraced property located in Bridlington, East Riding Of Yorkshire. The property is listed for £110,000. The property is located close to local schools and the train station. The property has a garden. The property appears to be in reasonable condition, but could benefit from some modernisation.
Therefore, we give this property 6 / 10. *Disclaimer: This is our option and does constitute a recommendation or financial advice. Do your own research. *
- Price
- 8
- Condition
- 6
- Location
- 7
- Land
- 6
- Bedrooms
- 3
- Bathrooms
- 0
The heatmap indicates the level of crime in the area. The color of the heatmap indicates the crime severity and recency.
Metrics Year-on-Year
- Average area value
- 218,454.00 £Increased by 5.23 %
- Average area rental value
- 767.00 £/moIncreased by 31.11 %
- Est rental Yield
- 4.21 %Increased by 24.56 %
- Crime Rate
- 7.00 %Unchanged by 0.00 %
Agent Activity
Hamilton Reeves created the listing.
Nearby Schools
| Name | Type | Ofsted | Distance |
|---|---|---|---|
| Sure Start Children'S Centre Bridlington One | Children's Centre | 0.05 KM | |
| Bridlington Nursery School | Local Authority Nursery School | Outstanding | 0.14 KM |
| Bay Primary School | Community School | Requires improvement | 0.25 KM |
| Quay Academy | Academy Sponsor Led | Good | 0.74 KM |
| Burlington Junior School | Community School | Good | 0.88 KM |
Images
Nearby Streets
| Name | Average Price | Average Sqft | Distance |
|---|---|---|---|
| Jubilee Avenue | £ 129,950 | 0 | 0.00 KM |
| Lawson Road | £ 0 | 0 | 0.00 KM |
| Saint Jude Grove | £ 0 | 0 | 0.00 KM |
| Saint Andrew Road | £ 0 | 0 | 0.00 KM |
| Stanley Gardens | £ 650,000 | 0 | 0.00 KM |
Nearby Transport
| Name | NLC | TLC | Distance |
|---|---|---|---|
| Bridlington | 8049 | BDT | 1.04 KM |
| Bempton | 8047 | BEM | 4.23 KM |
Nearby Listings
| Address | Price | Type | Score | Distance |
|---|---|---|---|---|
| Butts Close, Bridlington, East Riding Of Yorkshire, YO16 | £ 130,000 | BUY | 6 / 10 | 0.00 KM |
| Butts Close, Bridlington, East Riding Of Yorkshire, YO16 | £ 110,000 | BUY | 6 / 10 | 0.00 KM |
| St. Georges Croft, Bridlington | £ 195,000 | BUY | 7 / 10 | 0.15 KM |
| Jubilee Walk, Bridlington | £ 130,000 | BUY | 5 / 10 | 0.17 KM |
| St. Georges Croft, Bridlington, East Riding of Yorkshire, YO16 | £ 185,000 | BUY | 6 / 10 | 0.17 KM |
Nearby Properties
| Address | Price | Distance |
|---|---|---|
| 6 Rickaby Close | £ 102,000 | 0.09 KM |
| 3 Rickaby Close | £ 91,000 | 0.09 KM |
| 3 Priory Walk | £ 85,000 | 0.14 KM |
| 27 Jubilee Walk | £ 102,500 | 0.17 KM |
| 15 Jubilee Walk | £ 79,500 | 0.17 KM |