Aire Street, Haworth, Keighley, BD22 8LX
By Davies Properties
£ 150,000
Reviews
2 out of 5 stars
Davies Properties says ..
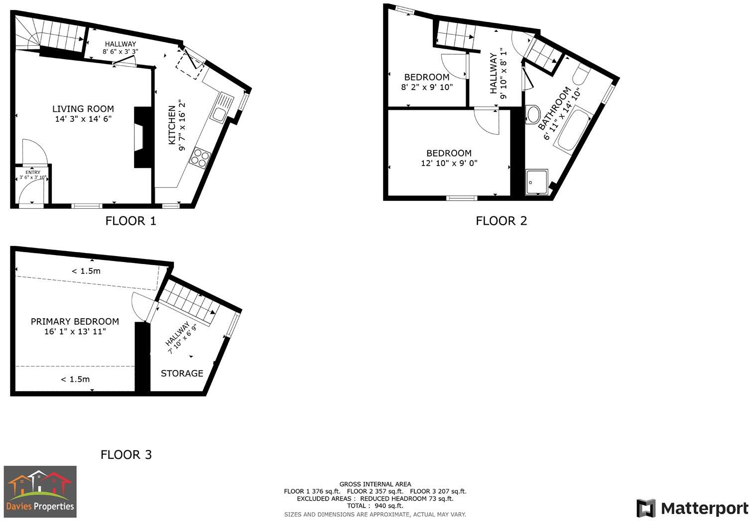
Located in the ever-popular village of Haworth, this charming semi-detached property provides generous accommodation over three floors. The ground floor features a spacious family lounge and a modern fitted kitchen, which offers access to a useful cellar storage area. To the first floor ...
Property Oracle says ..
This semi-detached property on Aire Street, Haworth, presents a promising opportunity for buyers willing to invest in renovations. The house offers three bedrooms and one bathroom within 1,058.38 sqft of living space. While the property requires modernization, its location in the sought-after Worth Valley and reasonable price point make it an attractive prospect. The proximity to local schools and amenities adds to its appeal, though its distance from major transportation hubs should be considered. With some investment, this property could become a comfortable and valuable home.
Therefore, we give this property 5 / 10. *Disclaimer: This is our option and does constitute a recommendation or financial advice. Do your own research. *
- Price
- 8
- Condition
- 5
- Location
- 6
- Land
- 3
- Bedrooms
- 3
- Bathrooms
- 1
- Sqft (est)
- 1,058.38
The heatmap indicates the level of crime in the area. The color of the heatmap indicates the crime severity and recency.
Metrics Year-on-Year
- Average area value
- 856,250.00 £Increased by 15.74 %
- Est sale value
- 751,449.80 £Increased by 21.37 %
- Average area rental value
- 2,000.00 £/moDecreased by 15.25 %
- Est letting value
- 1,058.38 £/moUnchanged by 0.00 %
- Est rental Yield
- 2.80 %Decreased by 26.89 %
- Crime Rate
- 54.00 %Unchanged by 0.00 %
Agent Activity
Davies Properties created the listing.
Nearby Schools
| Name | Type | Ofsted | Distance |
|---|---|---|---|
| Treetops Children'S Centre | Children's Centre Linked Site | 0.75 KM | |
| Haworth Primary School | Academy Converter | Good | 0.75 KM |
| Lees Primary School | Academy Converter | 1.24 KM | |
| Oakworth Primary School | Academy Converter | 1.48 KM | |
| Oxenhope Cofe Primary School | Academy Converter | Good | 2.38 KM |
Images
Nearby Streets
| Name | Average Price | Average Sqft | Distance |
|---|---|---|---|
| Dove Street | £ 0 | 0 | 0.00 KM |
| Bright Street | £ 149,995 | 0 | 0.00 KM |
| Regent Street | £ 0 | 0 | 0.00 KM |
| Park Street | £ 0 | 0 | 0.00 KM |
| May Street | £ 0 | 0 | 0.00 KM |
Nearby Transport
| Name | NLC | TLC | Distance |
|---|---|---|---|
| Keighley | 8468 | KEI | 6.43 KM |
| Steeton And Silsden | 8469 | SON | 7.58 KM |
Nearby Listings
| Address | Price | Type | Score | Distance |
|---|---|---|---|---|
| Aire Street, Haworth, Keighley, BD22 8LX | £ 150,000 | BUY | 5 / 10 | 0.00 KM |
| Aire Street, Haworth, Keighley, BD22 | £ 119,950 | BUY | 6 / 10 | 0.03 KM |
| River Street, Haworth, Keighley | £ 210,000 | BUY | 7 / 10 | 0.05 KM |
| Mill Hey, Haworth | £ 480,000 | BUY | 6 / 10 | 0.06 KM |
| Back River Street, Haworth, Keighley, BD22 | £ 225,000 | BUY | 7 / 10 | 0.06 KM |
Nearby Properties
| Address | Price | Distance |
|---|---|---|
| 19 Victoria Road | £ 95,000 | 0.04 KM |
| 7 Victoria Road | £ 125,000 | 0.04 KM |
| 13 Victoria Road | £ 91,000 | 0.04 KM |
| 25 Victoria Road | £ 62,000 | 0.04 KM |
| 12 Aire Street | £ 10,000 | 0.05 KM |