Riddlesdown Road, Purley, Croydon(London Borough), CR8
By Dwelle Homes
£ 495,000
Reviews
3 out of 5 stars
Dwelle Homes says ..
Spacious 3-Bedroom Apartment in a Brand-New Development with parking space and private garden. Exclusive incentives available!
Property Oracle says ..
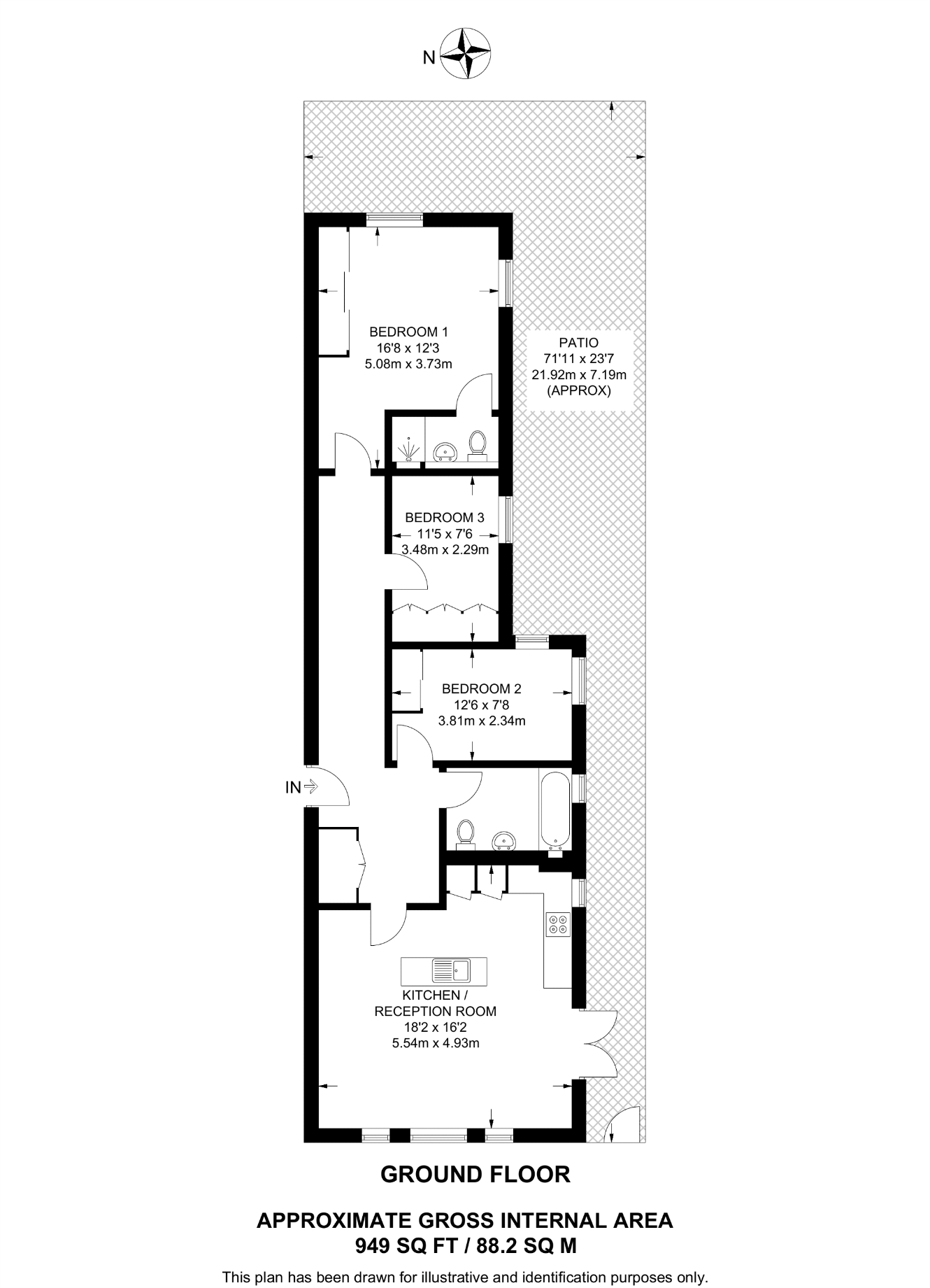
The property is a 3-bedroom, 3-bathroom flat located on Riddlesdown Road in Purley, Croydon. The flat is newly renovated and appears to be in excellent condition, boasting a modern kitchen and bathrooms. The flooring throughout is modern and high-quality. The property benefits from the proximity to several railway stations, making commuting relatively easy. There are also several highly-rated schools within a reasonable distance, which is attractive to families. While the plot size is listed as 0.00 sqft, the images suggest a small, private outdoor space. Given the average price per sqft in the area is £686, and this property is 949.38 sqft, a rough estimate of the value would be approximately £650,000. However, the list price is significantly lower at £495,000. This suggests the property may represent good value for money, especially considering its modern condition and convenient location. The lower price might be due to the smaller plot size compared to average properties in the area. The nearby property sales data is limited and lacks sqft information, making a precise comparison difficult. However, the list price does fall within the range of nearby properties, although some are significantly more expensive.
Therefore, we give this property 7 / 10. *Disclaimer: This is our option and does constitute a recommendation or financial advice. Do your own research. *
- Price
- 9
- Condition
- 10
- Location
- 9
- Land
- 3
- Bedrooms
- 3
- Bathrooms
- 3
- Sqft (est)
- 949.38
The heatmap indicates the level of crime in the area. The color of the heatmap indicates the crime severity and recency.
Metrics Year-on-Year
- Average area value
- 350,411.00 £Decreased by 30.71 %
- Est sale value
- 312,346.02 £Decreased by 20.91 %
- Average area rental value
- 1,907.00 £/moIncreased by 7.13 %
- Est letting value
- 949.38 £/moUnchanged by 0.00 %
- Est rental Yield
- 6.53 %Increased by 54.74 %
- Crime Rate
- 2.00 %Unchanged by 0.00 %
Agent Activity
Dwelle Homes created the listing.
Nearby Schools
| Name | Type | Ofsted | Distance |
|---|---|---|---|
| Christ Church Cofe Primary School (Purley) | Voluntary Aided School | Good | 0.67 KM |
| Purley Nursery School | Local Authority Nursery School | Outstanding | 0.93 KM |
| Cumnor House School | Other Independent School | 0.98 KM | |
| Harris Academy Purley | Academy Sponsor Led | Outstanding | 1.49 KM |
| Regina Coeli Catholic Primary School | Voluntary Aided School | Good | 1.51 KM |
Images
Nearby Streets
| Name | Average Price | Average Sqft | Distance |
|---|---|---|---|
| Warren Road | £ 235,000 | 0 | 0.00 KM |
| Hamilton Close | £ 950,000 | 0 | 0.00 KM |
| Christchurch Road | £ 315,000 | 0 | 0.00 KM |
| Allenby Avenue | £ 0 | 0 | 0.00 KM |
| Pheasant Close | £ 256,667 | 0 | 0.00 KM |
Nearby Transport
| Name | NLC | TLC | Distance |
|---|---|---|---|
| Purley | 5379 | PUR | 0.99 KM |
| Purley Oaks | 5430 | PUO | 1.07 KM |
| Riddlesdown | 5432 | RDD | 1.08 KM |
| Sanderstead | 5433 | SNR | 1.59 KM |
| Kenley | 5419 | KLY | 1.77 KM |
Nearby Listings
| Address | Price | Type | Score | Distance |
|---|---|---|---|---|
| Riddlesdown Road, Purley, Croydon(London Borough), CR8 | £ 495,000 | BUY | 7 / 10 | 0.00 KM |
| Riddlesdown Road, Purley | £ 500,000 | BUY | Unknown | 0.00 KM |
| Riddlesdown Road, Purley, CR8 | £ 500,000 | BUY | 6 / 10 | 0.01 KM |
| Purley Bury Avenue, Purley | £ 785,000 | BUY | 7 / 10 | 0.11 KM |
| Acer Heights, Riddlesdown Road, Purley | £ 350,000 | BUY | 6 / 10 | 0.11 KM |
Nearby Properties
| Address | Price | Distance |
|---|---|---|
| 73 Riddlesdown Road | £ 720,000 | 0.01 KM |
| 69a Riddlesdown Road | £ 358,000 | 0.01 KM |
| 71 Riddlesdown Road | £ 452,500 | 0.01 KM |
| 35 Riddlesdown Road | £ 794,000 | 0.01 KM |
| 53 Riddlesdown Road | £ 545,000 | 0.01 KM |