Sunburst Drive, Nuneaton, CV11
By TOM BATES ESTATE AGENTS
£ 280,000
Reviews
4 out of 5 stars
TOM BATES ESTATE AGENTS says ..
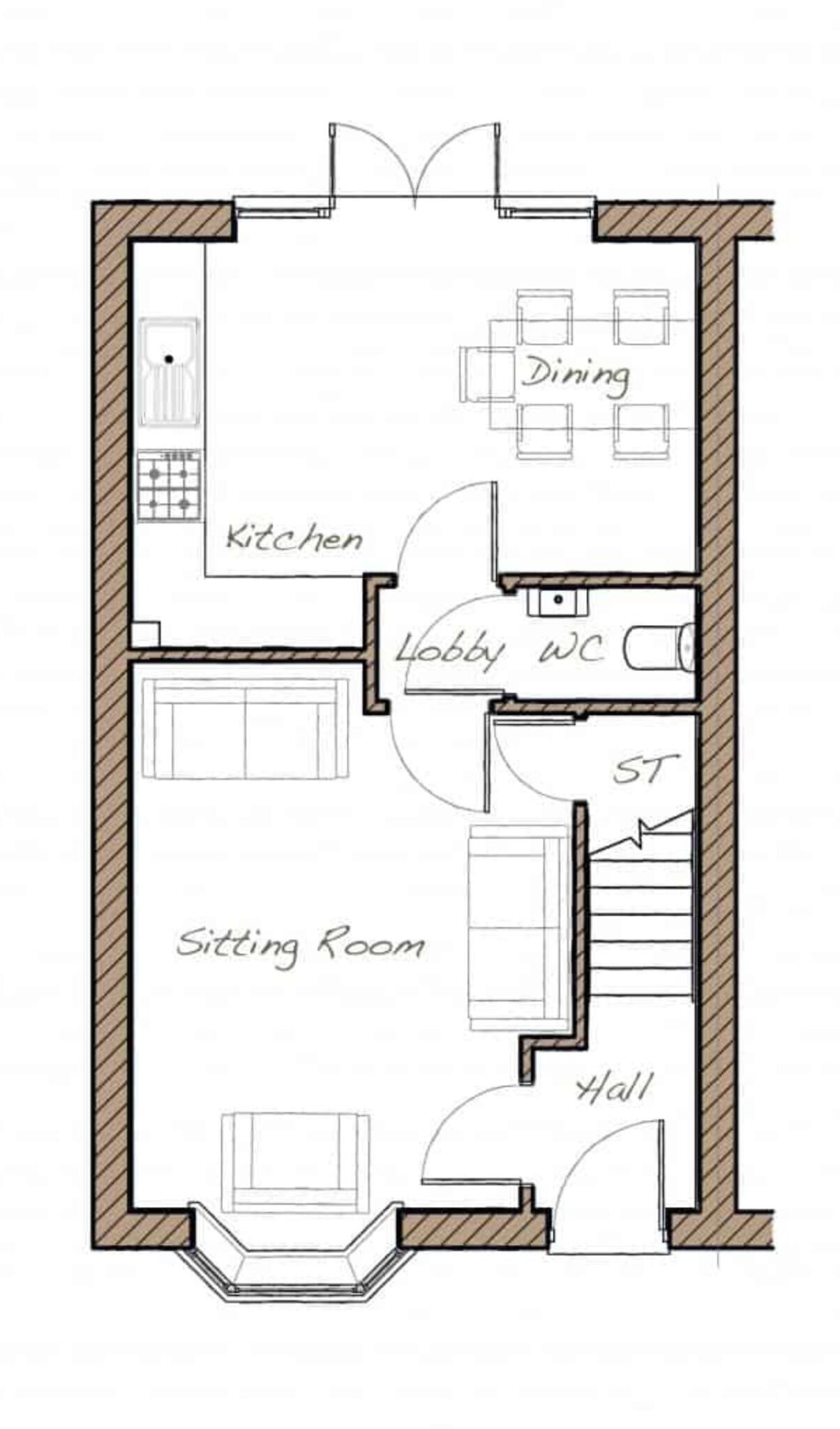
WOW ~ SUPER ~ MODERN ~ DESIGN We are delighted to bring to market this three bedroom semi detached property on the super popular Sunburst Drive, Nuneaton. Built by Davidsons Homes welcome to The Carnel design, perfect for couples and families that look for a high grade finish and ready to move ...
Property Oracle says ..
This property is a three-bedroom semi-detached house located in St Nicolas, Nuneaton. The property is modern and well presented, with a good-sized rear garden. The location is convenient, with several schools and transportation links nearby. While the property is smaller than the average for the area at 425 sqft, this is reflected in the list price of £280,000. Compared to other similar properties in the area, the price seems reasonable, although slightly below average. The property appears to be in excellent condition and benefits from modern fixtures and fittings.
Therefore, we give this property 8 / 10. *Disclaimer: This is our option and does constitute a recommendation or financial advice. Do your own research. *
- Price
- 7
- Condition
- 10
- Location
- 8
- Land
- 7
- Bedrooms
- 3
- Bathrooms
- 1
- Sqft (est)
- 425.20
The heatmap indicates the level of crime in the area. The color of the heatmap indicates the crime severity and recency.
Metrics Year-on-Year
- Average area value
- 456,875.00 £Increased by 1.27 %
- Est sale value
- 182,410.80 £Increased by 22.57 %
- Average area rental value
- 1,264.00 £/moDecreased by 16.90 %
- Est letting value
- 425.20 £/moUnchanged by 0.00 %
- Est rental Yield
- 3.32 %Decreased by 18.02 %
- Crime Rate
- 23.00 %Unchanged by 0.00 %
Agent Activity
TOM BATES ESTATE AGENTS created the listing.
Nearby Schools
| Name | Type | Ofsted | Distance |
|---|---|---|---|
| St Nicolas Cofe Academy | Academy Converter | Good | 2.53 KM |
| Higham-On-The-Hill Church Of England Primary School | Academy Converter | Good | 2.56 KM |
| Milby Primary School | Community School | Good | 2.64 KM |
| North Warwickshire And South Leicestershire College | Further Education | Good | 3.00 KM |
| Higham Lane School | Academy Converter | Outstanding | 3.56 KM |
Images
Nearby Streets
| Name | Average Price | Average Sqft | Distance |
|---|---|---|---|
| Opal Close | £ 443,333 | 0 | 0.00 KM |
| Leghorn Road | £ 450,000 | 0 | 0.00 KM |
| Watling Street | £ 0 | 0 | 0.00 KM |
| Crown Lane | £ 0 | 0 | 0.00 KM |
| Doverton Close | £ 514,950 | 0 | 0.00 KM |
Nearby Transport
| Name | NLC | TLC | Distance |
|---|---|---|---|
| Nuneaton | 1077 | NUN | 4.62 KM |
| Hinckley (Leics) | 1870 | HNK | 5.71 KM |
| Bermuda Park | 6543 | BEP | 6.67 KM |
| Bedworth | 1165 | BEH | 8.03 KM |
Nearby Listings
| Address | Price | Type | Score | Distance |
|---|---|---|---|---|
| Sunburst Drive, Nuneaton, CV11 | £ 280,000 | BUY | 8 / 10 | 0.00 KM |
| Russett Avenue, Manor Fields, Nuneaton, CV11 6YW | £ 310,000 | BUY | 7 / 10 | 0.06 KM |
| Russett Avenue, Manor Fields, Nuneaton, CV11 6YW | £ 307,500 | BUY | 7 / 10 | 0.07 KM |
| Sunburst Drive, off the Long Shoot, Nuneaton | £ 440,000 | BUY | Unknown | 0.10 KM |
| Watling Street, Nuneaton | £ 280,000 | BUY | 7 / 10 | 0.12 KM |
Nearby Properties
| Address | Price | Distance |
|---|---|---|
| 48 Watling Street | £ 205,000 | 0.12 KM |
| 44 Watling Street | £ 210,000 | 0.12 KM |
| 56 Watling Street | £ 115,000 | 0.12 KM |
| 40 Watling Street | £ 179,950 | 0.12 KM |
| 64 Watling Street | £ 361,000 | 0.12 KM |