West of Exe says ..
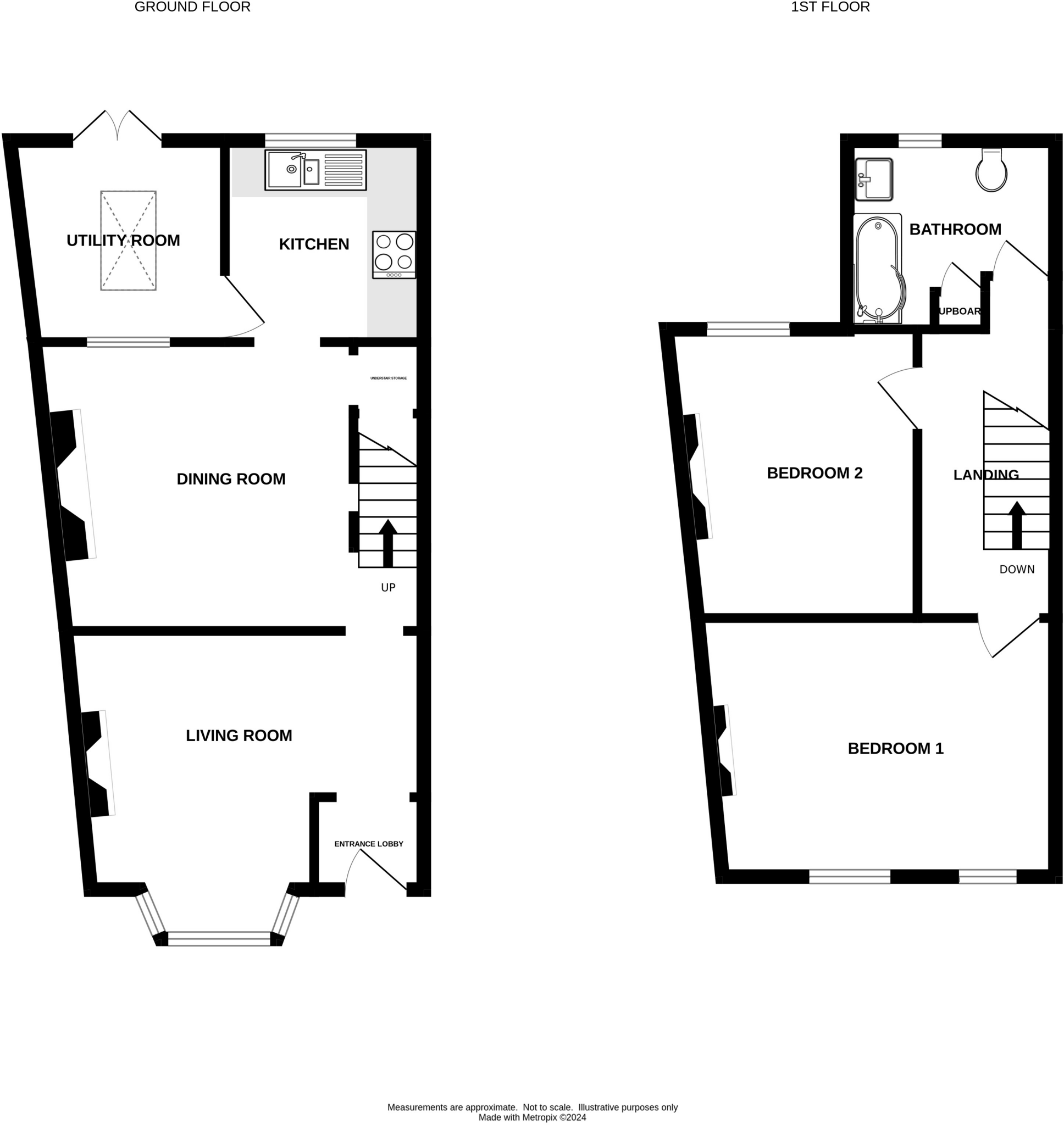
1 Berry Cottages is a beautifully presented character cottage, situated in the highly sought-after village of Exminster, offering a perfect blend of charm and modern comfort. The property features two spacious reception rooms, a modern fitted kitchen with an adjoining utility room, and two genero...
Property Oracle says ..
Therefore, we give this property 7 / 10. *Disclaimer: This is our option and does constitute a recommendation or financial advice. Do your own research. *
- Price
- 6
- Condition
- 8
- Location
- 7
- Land
- 7
- Bedrooms
- 2
- Bathrooms
- 1
- Sqft (est)
- 820.00
The heatmap indicates the level of crime in the area. The color of the heatmap indicates the crime severity and recency.
Metrics Year-on-Year
- Average area value
- 287,463.00 £Decreased by 27.54 %
- Est sale value
- 276,340.00 £Increased by 8.71 %
- Average area rental value
- 1,250.00 £/moDecreased by 10.65 %
- Est letting value
- 820.00 £/moUnchanged by 0.00 %
- Est rental Yield
- 5.22 %Increased by 23.40 %
- Crime Rate
- 107.00 %Unchanged by 0.00 %
from 396,735.00 £
from 254,200.00 £
from 1,399.00 £/mo
from 820.00 £/mo
from 4.23 %
from 107.00 %
Agent Activity
West of Exe created the listing.
Nearby Schools
| Name | Type | Ofsted | Distance |
|---|---|---|---|
| The New School | Other Independent School | 0.87 KM | |
| Exminster Community Primary | Community School | Good | 0.87 KM |
| Countess Wear Exeter | Children's Centre | 2.37 KM | |
| Countess Wear Community School | Community School | Requires improvement | 2.40 KM |
| The Topsham School | Community School | Good | 2.49 KM |
Images
Nearby Streets
| Name | Average Price | Average Sqft | Distance |
|---|---|---|---|
| Lower Duck Street | £ 295,000 | 0 | 0.00 KM |
| River View Terrace | £ 310,000 | 0 | 0.00 KM |
| Hill Crest | £ 275,000 | 0 | 0.00 KM |
| Lime Grove | £ 485,000 | 0 | 0.00 KM |
| Riverside Meadow | £ 302,500 | 0 | 0.00 KM |
Nearby Transport
| Name | NLC | TLC | Distance |
|---|---|---|---|
| Topsham | 5758 | TOP | 3.02 KM |
| Newcourt | 9589 | NCO | 3.77 KM |
| Digby And Sowton | 5753 | DIG | 4.63 KM |
| Exton | 5760 | EXN | 5.08 KM |
| Lympstone Commando | 5762 | LYC | 5.57 KM |
Nearby Listings
| Address | Price | Type | Score | Distance |
|---|---|---|---|---|
| Berry Cottages, Exminster | £ 300,000 | BUY | 7 / 10 | 0.00 KM |
| Berrybrook Meadow, Exminster | £ 460,000 | BUY | Unknown | 0.10 KM |
| Berrybrook Meadow, Exminster, Exeter | £ 475,000 | BUY | 6 / 10 | 0.10 KM |
| Berrybrook Meadow, Exminster, Exeter, Devon, EX6 | £ 465,000 | BUY | 7 / 10 | 0.10 KM |
| Berrybrook Meadow, Exminster | £ 400,000 | BUY | Unknown | 0.10 KM |
Nearby Properties
| Address | Price | Distance |
|---|---|---|
| 3 Berry Cottages | £ 229,000 | 0.01 KM |
| 2 Berry Cottages | £ 167,500 | 0.01 KM |
| 31 Sentrys Orchard | £ 277,000 | 0.07 KM |
| 1 Sentrys Orchard | £ 175,000 | 0.07 KM |
| 3 Sentrys Orchard | £ 175,000 | 0.07 KM |