ON
Bridge Lane, Bramhall, SK7
By One Stop Property Solutions
£ 1,350,000
Reviews
3 out of 5 stars
One Stop Property Solutions says ..
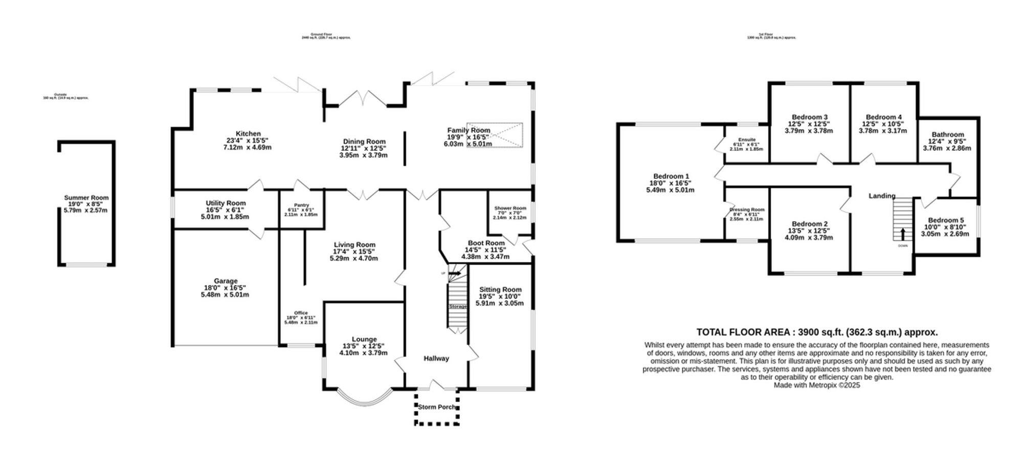
ANY PART EXCHANGE - WOW FACTOR - Bridge Lane - a truly exceptional home offering 3,900 sq ft of luxurious living. Striking from the outside and finished to an immaculate standard throughout, this turnkey gem sits on a generous plot, effortlessly combining charm, style, and contemporary comfort.
Property Oracle says ..
Therefore, we give this property 7 / 10. *Disclaimer: This is our option and does constitute a recommendation or financial advice. Do your own research. *
- Price
- 4
- Condition
- 9
- Location
- 8
- Land
- 9
- Bedrooms
- 5
- Bathrooms
- 3
- Sqft (est)
- 1,049.91
The heatmap indicates the level of crime in the area. The color of the heatmap indicates the crime severity and recency.
Metrics Year-on-Year
- Average area value
- 420,413.00 £Decreased by 37.76 %
- Est sale value
- 519,705.45 £Increased by 43.48 %
- Average area rental value
- 1,333.00 £/moDecreased by 26.60 %
- Est letting value
- 1,049.91 £/mo
- Est rental Yield
- 3.80 %Increased by 17.65 %
- Crime Rate
- 0.00 %
from 675,471.00 £
from 362,218.95 £
from 1,816.00 £/mo
from 0.00 £/mo
from 3.23 %
from 0.00 %
Agent Activity
One Stop Property Solutions created the listing.
Nearby Schools
| Name | Type | Ofsted | Distance |
|---|---|---|---|
| Bramhall High School | Community School | Requires improvement | 0.68 KM |
| Ladybrook Primary School | Community School | Outstanding | 0.81 KM |
| Pownall Green Primary School | Community School | Outstanding | 1.43 KM |
| Hazel Grove High School | Academy Converter | Requires improvement | 1.72 KM |
| Nevill Road Junior School | Community School | Good | 1.78 KM |
Images
Nearby Streets
| Name | Average Price | Average Sqft | Distance |
|---|---|---|---|
| Southern Close | £ 525,000 | 0 | 0.00 KM |
| A6 - Bramhall Park Cycle Path | £ 675,000 | 0 | 0.00 KM |
| Jacksons Lane | £ 0 | 0 | 0.00 KM |
| Hillbury Road | £ 550,000 | 0 | 0.00 KM |
| Birkdale Close | £ 0 | 0 | 0.00 KM |
Nearby Transport
| Name | NLC | TLC | Distance |
|---|---|---|---|
| Woodsmoor | 2773 | WSR | 1.80 KM |
| Bramhall | 2944 | BML | 1.97 KM |
| Davenport | 2770 | DVN | 2.05 KM |
| Poynton | 2874 | PYT | 3.04 KM |
| Hazel Grove | 2768 | HAZ | 3.19 KM |
Nearby Listings
| Address | Price | Type | Score | Distance |
|---|---|---|---|---|
| Bridge Lane, Bramhall, SK7 | £ 1,350,000 | BUY | 7 / 10 | 0.00 KM |
| Bridge Lane, Bramhall, SK7 | £ 975,000 | BUY | 8 / 10 | 0.07 KM |
| Headlands Road, Bramhall, SK7 | £ 695,000 | BUY | Unknown | 0.22 KM |
| Walmer Drive, Bramhall, SK7 | £ 850,000 | BUY | 7 / 10 | 0.23 KM |
| Southern Crescent, Bramhall, SK7 | £ 845,000 | BUY | Unknown | 0.27 KM |
Nearby Properties
| Address | Price | Distance |
|---|---|---|
| 68 Bridge Lane | £ 575,000 | 0.09 KM |
| 74 Bridge Lane | £ 805,000 | 0.09 KM |
| 80 Bridge Lane | £ 707,500 | 0.09 KM |
| 86 Bridge Lane | £ 465,000 | 0.09 KM |
| 88 Bridge Lane | £ 647,000 | 0.09 KM |